不動産 賃貸 マンション等の住宅情報:埼玉住まい情報


兵庫県加古川市野口町長砂の一戸建て:物件詳細

  • 物件詳細
  • 情報の見方
  • 印刷用画面
交通
所在地
駅徒歩 価格 間取り
建物面積
土地面積
私道負担面積
物件種目
築年月

【バス】良野東口 停歩6分

兵庫県加古川市野口町長砂


3,680万円

3LDK

100.73m²

133.74m²

新築一戸建て

2025年8月
新築 

おすすめPOINT駐車場3台分以上、外壁サイディング、バス1坪以上、24時間換気システム、閑静な住宅街、オール電化、設計住宅性能評価書あり、建設住宅性能評価書あり、分譲地内

おすすめコメント

■制振装置・床暖房を設置!設備充実の快適住まい◎

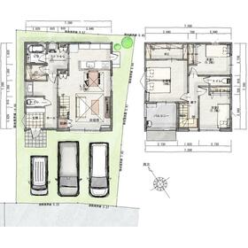
間取図

間取図

■3LDK:家事動線のある間取り

外観

外観

■外観

<
その他の画像
  • リビング
  • リビング
  • キッチン
  • キッチン
  • バス/シャワー
  • 洗面
  • トイレ
  • 収納
  • 室内
  • 収納
  • 玄関
  • バルコニー
  • リビング
  • キッチン
  • その他
  • ショッピング施設
  • 幼稚園、保育園
  • 小学校
  • 中学校
  • 病院
  • 郵便局
  • 役所
>
    • とりあえず保存
    • お問い合わせ
    交通

    【バス】 良野東口 停歩6分

    その他の交通

    山陽電鉄本線 浜の宮駅 徒歩20分

    所在地 兵庫県加古川市野口町長砂
    物件種目 新築一戸建て
    価格 3,680万円 借地期間・地代(月額)
    権利金 敷金または保証金 - / -
    維持費等 その他一時金
    間取り 3LDK(洋 8・5.2・5.2 LDK 17) 建物面積 100.73m²
    土地権利 所有権 建物構造 木造
    土地面積 133.74m²(公簿) 私道負担面積
    築年月 2025年8月 新築  都市計画 市街化区域
    建物名   建築確認番号 HK24-21635
    用途地域 1種中高 駐車場 有 無料
    建ぺい率 60% 容積率 200%
    階建 2階建 接道状況 西 6.0m
    地目 宅地 地勢 平坦
    国土法届出 セットバック
    アピールポイント ■制振装置『MAMORY』搭載!地震の揺れを吸収し、建物のダメージを軽減。
    ■足元からじんわりと身体全体を温める床暖房付。乾燥しにくく空気もキレイに♪
    ■ランドリールームとファミクロを近くに配置!手間を減らした家事ラク間取り!
    ■洗面室と脱衣室を別々に!同時に使いやすく朝の忙しい時間帯に便利◎
    ■並列3台駐車可能◎友人・家族が遊びに来ても安心です!
    ■横広のウォークインクローゼット。バッグや帽子も置ける枕棚付き!
    リフォーム履歴
    リノベーション履歴
    瑕疵保証
    瑕疵保険
    評価・証明書
    備考
    主要採光面:南西向き
    現地案内会(事前に必ずお問い合わせください)
    日程/公開中
    時間/10:00~18:00

    【平日・土日祝問いません】
    当日予約も大歓迎です♪
    【現地ご案内】
    ご来店/最寄り駅へのお迎え/指定の場所での待ち合わせ、等お好きな方法をお選びいただけます。
    お車でご来店の方には無料駐車場を用意しておりますのでご安心ください(^^)/
    エネルギー消費性能
    断熱性能
    目安光熱費
    バス・トイレ 浴室暖房、浴室乾燥機、オートバス、追焚機能、タンクレストイレ、トイレ2ヶ所、浴室に窓あり
    キッチン カウンターキッチン、システムキッチン、食器洗浄乾燥機、食器乾燥機、浄水器、IHクッキングヒーター、2口コンロ
    設備・サービス 全居室収納、ウォークインクローゼット、床暖房、クローゼット、床下収納、モニター付インターホン、ディンプルキー、ダブルロックドア、電動シャッター、省エネ給湯器、上水道、下水道、都市ガス、電気、側溝、エアコン、庭、ダウンライト、照明器具、火災警報器(報知機)、複層ガラス
    その他
    現況 完成済 引渡可能時期 相談
    物件番号 6986196479 仲介手数料 不要
    情報公開日 2025年7月5日 次回更新予定日 2025年10月26日
    ケータイ用バーコード

    QRコード

    スマートフォンでこの物件を見る
    スマートフォンからもこの物件をご覧になれます。
    ※「-」と表示されている項目については、情報提供会社にご確認ください。

    この物件の周辺情報

    周辺施設 山陽電鉄 浜の宮駅
    距離 1600m
    周辺施設 マルアイ野口店
    距離 500m
    周辺施設 加古川市立野口南幼稚園
    距離 950m
    周辺施設 加古川市立野口南小学校
    距離 800m
    周辺施設 加古川市立中部中学校
    距離 650m
    周辺施設 タカタ内科小児科
    距離 400m
    周辺施設 加古川野口坂井簡易郵便局
    距離 1000m
    周辺施設 加古川市役所
    距離 1400m

    クイックお問い合わせ

    ここから簡単にお問い合わせをすることができます。
    (SSLでの暗号化での送信を希望されるお客さまは こちら よりお問い合わせください)

    お問い合わせ内容(必須)
    お名前(必須) 姓  名 
    メールアドレス(必須)
    ※携帯電話のメールアドレスをご入力される方はこちらをご確認ください
    電話番号(必須)
    - -

    ※入力いただいた電話番号へSMSまたは音声でパスワードをご連絡します。

    携帯電話の番号をご入力の方へ

    携帯電話の番号をご入力の方へ
    確認画面にて送信ボタンをクリックするとSMSが携帯電話に届きます。
    そのSMSに記載のパスワード(認証番号)を入力し、お問い合わせを完了してください。
    尚、SMSの送信者番号は 0005 202 760 となります。
    これはアットホームの固定番号です。

    備考欄 希望条件、物件案内希望日、質問などがございましたらご記入ください。
    お問い合わせを行う前に「個人情報の取り扱いについて」を必ずお読みください。
    「個人情報の取り扱いについて」に同意いただいた場合は「上記にご同意の上 確認画面へ進む」のボタンをクリックしてください。

    個人情報の取り扱いについて

    皆さまが送付された個人情報はアットホーム(株)のサーバを経由し、お問い合わせ先の不動産会社にメールまたはFAXにて転送されるためアットホーム(株)にも保管されます。アットホーム(株)で保管された個人情報の取り扱いについては、【こちら】をご覧ください。
    また、本画面でご記入いただいた個人情報は、お問い合わせ先の不動産会社でも保管します。 お問い合わせ先の不動産会社が保管する個人情報の取り扱いについては、不動産会社に直接お問い合わせください。

    情報提供会社

    情報提供会社

    ヴェル・ハウジング(株) 明石大久保店

    国土交通大臣免許(1)第10502号

    交通:
    JR山陽本線/大久保駅 徒歩5分 【バス】 大久保北 停歩1分
    兵庫県明石市大久保町駅前2丁目6-3 ワインウェル201号
    TEL:
    078-935-8200
    FAX:
    078-935-8201
    所属団体:
    (公社)全日本不動産協会会員
    (公社)近畿地区不動産公正取引協議会加盟

    取引態様:代理

    • 会社情報
    • 50102201
    スマートフォンで
    この不動産会社を見る
    QRコード
    • とりあえず保存
    • お問い合わせ
    • 提携サイト等より掲載されている物件情報につきましては、不動産会社詳細情報にリンクされていないものがあります。
    • 物件に関するお問合せは、物件詳細ページの「情報提供会社」に表示されている不動産会社へ直接お願いいたします。
    • 間取図は、現況を優先させていただきます。
    • 映像は物件の一部を撮影したものです。物件の契約にあたっての最終判断はご自身の判断に基づいて行ってください。
    • 仲介手数料について仲介手数料

    アットホームは物件情報の適正化に努めております。 内容に誤りがある場合にはこちらへご連絡ください。

    【埼玉住まい情報】では、日本全国の物件から賃貸マンションや賃貸アパート・賃貸一戸建て等の賃貸住宅情報、新築マンション・分譲マンションや中古マンション等の売買マンション情報、新築一戸建てや中古一戸建てなどの戸建住宅、 土地など、総合的な不動産住宅情報検索サービスを提供致します。
    【埼玉住まい情報】から、選りすぐりの不動産物件を探してみましょう。

    【免責事項】
    このコーナーの運営はアットホーム株式会社(https://www.athome.co.jp/)が行っています。
    このコーナーに掲載している物件情報は、「アットホーム不動産情報ネットワーク」に加盟する不動産会社等(情報提供元)から提供されています。信頼性の高い情報提供が行えるよう、最大限の努力をしておりますが、その内容を保証するものではありません。 利用者のみなさまと各情報提供元との取引に起因する損害および情報が掲載されたことに起因する損害等については、株式会社イーシティ埼玉、およびアットホームは一切責任を負いません。
    各物件情報の内容や画像等はすべて現況を優先させていただきます。
    お取引等(お取引の準備、資金調達等を含みます)の際には、内容や契約条件等について、各情報提供元より十分な説明を受け、ご自身でご確認の上、判断してください。
    このコーナーへの物件情報のご掲載、その他不動産業務ソリューション等についての不動産会社様のお問合せはこちらからお願いいたします。

    物件画像: