石川県金沢市直江東2丁目(大河端駅)の一戸建て:物件詳細
交通 所在地 |
駅徒歩 |
価格 |
間取り 建物面積 |
土地面積 私道負担面積 |
物件種目 築年月 |
|
北陸鉄道浅野川線/大河端
石川県金沢市直江東2丁目
|
14分
|
4,480万円
|
3SLDK
153.68m²
|
227.70m²
なし
|
中古一戸建て
2016年1月(築10年)
|
|
駐車場3台分以上、二世帯向き、バス1坪以上、2面採光、閑静な住宅街、オール電化、区画整理地内、整形地
|
|
≪オープンハウス/モデルハウス≫【開催期間】2025年10月16日~ 随時ご案内受け付けていますので、お気軽にお問い合わせ下さい♪
|
|
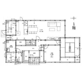
間取図
1階間取り図です♪
|
間取図
2階間取り図です♪
|
<
その他の画像
>
|
| 交通 | 北陸鉄道浅野川線 大河端駅 徒歩14分 |
| 所在地 |
石川県金沢市直江東2丁目
|
| 物件種目 |
中古一戸建て |
| 価格 |
4,480万円 |
借地期間・地代(月額) |
- |
| 権利金 |
- |
敷金または保証金 |
- / - |
| 維持費等 |
- |
その他一時金 |
- |
| 間取り |
3SLDK(和 8 洋 5.8・8.4 LDK 20.1 S 16.5) |
建物面積 |
153.68m² |
| 土地権利 |
所有権 |
建物構造 |
木造 |
| 土地面積 |
227.70m²(公簿) |
私道負担面積 |
なし |
| 築年月 |
2016年1月(築10年)
|
都市計画 |
市街化区域 |
| 建物名 |
|
建築確認番号 |
- |
| 用途地域 |
1種中高 |
駐車場 |
- |
| 建ぺい率 |
60% |
容積率 |
200% |
| 階建 |
2階建 |
接道状況 |
西 6.0m 公道 接面14.1m
・ 北 6.0m 公道 接面12.2m
・ 二方道路
|
| 地目 |
宅地 |
地勢 |
平坦 |
| 国土法届出 |
- |
セットバック |
- |
| アピールポイント |
【おすすめポイント】
☆1階2階にキッチン、トイレありなので2世帯住宅にもお使いいただけます♪
☆ウッドデッキがあり、晴れた日は朝食をお外で外の風にあたりながら食べるのもいいですね♪
☆2階に広いバルコニーがあり、BBQやお子様のプール、友人や親戚を招いてチルタイムにも♪キッチンがあるので、後片付けの手間も減ります♪
☆2階寝室にウォークインクローゼットがあり、たくさん収納できます♪
☆1階にサンルームがあり、冬場で安心して洗濯物が干せますね♪
【周辺環境】
・鞍月小学校 徒歩約24分
・港中学校 徒歩約14分
★売却・住み替え
現在お住まいのご自宅や使用方法にお悩みの物件がございましたら、エニシアにお気軽にお問合せください。無料査定実施中!
★物件ご案内随時受付中!(事前に必ずお問い合わせください)
今から物件を見たい!
自分に合う物件を探してほしい、相談に乗ってほしい!
買う予定はまだ先だけど、物件を見ておきたい、などもお気軽にお問合せください!
エニシアでは無料で相談にのっております♪ |
| リフォーム履歴 |
- |
| リノベーション履歴 |
- |
| 瑕疵保証 |
- |
| 瑕疵保険 |
- |
| 評価・証明書 |
- |
| 備考 |
バルコニー:49.83m²
主要採光面:東向き
施工会社:株式会社アントール
建築確認完了検査済証あり、新築時・増改築時の設計図書あり
~お問合せの流れ~
【1】 ご来店、物件のご案内のご予約はメールでのお問合せ、またはお電話にてお問合せ下さい。
メールでのお問合せの方はその後、担当スタッフから詳細についてご連絡させていただきます。
分からないことや相談に乗ってほしい、他の物件も合わせてみたいなど、お電話にてご遠慮なく
ご相談ください!
【2】ご来店、もしくはご案内の日程が決まりましたら、担当スタッフが現地の鍵を持参し、現地集合にて、物件のご案内をさせていただきます。
場所がわからない場合は、弊社の店舗、物件近くの施設等で待ち合わせさせていただき、一緒に現地へ行くことも可能ですので、お気軽におっしゃってください。
【3】ご案内終了後、ご希望のお客様には現地もしくは店舗にて資金計画や住宅ローン、他に気になる物件、条件等のお話をさせていただきます。
物件案内の所要時間はサッと見るだけだと、約10分、
じっくり見てみる方は約30分、詳しく説明を聞きたい方は約60分程度見てもらえたらと思います。もちろんお客様のご都合に合わせて対応させていただきます!
エニシアではしつこい営業はしておりませんので、ご安心ください!
|
| エネルギー消費性能 |
- |
| 断熱性能 |
- |
| 目安光熱費 |
- |
| バス・トイレ |
オートバス、追焚機能、温水洗浄便座、タンクレストイレ、トイレ2ヶ所、浴室に窓あり |
| キッチン |
カウンターキッチン、オープンキッチン、システムキッチン、食器洗浄乾燥機、IHクッキングヒーター、2口コンロ |
| 設備・サービス |
全居室収納、ウォークインクローゼット、シューズインクローゼット、クローゼット、モニター付インターホン、省エネ給湯器、室内物干し、上水道、下水道、電気、エアコン、庭、ルーフバルコニー、ウッドデッキ、ダウンライト、間接照明、照明器具、複層ガラス、Low-E ガラス |
| その他 |
- |
| 現況 |
空家 |
引渡可能時期 |
即時 |
| 物件番号 |
6986223693 |
|
|
| 情報公開日 |
2025年7月1日 |
次回更新予定日 |
2025年12月9日 |
| ケータイ用バーコード |
- スマートフォンでこの物件を見る
- スマートフォンからもこの物件をご覧になれます。
|
※「-」と表示されている項目については、情報提供会社にご確認ください。
| 周辺施設 |
金沢市立鞍月小学校 |
| 距離 |
1932m |
写真を見る |
| 周辺施設 |
金沢市立港中学校 |
| 距離 |
1178m |
写真を見る |
| 周辺施設 |
弓取こども園 |
| 距離 |
1033m |
写真を見る |
| 周辺施設 |
ゲンキー近岡店 |
| 距離 |
299m |
写真を見る |
| 周辺施設 |
コメダ珈琲店金沢直江店 |
| 距離 |
208m |
写真を見る |
| 周辺施設 |
大阪屋ショップ近岡店 |
| 距離 |
405m |
写真を見る |
| 周辺施設 |
鞍月中央公園 |
| 距離 |
609m |
写真を見る |
| 周辺施設 |
100満ボルト金沢直江店 |
| 距離 |
424m |
写真を見る |
ここから簡単にお問い合わせをすることができます。
(SSLでの暗号化での送信を希望されるお客さまは
こちら
よりお問い合わせください)
お問い合わせを行う前に
「個人情報の取り扱いについて」を必ずお読みください。
「個人情報の取り扱いについて」に同意いただいた場合は「上記にご同意の上 確認画面へ進む」のボタンをクリックしてください。
個人情報の取り扱いについて
皆さまが送付された個人情報はアットホーム(株)のサーバを経由し、お問い合わせ先の不動産会社にメールまたはFAXにて転送されるためアットホーム(株)にも保管されます。アットホーム(株)で保管された個人情報の取り扱いについては、【こちら】をご覧ください。
また、本画面でご記入いただいた個人情報は、お問い合わせ先の不動産会社でも保管します。 お問い合わせ先の不動産会社が保管する個人情報の取り扱いについては、不動産会社に直接お問い合わせください。
石川県知事免許(1)第4389号 |
|---|
- 交通:
- IRいしかわ鉄道/金沢駅
- 石川県金沢市北町丁45番地
- TEL:
- 076-255-2828
- 所属団体:
- (公社)石川県宅地建物取引業協会会員
取引態様:専任媒介  - 40409612
|
- スマートフォンで
この不動産会社を見る

|
- 提携サイト等より掲載されている物件情報につきましては、不動産会社詳細情報にリンクされていないものがあります。
- 物件に関するお問合せは、物件詳細ページの「情報提供会社」に表示されている不動産会社へ直接お願いいたします。
- 間取図は、現況を優先させていただきます。
- 映像は物件の一部を撮影したものです。物件の契約にあたっての最終判断はご自身の判断に基づいて行ってください。
- 仲介手数料について

アットホームは物件情報の適正化に努めております。
内容に誤りがある場合にはこちらへご連絡ください。