佐賀県伊万里市山代町福川内(楠久駅)の一戸建て:物件詳細
交通 所在地 |
駅徒歩 |
価格 |
間取り 建物面積 |
土地面積 私道負担面積 |
物件種目 築年月 |
|
松浦鉄道西九州線/楠久 [バス利用可] バス 楠久上(西肥) 停歩5分
佐賀県伊万里市山代町福川内
|
14分
|
3,300万円
|
5DK
219.55m²
|
717.66m²
-
|
中古一戸建て
1991年9月(築34年4ヶ月)
|
|
駐車場3台分以上、バス1坪以上、オール電化、前面棟無、隣接建物距離2m以上
|
|
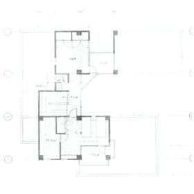
間取図
1階間取り図
|
間取図
2階間取り図
|
その他の画像
|
| 交通 | 松浦鉄道西九州線 楠久駅 徒歩14分 [バス利用可] バス 楠久上(西肥) 停歩5分 |
| 所在地 |
佐賀県伊万里市山代町福川内
|
| 物件種目 |
中古一戸建て |
| 価格 |
3,300万円 |
借地期間・地代(月額) |
- |
| 権利金 |
- |
敷金または保証金 |
- / - |
| 維持費等 |
- |
その他一時金 |
- |
| 間取り |
5DK(和 6・10 洋 12・6・10 DK 10) |
建物面積 |
219.55m² |
| 土地権利 |
所有権 |
建物構造 |
RC |
| 土地面積 |
717.66m²(公簿) |
私道負担面積 |
- |
| 築年月 |
1991年9月(築34年4ヶ月)
|
都市計画 |
非線引区域 |
| 建物名 |
|
建築確認番号 |
- |
| 用途地域 |
無指定 |
駐車場 |
- |
| 建ぺい率 |
60% |
容積率 |
200% |
| 階建 |
2階建 |
接道状況 |
西 接面11.0m
|
| 地目 |
宅地 |
地勢 |
平坦 |
| 国土法届出 |
- |
セットバック |
- |
| リフォーム履歴 |
- |
| リノベーション履歴 |
- |
| 瑕疵保証 |
- |
| 瑕疵保険 |
- |
| 評価・証明書 |
- |
| 備考 |
-
|
| エネルギー消費性能 |
- |
| 断熱性能 |
- |
| 目安光熱費 |
- |
| バス・トイレ |
浴室暖房、浴室乾燥機、追焚機能、シャワー付洗面化粧台、温水洗浄便座、トイレ2ヶ所、浴室に窓あり |
| キッチン |
システムキッチン、独立型キッチン、IHクッキングヒーター |
| 設備・サービス |
ウォークインクローゼット、エアコン2台以上、クローゼット、上水道、電気、庭、ワイドバルコニー、照明器具 |
| その他 |
- |
| 現況 |
所有者居住中 |
引渡可能時期 |
相談 |
| 物件番号 |
6986300476 |
|
|
| 情報公開日 |
2025年9月8日 |
次回更新予定日 |
2025年12月30日 |
| ケータイ用バーコード |
- スマートフォンでこの物件を見る
- スマートフォンからもこの物件をご覧になれます。
|
※「-」と表示されている項目については、情報提供会社にご確認ください。
| 周辺施設 |
ファインズTAKEDA |
| 距離 |
1519m |
| 周辺施設 |
デイリーヤマザキ伊万里山代店 |
| 距離 |
1366m |
| 周辺施設 |
伊万里市立山代東小学校 |
| 距離 |
2328m |
| 周辺施設 |
医療法人光仁会西田病院 |
| 距離 |
1303m |
| 周辺施設 |
伊万里・有田消防組合伊万里消防署西分署 |
| 距離 |
2646m |
ここから簡単にお問い合わせをすることができます。
(SSLでの暗号化での送信を希望されるお客さまは
こちら
よりお問い合わせください)
お問い合わせを行う前に
「個人情報の取り扱いについて」を必ずお読みください。
「個人情報の取り扱いについて」に同意いただいた場合は「上記にご同意の上 確認画面へ進む」のボタンをクリックしてください。
個人情報の取り扱いについて
皆さまが送付された個人情報はアットホーム(株)のサーバを経由し、お問い合わせ先の不動産会社にメールまたはFAXにて転送されるためアットホーム(株)にも保管されます。アットホーム(株)で保管された個人情報の取り扱いについては、【こちら】をご覧ください。
また、本画面でご記入いただいた個人情報は、お問い合わせ先の不動産会社でも保管します。 お問い合わせ先の不動産会社が保管する個人情報の取り扱いについては、不動産会社に直接お問い合わせください。
佐賀県知事免許(1)第2697号 |
|---|
- 交通:
- JR筑肥線/伊万里駅 徒歩5分
- 佐賀県伊万里市伊万里町甲709-1
- TEL:
- 0955-22-2131
- 所属団体:
- (公社)佐賀県宅地建物取引業協会会員(一社)九州不動産公正取引協議会加盟
取引態様:媒介  - 80508207
|
- スマートフォンで
この不動産会社を見る

|
- 提携サイト等より掲載されている物件情報につきましては、不動産会社詳細情報にリンクされていないものがあります。
- 物件に関するお問合せは、物件詳細ページの「情報提供会社」に表示されている不動産会社へ直接お願いいたします。
- 間取図は、現況を優先させていただきます。
- 映像は物件の一部を撮影したものです。物件の契約にあたっての最終判断はご自身の判断に基づいて行ってください。
- 仲介手数料について

アットホームは物件情報の適正化に努めております。
内容に誤りがある場合にはこちらへご連絡ください。