埼玉県さいたま市北区日進町2丁目(日進駅)の一戸建て:物件詳細
交通 所在地 |
駅徒歩 |
価格 |
間取り 建物面積 |
土地面積 私道負担面積 |
物件種目 築年月 |
|
JR川越線/日進
埼玉県さいたま市北区日進町2丁目
|
7分
|
4,480万円
|
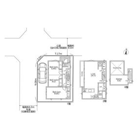
3SLDK
88.19m²
|
84.17m²
なし
|
新築一戸建て
2025年9月
|
|
デザイナーズ、外壁サイディング、24時間換気システム、閑静な住宅街、整形地
|
|
間取図
|
|
<
その他の画像
>
|
| 交通 | JR川越線 日進駅 徒歩7分 |
| 所在地 |
埼玉県さいたま市北区日進町2丁目
|
| 物件種目 |
新築一戸建て |
| 価格 |
4,480万円 |
借地期間・地代(月額) |
- |
| 権利金 |
- |
敷金または保証金 |
- / - |
| 維持費等 |
- |
その他一時金 |
- |
| 間取り |
3SLDK(洋 7.9・9.9 LDK 19.3 S 6.1) |
建物面積 |
88.19m² |
| 土地権利 |
所有権 |
建物構造 |
木造 |
| 土地面積 |
84.17m²(実測) |
私道負担面積 |
なし |
| 築年月 |
2025年9月
|
都市計画 |
市街化区域 |
| 建物名 |
|
建築確認番号 |
第25UDI1S建00102 |
| 用途地域 |
1種中高 |
駐車場 |
有 無料 |
| 建ぺい率 |
60% |
容積率 |
160% |
| 階建 |
2階建 |
接道状況 |
北 4.0m 公道
・ 西 4.0m 私道 位置指定有
・ 二方道路
|
| 地目 |
宅地 |
地勢 |
平坦 |
| 国土法届出 |
- |
セットバック |
済 0.44m² |
| アピールポイント |
2LDKで広々活用から、未来壁を設置して将来的に3LDKへの間取り変更可能な暮らしに合わせて形を変える住まいのご提案。
かさばりやすいモノや普段使わない季節モノのグッズが置けるグルニエ付、吹き抜けにもなりリビングの開放感があります。
更に、バルコニーのある階に洗濯機置き場を設置し家事の動線をまとめることで日々の暮らしのQOLの向上につながります。
また、省エネ基準適合住宅ですので、住宅ローン控除にも対応物件。フラット35SB耐久可変性【5年】が利用できます。
地盤保障20年付きですので長く安心して暮らせる住まいのご購入をご検討ください。 |
| リフォーム履歴 |
- |
| リノベーション履歴 |
- |
| 瑕疵保証 |
- |
| 瑕疵保険 |
- |
| 評価・証明書 |
- |
| 備考 |
主要採光面:西向き
施工会社:(株)オープンハウス・アーキテクト
建築確認完了検査済証あり、新築時・増改築時の設計図書あり
|
| エネルギー消費性能 |
- |
| 断熱性能 |
- |
| 目安光熱費 |
- |
| バス・トイレ |
浴室乾燥機、追焚機能、シャワー付洗面化粧台、温水洗浄便座、トイレ2ヶ所、浴室に窓あり |
| キッチン |
カウンターキッチン、システムキッチン、食器洗浄乾燥機、浄水器、3口以上コンロ |
| 設備・サービス |
全居室収納、クローゼット、モニター付インターホン、ダブルロックドア、シャッター雨戸、全居室フローリング、グルニエ、上水道、下水道、都市ガス、電気、ダウンライト、照明器具 |
| その他 |
- |
| 現況 |
完成済 |
引渡可能時期 |
即時 |
| 物件番号 |
6986406796 |
|
|
| 情報公開日 |
2025年10月31日 |
次回更新予定日 |
2025年11月18日 |
| ケータイ用バーコード |
- スマートフォンでこの物件を見る
- スマートフォンからもこの物件をご覧になれます。
|
※「-」と表示されている項目については、情報提供会社にご確認ください。
| 周辺施設 |
イスタ日進町 |
| 距離 |
1100m |
写真を見る |
| 周辺施設 |
うぃず保育園 |
| 距離 |
650m |
写真を見る |
| 周辺施設 |
サンドラッグ |
| 距離 |
700m |
写真を見る |
| 周辺施設 |
ファミリーマート |
| 距離 |
208m |
写真を見る |
| 周辺施設 |
イオン大宮 |
| 距離 |
1500m |
写真を見る |
| 周辺施設 |
さいたま北部医療センター |
| 距離 |
2100m |
写真を見る |
| 周辺施設 |
フードガーデン |
| 距離 |
700m |
写真を見る |
ここから簡単にお問い合わせをすることができます。
(SSLでの暗号化での送信を希望されるお客さまは
こちら
よりお問い合わせください)
お問い合わせを行う前に
「個人情報の取り扱いについて」を必ずお読みください。
「個人情報の取り扱いについて」に同意いただいた場合は「上記にご同意の上 確認画面へ進む」のボタンをクリックしてください。
個人情報の取り扱いについて
皆さまが送付された個人情報はアットホーム(株)のサーバを経由し、お問い合わせ先の不動産会社にメールまたはFAXにて転送されるためアットホーム(株)にも保管されます。アットホーム(株)で保管された個人情報の取り扱いについては、【こちら】をご覧ください。
また、本画面でご記入いただいた個人情報は、お問い合わせ先の不動産会社でも保管します。 お問い合わせ先の不動産会社が保管する個人情報の取り扱いについては、不動産会社に直接お問い合わせください。
神奈川県知事免許(5)第24500号 |
|---|
- 交通:
- JR東海道本線/横浜駅 徒歩10分
- 神奈川県横浜市西区浅間町1丁目2番地6 ハイズヨコハマフェリーチェ302
- TEL:
- 045-594-6507
- FAX:
- 045-594-6508
- 所属団体:
- (公社)神奈川県宅地建物取引業協会会員(公社)首都圏不動産公正取引協議会加盟
取引態様:売主  - 00109380
|
- スマートフォンで
この不動産会社を見る

|
- 提携サイト等より掲載されている物件情報につきましては、不動産会社詳細情報にリンクされていないものがあります。
- 物件に関するお問合せは、物件詳細ページの「情報提供会社」に表示されている不動産会社へ直接お願いいたします。
- 間取図は、現況を優先させていただきます。
- 映像は物件の一部を撮影したものです。物件の契約にあたっての最終判断はご自身の判断に基づいて行ってください。
- 仲介手数料について

アットホームは物件情報の適正化に努めております。
内容に誤りがある場合にはこちらへご連絡ください。