愛知県名古屋市守山区大字上志段味字大久手下(高蔵寺駅)の一戸建て:物件詳細
交通 所在地 |
駅徒歩 |
価格 |
間取り 建物面積 |
土地面積 私道負担面積 |
物件種目 築年月 |
|
JR中央線/高蔵寺
愛知県名古屋市守山区大字上志段味字大久手下
|
21分
|
5,480万円
|
3SLDK
101.02m²
|
164.51m²
-
|
新築一戸建て
2026年1月
|
|
駐車場2台分、南向き、高気密高断熱住宅、24時間換気システム、バリアフリー、吹抜、閑静な住宅街、オール電化、区画整理地内、整形地、前面棟無
|
|
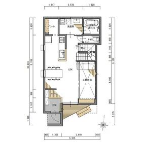
間取図
1階平面図
|
間取図
2階平面図
|
<
その他の画像
>
|
| 交通 | JR中央線 高蔵寺駅 徒歩21分 |
| 所在地 |
愛知県名古屋市守山区大字上志段味字大久手下
|
| 物件種目 |
新築一戸建て |
| 価格 |
5,480万円 |
借地期間・地代(月額) |
- |
| 権利金 |
- |
敷金または保証金 |
- / - |
| 維持費等 |
- |
その他一時金 |
- |
| 間取り |
3SLDK(洋 8・4・4 LDK 19 S 1.5) |
建物面積 |
101.02m² |
| 土地権利 |
所有権 |
建物構造 |
木造 |
| 土地面積 |
164.51m²(公簿) |
私道負担面積 |
- |
| 築年月 |
2026年1月
|
都市計画 |
市街化区域 |
| 建物名 |
吹抜けと自然素材の家 守山区上志段味 「エコボテラスA棟」 |
建築確認番号 |
第 愛建2025建築確認00412 号 |
| 用途地域 |
1種中高 |
駐車場 |
- |
| 建ぺい率 |
60% |
容積率 |
200% |
| 階建 |
2階建 |
接道状況 |
-
|
| 地目 |
宅地 |
地勢 |
雛段 |
| 国土法届出 |
- |
セットバック |
- |
| アピールポイント |
◎名古屋市内でありながら森林公園、植物園などの緑を身近に感じられる環境
◎コストコや大型スーパー、スターバックスなど買い物施設やお洒落なお店が驚くほど充実しています。
◎家づくりには「使ってはいけないもの」、「使わねばならないもの」があります。私たちは、環境と未来の子供たちのために「ECOボード」を選択・決断しました。
◎自然素材で作られたヨーロッパの家は50年、100年と住み継がれています。「美しく保つための性能」を求めて、世界の家づくりを見てきた末に行き着いたのが、 世界有数の環境先進国ドイツ。 厳しい自然環境の中でも耐えうる建材と家づくり。室内を快適で健康な状態に保つ呼吸をする家。
◎一般的な日本の住宅火災時には化学物質が燃焼して有毒ガスが発生します。避難する時間や安全性を考え、火に強く、有毒ガスを発生させない木繊維断熱材「Ecoボード」を採用。 |
| リフォーム履歴 |
- |
| リノベーション履歴 |
- |
| 瑕疵保証 |
- |
| 瑕疵保険 |
- |
| 評価・証明書 |
- |
| 備考 |
他所在地:名古屋市上志段味特定土地区画整理組合(仮換地)街区番号110街区仮1番7
主要採光面:南向き
号棟番号:A棟
|
| エネルギー消費性能 |
- |
| 断熱性能 |
- |
| 目安光熱費 |
- |
| バス・トイレ |
浴室暖房、浴室乾燥機、オートバス、高温差湯式、温水洗浄便座、タンクレストイレ、トイレ2ヶ所 |
| キッチン |
- |
| 設備・サービス |
全居室収納、ウォークインクローゼット、クローゼット、モニター付インターホン、カードキー、ディンプルキー、省エネ給湯器、庭、ウッドデッキ、人感センサー付照明、ダウンライト、インターネット対応、複層ガラス |
| その他 |
- |
| 現況 |
完成済 |
引渡可能時期 |
相談 |
| 物件番号 |
6986419973 |
仲介手数料 |
不要 |
| 情報公開日 |
2026年4月24日 |
次回更新予定日 |
2026年5月23日 |
| ケータイ用バーコード |
- スマートフォンでこの物件を見る
- スマートフォンからもこの物件をご覧になれます。
|
※「-」と表示されている項目については、情報提供会社にご確認ください。
ここから簡単にお問い合わせをすることができます。
(SSLでの暗号化での送信を希望されるお客さまは
こちら
よりお問い合わせください)
お問い合わせを行う前に
「個人情報の取り扱いについて」を必ずお読みください。
「個人情報の取り扱いについて」に同意いただいた場合は「上記にご同意の上 確認画面へ進む」のボタンをクリックしてください。
個人情報の取り扱いについて
皆さまが送付された個人情報はアットホーム(株)のサーバを経由し、お問い合わせ先の不動産会社にメールまたはFAXにて転送されるためアットホーム(株)にも保管されます。アットホーム(株)で保管された個人情報の取り扱いについては、【こちら】をご覧ください。
また、本画面でご記入いただいた個人情報は、お問い合わせ先の不動産会社でも保管します。 お問い合わせ先の不動産会社が保管する個人情報の取り扱いについては、不動産会社に直接お問い合わせください。
愛知県知事免許(3)第22688号 |
|---|
- 交通:
- 名古屋市名城線/上前津駅 徒歩4分
- 愛知県名古屋市中区大須4丁目14番26号 ジツダビル
- TEL:
- 052-261-2563
- FAX:
- 052-261-2565
- 所属団体:
- (公社)愛知県宅地建物取引業協会会員東海不動産公正取引協議会加盟
取引態様:売主  - 40408504
|
- スマートフォンで
この不動産会社を見る

|
- 提携サイト等より掲載されている物件情報につきましては、不動産会社詳細情報にリンクされていないものがあります。
- 物件に関するお問合せは、物件詳細ページの「情報提供会社」に表示されている不動産会社へ直接お願いいたします。
- 間取図は、現況を優先させていただきます。
- 映像は物件の一部を撮影したものです。物件の契約にあたっての最終判断はご自身の判断に基づいて行ってください。
- 仲介手数料について

アットホームは物件情報の適正化に努めております。
内容に誤りがある場合にはこちらへご連絡ください。