山口県宇部市厚南中央5丁目(宇部駅)の一戸建て:物件詳細
交通 所在地 |
駅徒歩 |
価格 |
間取り 建物面積 |
土地面積 私道負担面積 |
物件種目 築年月 |
|
宇部線/宇部
山口県宇部市厚南中央5丁目
|
21分
|
3,100万円
|
2SLDK
87.76m²
|
202.68m²
-
|
中古一戸建て
2018年4月(築8年2ヶ月)
|
|
駐車場2台分、バス1坪以上、24時間換気システム、吹抜、閑静な住宅街、オール電化、整形地、分譲地内
|
|
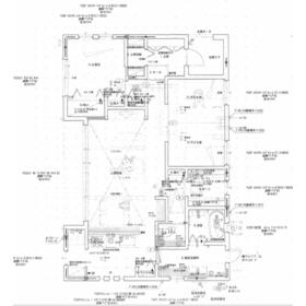
間取図
|
|
<
その他の画像
>
|
| 交通 | 宇部線 宇部駅 徒歩21分 |
|---|
| その他の交通 | JR山陽本線 宇部駅 徒歩21分 |
| 所在地 |
山口県宇部市厚南中央5丁目
|
| 物件種目 |
中古一戸建て |
| 価格 |
3,100万円 |
借地期間・地代(月額) |
- |
| 権利金 |
- |
敷金または保証金 |
- / - |
| 維持費等 |
- |
その他一時金 |
- |
| 間取り |
2SLDK(洋 5.5・8.3 LDK 20.8 S 4.9) |
建物面積 |
87.76m² |
| 土地権利 |
所有権 |
建物構造 |
軽量鉄骨造 |
| 土地面積 |
202.68m²(公簿) |
私道負担面積 |
- |
| 築年月 |
2018年4月(築8年2ヶ月)
|
都市計画 |
非線引区域 |
| 建物名 |
|
建築確認番号 |
- |
| 用途地域 |
1種住居 |
駐車場 |
- |
| 建ぺい率 |
60% |
容積率 |
200% |
| 階建 |
平屋建 |
接道状況 |
北西
|
| 地目 |
宅地 |
地勢 |
平坦 |
| 国土法届出 |
- |
セットバック |
- |
| アピールポイント |
★積水ハウス施工の築浅中古平家★コンパクトな作りの中でも水回り等のポイントには充分な広さがあり、使い勝手の良い作り★住宅性能表示耐震等級3★瓦一体型太陽光発電システムで省エネ仕様★キッチンパントリー、ウォークインクローゼット、ロフト等収納スペースも充実★太陽光パネル搭載で、売電収入もあります★ |
| リフォーム履歴 |
- |
| リノベーション履歴 |
- |
| 瑕疵保証 |
- |
| 瑕疵保険 |
- |
| 評価・証明書 |
- |
| 備考 |
主要採光面:南西向き
|
| エネルギー消費性能 |
- |
| 断熱性能 |
- |
| 目安光熱費 |
- |
| バス・トイレ |
浴室暖房、浴室乾燥機、オートバス、追焚機能、シャワー付洗面化粧台、温水洗浄便座、タンクレストイレ |
| キッチン |
カウンターキッチン、システムキッチン、食器乾燥機、IHクッキングヒーター、3口以上コンロ、グリル |
| 設備・サービス |
太陽光発電システム、EV車充電設備、クローゼット、モニター付インターホン、ディンプルキー、ダブルロックドア、全居室フローリング、上水道、下水道、電気、側溝、エアコン、ウッドデッキ、ダウンライト、インターネット対応、複層ガラス |
| その他 |
- |
| 現況 |
空家 |
引渡可能時期 |
相談 |
| 物件番号 |
6986428794 |
仲介手数料 |
売買代金の3.3%+6.6万円 |
| 情報公開日 |
2025年6月3日 |
次回更新予定日 |
2026年5月16日 |
| ケータイ用バーコード |
- スマートフォンでこの物件を見る
- スマートフォンからもこの物件をご覧になれます。
|
※「-」と表示されている項目については、情報提供会社にご確認ください。
| 周辺施設 |
ウェスタまるき西宇部店 |
| 距離 |
1214m |
| 周辺施設 |
ファミリーマート宇部東須恵店 |
| 距離 |
609m |
| 周辺施設 |
スーパーセンタートライアル際波店 |
| 距離 |
768m |
| 周辺施設 |
医療法人和同会宇部西リハビリテーション病院 |
| 距離 |
1505m |
ここから簡単にお問い合わせをすることができます。
(SSLでの暗号化での送信を希望されるお客さまは
こちら
よりお問い合わせください)
お問い合わせを行う前に
「個人情報の取り扱いについて」を必ずお読みください。
「個人情報の取り扱いについて」に同意いただいた場合は「上記にご同意の上 確認画面へ進む」のボタンをクリックしてください。
個人情報の取り扱いについて
皆さまが送付された個人情報はアットホーム(株)のサーバを経由し、お問い合わせ先の不動産会社にメールまたはFAXにて転送されるためアットホーム(株)にも保管されます。アットホーム(株)で保管された個人情報の取り扱いについては、【こちら】をご覧ください。
また、本画面でご記入いただいた個人情報は、お問い合わせ先の不動産会社でも保管します。 お問い合わせ先の不動産会社が保管する個人情報の取り扱いについては、不動産会社に直接お問い合わせください。
山口県知事免許(4)第3239号 |
|---|
- 交通:
- 宇部線/宇部新川駅 徒歩40分 【バス】10分 小羽山入口 停歩1分
- 山口県宇部市大字中宇部1734-3
- TEL:
- 0836-39-5539
- FAX:
- 0836-39-5622
- 所属団体:
- (公社)全日本不動産協会会員中国地区不動産公正取引協議会加盟
取引態様:一般媒介  - 80502928
|
- スマートフォンで
この不動産会社を見る

|
- 提携サイト等より掲載されている物件情報につきましては、不動産会社詳細情報にリンクされていないものがあります。
- 物件に関するお問合せは、物件詳細ページの「情報提供会社」に表示されている不動産会社へ直接お願いいたします。
- 間取図は、現況を優先させていただきます。
- 映像は物件の一部を撮影したものです。物件の契約にあたっての最終判断はご自身の判断に基づいて行ってください。
- 仲介手数料について

アットホームは物件情報の適正化に努めております。
内容に誤りがある場合にはこちらへご連絡ください。