熊本県八代市松崎町(新八代駅)の一戸建て:物件詳細
交通 所在地 |
駅徒歩 |
価格 |
間取り 建物面積 |
土地面積 私道負担面積 |
物件種目 築年月 |
|
九州新幹線/新八代
熊本県八代市松崎町
|
6700m
|
2,880万円
|
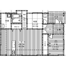
5LDK
129.06m²
|
274.26m²
-
|
中古一戸建て
2015年4月(築10年7ヶ月)
|
|
駐車場3台分以上、閑静な住宅街、オール電化、整形地、隣接建物距離2m以上
|
|
間取図
|
|
<
その他の画像
>
|
| 交通 | 九州新幹線 新八代駅 徒歩6700m |
| 所在地 |
熊本県八代市松崎町
|
| 物件種目 |
中古一戸建て |
| 価格 |
2,880万円 |
借地期間・地代(月額) |
- |
| 権利金 |
- |
敷金または保証金 |
- / - |
| 維持費等 |
- |
その他一時金 |
- |
| 間取り |
5LDK |
建物面積 |
129.06m² |
| 土地権利 |
所有権 |
建物構造 |
木造 |
| 土地面積 |
274.26m²(公簿) |
私道負担面積 |
- |
| 築年月 |
2015年4月(築10年7ヶ月)
|
都市計画 |
非線引区域 |
| 建物名 |
|
建築確認番号 |
ACS第140781号 |
| 用途地域 |
2種中高 |
駐車場 |
有 |
| 建ぺい率 |
70% |
容積率 |
200% |
| 階建 |
2階建 |
接道状況 |
北東
・ 北西
・ 二方道路
|
| 地目 |
宅地 |
地勢 |
- |
| 国土法届出 |
- |
セットバック |
済 |
| リフォーム履歴 |
■内装:2025年8月 全室クロス張替え ※実施年月は最も古い履歴を表示 |
| リノベーション履歴 |
- |
| 瑕疵保証 |
- |
| 瑕疵保険 |
- |
| 評価・証明書 |
- |
| 備考 |
施工会社:有限会社 碇山建設
建築確認完了検査済証あり
スマートキー、ガスヒーターの配管有り
|
| エネルギー消費性能 |
- |
| 断熱性能 |
- |
| 目安光熱費 |
- |
| バス・トイレ |
追焚機能、トイレ2ヶ所、浴室に窓あり |
| キッチン |
オープンキッチン、IHクッキングヒーター、3口以上コンロ |
| 設備・サービス |
太陽光発電システム、モニター付インターホン、ダブルロックドア、シャッター雨戸、庭、照明器具、蓄電池付き |
| その他 |
- |
| 現況 |
空家 |
引渡可能時期 |
相談 |
| 物件番号 |
6986548083 |
|
|
| 情報公開日 |
2025年6月9日 |
次回更新予定日 |
2025年10月31日 |
| ケータイ用バーコード |
- スマートフォンでこの物件を見る
- スマートフォンからもこの物件をご覧になれます。
|
※「-」と表示されている項目については、情報提供会社にご確認ください。
| 周辺施設 |
フードプラザにしだ高島店 |
| 距離 |
972m |
写真を見る |
| 周辺施設 |
業務スーパー八代永碇町店 |
| 距離 |
1299m |
| 周辺施設 |
セブンイレブン八代松高小学校前店 |
| 距離 |
1023m |
| 周辺施設 |
八代双葉保育園 |
| 距離 |
135m |
写真を見る |
ここから簡単にお問い合わせをすることができます。
(SSLでの暗号化での送信を希望されるお客さまは
こちら
よりお問い合わせください)
お問い合わせを行う前に
「個人情報の取り扱いについて」を必ずお読みください。
「個人情報の取り扱いについて」に同意いただいた場合は「上記にご同意の上 確認画面へ進む」のボタンをクリックしてください。
個人情報の取り扱いについて
皆さまが送付された個人情報はアットホーム(株)のサーバを経由し、お問い合わせ先の不動産会社にメールまたはFAXにて転送されるためアットホーム(株)にも保管されます。アットホーム(株)で保管された個人情報の取り扱いについては、【こちら】をご覧ください。
また、本画面でご記入いただいた個人情報は、お問い合わせ先の不動産会社でも保管します。 お問い合わせ先の不動産会社が保管する個人情報の取り扱いについては、不動産会社に直接お問い合わせください。
熊本県知事免許(4)第4698号 |
|---|
- 交通:
- 【バス】 郡築入口
- 熊本県八代市郡築二番町92-2
- TEL:
- 0965-31-3855
- FAX:
- 0965-31-3856
- 所属団体:
- (公社)熊本県宅地建物取引業協会会員(一社)九州不動産公正取引協議会加盟
取引態様:専属専任媒介  - 80501375
|
- スマートフォンで
この不動産会社を見る

|
- 提携サイト等より掲載されている物件情報につきましては、不動産会社詳細情報にリンクされていないものがあります。
- 物件に関するお問合せは、物件詳細ページの「情報提供会社」に表示されている不動産会社へ直接お願いいたします。
- 間取図は、現況を優先させていただきます。
- 映像は物件の一部を撮影したものです。物件の契約にあたっての最終判断はご自身の判断に基づいて行ってください。
- 仲介手数料について

アットホームは物件情報の適正化に努めております。
内容に誤りがある場合にはこちらへご連絡ください。