不動産 賃貸 マンション等の住宅情報:埼玉住まい情報


広島県江田島市大柿町飛渡瀬の一戸建て:物件詳細

  • 物件詳細
  • 情報の見方
  • 印刷用画面
交通
所在地
駅徒歩 価格 間取り
建物面積
土地面積
私道負担面積
物件種目
築年月

中町港から自動車利用の場合、9分

広島県江田島市大柿町飛渡瀬


1,115万円

5DK

110.12m²

391.24m²

有 55.12m²(共有持分1/3)

中古一戸建て

2006年4月(築19年7ヶ月)

おすすめPOINT駐車場2台分、閑静な住宅街、庭10坪以上、隣接建物距離2m以上、IT重説対応物件

おすすめコメント

ゆめタウン江田島の隣の便利な場所にありながら、ゆったりと時間が流れるような静かな住宅街。前面通路は狭いですが、見知らぬ車が通過することはないから、安心安全です!

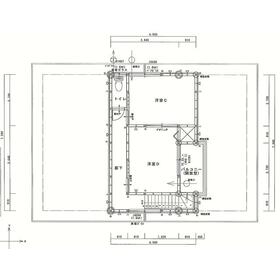
間取図

間取図

1階平面図

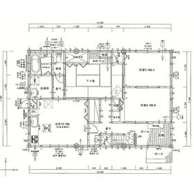
間取図

間取図

2階平面図/廊下左側の屋根下部分は物置スペースとなっています。

<
その他の画像
  • キッチン
  • 室内
  • 室内
  • 室内
  • 室内
  • 室内
  • 室内
  • 玄関
  • 室内
  • 室内
  • 室内
  • 室内
  • トイレ
  • 収納
  • 外観
  • 外観
  • 外観
  • 共有部分
>
    • とりあえず保存
    • お問い合わせ
    交通

    中町港から自動車利用の場合、9分

    所在地 広島県江田島市大柿町飛渡瀬
    物件種目 中古一戸建て
    価格 1,115万円 借地期間・地代(月額)
    権利金 敷金または保証金 - / -
    維持費等 その他一時金
    間取り 5DK(和 6 洋 6・6・6・6 DK 10) 建物面積 110.12m²
    土地権利 所有権 建物構造 木造
    土地面積 391.24m²(公簿) 私道負担面積 有 55.12m²(共有持分1/3)
    築年月 2006年4月(築19年7ヶ月) 都市計画 非線引区域
    建物名 江田島市大柿町飛渡瀬 「ゆめタウン江田島」隣 建築確認番号
    用途地域 無指定 駐車場
    建ぺい率 70% 容積率 240%
    階建 2階建 接道状況 東 2.6m 私道 接面20.0m
    地目 宅地 地勢 平坦
    国土法届出 セットバック
    アピールポイント 車を2台停めても大丈夫。夏にはプールもBBQもOK!お家は5DK。2階には大きな屋根下収納もあって、季節用品がしっかり仕舞えます!お買い物忘れに気づいたら、勝手口からゆめタウンまで歩いても2分で到着します!【価格交渉可】
    リフォーム履歴
    リノベーション履歴
    瑕疵保証
    瑕疵保険
    評価・証明書
    備考
    他所在地:271番2、287番1(私道共有持分1/3)
    主要採光面:南東向き
    IT重説対応物件
    建築基準法43条申請要
    エネルギー消費性能
    断熱性能
    目安光熱費
    バス・トイレ 温水洗浄便座、トイレ2ヶ所、浴室に窓あり
    キッチン システムキッチン、3口以上コンロ
    設備・サービス ウォークインクローゼット、上水道、下水道、プロパンガス、庭、照明器具
    その他
    現況 空家 引渡可能時期 相談
    物件番号 6986557819 仲介手数料 売買代金の3.3%+6.6万円
    情報公開日 2025年10月1日 次回更新予定日 2025年11月4日
    ケータイ用バーコード

    QRコード

    スマートフォンでこの物件を見る
    スマートフォンからもこの物件をご覧になれます。
    ※「-」と表示されている項目については、情報提供会社にご確認ください。

    この物件の周辺情報

    周辺施設 ゆめタウン江田島
    距離 461m
    周辺施設 藤三江田島ショッピングセンター
    距離 795m
    周辺施設 セブンイレブン広島江田島町店
    距離 234m
    周辺施設 ジョイフル江田島店
    距離 118m
    周辺施設 エディオン江能店
    距離 218m
    周辺施設 飛渡瀬郵便局
    距離 277m
    周辺施設 呉信用金庫江能支店
    距離 535m
    周辺施設 江田島市総合運動公園グラウンド
    距離 1943m

    クイックお問い合わせ

    ここから簡単にお問い合わせをすることができます。
    (SSLでの暗号化での送信を希望されるお客さまは こちら よりお問い合わせください)

    お問い合わせ内容(必須)
    お名前(必須) 姓  名 
    メールアドレス(必須)
    ※携帯電話のメールアドレスをご入力される方はこちらをご確認ください
    電話番号(必須)
    - -

    ※入力いただいた電話番号へSMSまたは音声でパスワードをご連絡します。

    携帯電話の番号をご入力の方へ

    携帯電話の番号をご入力の方へ
    確認画面にて送信ボタンをクリックするとSMSが携帯電話に届きます。
    そのSMSに記載のパスワード(認証番号)を入力し、お問い合わせを完了してください。
    尚、SMSの送信者番号は 0005 202 760 となります。
    これはアットホームの固定番号です。

    備考欄 希望条件、物件案内希望日、質問などがございましたらご記入ください。
    お問い合わせを行う前に「個人情報の取り扱いについて」を必ずお読みください。
    「個人情報の取り扱いについて」に同意いただいた場合は「上記にご同意の上 確認画面へ進む」のボタンをクリックしてください。

    個人情報の取り扱いについて

    皆さまが送付された個人情報はアットホーム(株)のサーバを経由し、お問い合わせ先の不動産会社にメールまたはFAXにて転送されるためアットホーム(株)にも保管されます。アットホーム(株)で保管された個人情報の取り扱いについては、【こちら】をご覧ください。
    また、本画面でご記入いただいた個人情報は、お問い合わせ先の不動産会社でも保管します。 お問い合わせ先の不動産会社が保管する個人情報の取り扱いについては、不動産会社に直接お問い合わせください。

    情報提供会社

    情報提供会社

    ランドビル(株)

    広島県知事免許(7)第8006号

    交通:
    広島電鉄皆実線/比治山下駅 徒歩7分
    広島県広島市中区東平塚町4-12 
    TEL:
    082-246-8644
    FAX:
    082-545-9254
    所属団体:
    (公社)全日本不動産協会会員
    中国地区不動産公正取引協議会加盟

    取引態様:媒介

    • 会社情報
    • 50101591
    スマートフォンで
    この不動産会社を見る
    QRコード
    • とりあえず保存
    • お問い合わせ
    • 提携サイト等より掲載されている物件情報につきましては、不動産会社詳細情報にリンクされていないものがあります。
    • 物件に関するお問合せは、物件詳細ページの「情報提供会社」に表示されている不動産会社へ直接お願いいたします。
    • 間取図は、現況を優先させていただきます。
    • 映像は物件の一部を撮影したものです。物件の契約にあたっての最終判断はご自身の判断に基づいて行ってください。
    • 仲介手数料について仲介手数料

    アットホームは物件情報の適正化に努めております。 内容に誤りがある場合にはこちらへご連絡ください。

    【埼玉住まい情報】では、日本全国の物件から賃貸マンションや賃貸アパート・賃貸一戸建て等の賃貸住宅情報、新築マンション・分譲マンションや中古マンション等の売買マンション情報、新築一戸建てや中古一戸建てなどの戸建住宅、 土地など、総合的な不動産住宅情報検索サービスを提供致します。
    【埼玉住まい情報】から、選りすぐりの不動産物件を探してみましょう。

    【免責事項】
    このコーナーの運営はアットホーム株式会社(https://www.athome.co.jp/)が行っています。
    このコーナーに掲載している物件情報は、「アットホーム不動産情報ネットワーク」に加盟する不動産会社等(情報提供元)から提供されています。信頼性の高い情報提供が行えるよう、最大限の努力をしておりますが、その内容を保証するものではありません。 利用者のみなさまと各情報提供元との取引に起因する損害および情報が掲載されたことに起因する損害等については、株式会社イーシティ埼玉、およびアットホームは一切責任を負いません。
    各物件情報の内容や画像等はすべて現況を優先させていただきます。
    お取引等(お取引の準備、資金調達等を含みます)の際には、内容や契約条件等について、各情報提供元より十分な説明を受け、ご自身でご確認の上、判断してください。
    このコーナーへの物件情報のご掲載、その他不動産業務ソリューション等についての不動産会社様のお問合せはこちらからお願いいたします。

    物件画像: