茨城県つくば市宝陽台(牛久駅)の一戸建て:物件詳細
交通 所在地 |
駅徒歩 |
価格 |
間取り 建物面積 |
土地面積 私道負担面積 |
物件種目 築年月 |
JR常磐線/牛久
茨城県つくば市宝陽台
|
27分
|
960万円
|
5SLDK
160.64m²
|
398.48m²
なし
|
中古一戸建て
1980年8月(築45年3ヶ月)
|
二世帯向き、バス1坪以上、2面採光、吹抜、閑静な住宅街、整形地、庭10坪以上、前面棟無、隣接建物距離2m以上
|
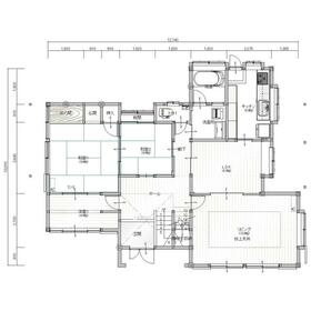
間取図
1階平面図。和の趣きも残る和洋折衷スタイルなお家です。唯一無二な他に無いお家に仕上げませんか?
|
眺望
目の前に広がる林とお庭の木々を眺めてゆったり過ごせる贅沢時間
|
<
その他の画像
>
|
交通 | JR常磐線 牛久駅 徒歩27分 |
---|
その他の交通 | つくばエクスプレス みらい平駅 徒歩10000m JR常磐線 ひたち野うしく駅 徒歩5300m |
所在地 |
茨城県つくば市宝陽台
|
物件種目 |
中古一戸建て |
価格 |
960万円 |
借地期間・地代(月額) |
- |
権利金 |
- |
敷金または保証金 |
- / - |
維持費等 |
- |
その他一時金 |
- |
間取り |
5SLDK(和 8・4.5・10・6 洋 10 LDK 23 S 4) |
建物面積 |
160.64m² |
土地権利 |
所有権 |
建物構造 |
木造 |
土地面積 |
398.48m²(公簿) |
私道負担面積 |
なし |
築年月 |
1980年8月(築45年3ヶ月)
|
都市計画 |
調整区域 |
建物名 |
ポツンと一軒家感がある昭和レトロ戸建@つくば市宝陽台 |
建築確認番号 |
- |
用途地域 |
無指定 |
駐車場 |
有 無料 |
建ぺい率 |
50% |
容積率 |
100% |
階建 |
2階建 |
接道状況 |
南東 12.0m 公道
|
地目 |
宅地 |
地勢 |
平坦 |
国土法届出 |
- |
セットバック |
- |
アピールポイント |
◇売主物件なので仲介手数料が無くとてもお得です
◇DIYリフォームで唯一無二のお家に仕上げませんか?
◇リノベーション専門の設計事務所の私たちへ何なりとご相談ください^^
◇牛久駅徒歩圏!
◇お庭でBBQや家庭菜園、ドッグランなど色々な夢が叶う広いお庭です!
◇駐車場拡張もできますよ
◇なんと48坪超の大きなお家!二世帯住宅化も可能です
◇旧宅団地の為再建築可能
※建築確認時所在地誤記
~周辺環境~
●手続き便利!市役所茎崎窓口センターまで約1.2km
●新鮮野菜!農産物直売所なの花まで約500m
●スーパーTAIRAYAまで約1.5km
●宝陽台北バス停まで約400m
●遠出楽々!圏央道「つくば牛久IC」まで約7.3km
●牛久愛和総合病院まで約3.6km
●イオンモールつくばまで約7.5km!ネットスーパー利用も可能です |
リフォーム履歴 |
- |
リノベーション履歴 |
- |
瑕疵保証 |
- |
瑕疵保険 |
- |
評価・証明書 |
■建物状況調査 申込対応可 検査料:買主負担なし |
備考 |
主要採光面:南東向き
|
エネルギー消費性能 |
- |
断熱性能 |
- |
目安光熱費 |
- |
バス・トイレ |
追焚機能、トイレ2ヶ所、浴室に窓あり |
キッチン |
独立型キッチン、3口以上コンロ |
設備・サービス |
全居室収納、上水道、下水道、都市ガス、庭 |
その他 |
- |
現況 |
空家 |
引渡可能時期 |
即時 |
物件番号 |
6986671857 |
仲介手数料 |
不要 |
情報公開日 |
2025年6月13日 |
次回更新予定日 |
2025年10月28日 |
ケータイ用バーコード |
- スマートフォンでこの物件を見る
- スマートフォンからもこの物件をご覧になれます。
|
※「-」と表示されている項目については、情報提供会社にご確認ください。
周辺施設 |
TAIRAYA茎崎店 |
距離 |
1309m |
写真を見る |
周辺施設 |
ローソンつくば小茎店 |
距離 |
1283m |
写真を見る |
周辺施設 |
つくば市立茎崎中学校 |
距離 |
1888m |
写真を見る |
周辺施設 |
つくば市立茎崎第三小学校 |
距離 |
2485m |
写真を見る |
周辺施設 |
認定こども園成蹊幼稚園 |
距離 |
702m |
写真を見る |
周辺施設 |
つくば市立城山保育所 |
距離 |
1478m |
写真を見る |
周辺施設 |
イオンモールつくば |
距離 |
7500m |
写真を見る |
周辺施設 |
つくば市役所 茎崎窓口センター |
距離 |
1200m |
写真を見る |
ここから簡単にお問い合わせをすることができます。
(SSLでの暗号化での送信を希望されるお客さまは
こちら
よりお問い合わせください)
お問い合わせを行う前に
「個人情報の取り扱いについて」を必ずお読みください。
「個人情報の取り扱いについて」に同意いただいた場合は「上記にご同意の上 確認画面へ進む」のボタンをクリックしてください。
個人情報の取り扱いについて
皆さまが送付された個人情報はアットホーム(株)のサーバを経由し、お問い合わせ先の不動産会社にメールまたはFAXにて転送されるためアットホーム(株)にも保管されます。アットホーム(株)で保管された個人情報の取り扱いについては、【こちら】をご覧ください。
また、本画面でご記入いただいた個人情報は、お問い合わせ先の不動産会社でも保管します。 お問い合わせ先の不動産会社が保管する個人情報の取り扱いについては、不動産会社に直接お問い合わせください。
茨城県知事免許(2)第7278号 |
---|
- 交通:
- つくばエクスプレス/つくば駅 徒歩42分 【バス】10分 上ノ室坂上 停歩10分
- 茨城県つくば市上ノ室671
- TEL:
- 029-879-5600
- FAX:
- 029-879-5605
- 所属団体:
- (公社)茨城県宅地建物取引業協会会員(公社)首都圏不動産公正取引協議会加盟
取引態様:売主  - 00281487
|
- スマートフォンで
この不動産会社を見る

|
- 提携サイト等より掲載されている物件情報につきましては、不動産会社詳細情報にリンクされていないものがあります。
- 物件に関するお問合せは、物件詳細ページの「情報提供会社」に表示されている不動産会社へ直接お願いいたします。
- 間取図は、現況を優先させていただきます。
- 映像は物件の一部を撮影したものです。物件の契約にあたっての最終判断はご自身の判断に基づいて行ってください。
- 仲介手数料について

アットホームは物件情報の適正化に努めております。
内容に誤りがある場合にはこちらへご連絡ください。