福井県福井市八重巻町(森田駅)の一戸建て:物件詳細
交通 所在地 |
駅徒歩 |
価格 |
間取り 建物面積 |
土地面積 私道負担面積 |
物件種目 築年月 |
|
ハピラインふくい/森田
福井県福井市八重巻町
|
12分
|
1,780万円
|
3SLDK
110.96m²
|
175.88m²
-
|
中古一戸建て
1997年3月(築29年3ヶ月)
|
|
駐車場3台分以上、外断熱、バス1坪以上、オール電化、整形地
|
|
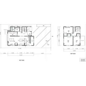
間取図
|
外観
駐車3台可
|
<
その他の画像
>
|
| 交通 | ハピラインふくい 森田駅 徒歩12分 |
| 所在地 |
福井県福井市八重巻町
|
| 物件種目 |
中古一戸建て |
| 価格 |
1,780万円 |
借地期間・地代(月額) |
- |
| 権利金 |
- |
敷金または保証金 |
- / - |
| 維持費等 |
- |
その他一時金 |
- |
| 間取り |
3SLDK(洋 8・6・6 LDK 19 S 4・3) |
建物面積 |
110.96m² |
| 土地権利 |
所有権 |
建物構造 |
木造 |
| 土地面積 |
175.88m²(公簿) |
私道負担面積 |
- |
| 築年月 |
1997年3月(築29年3ヶ月)
|
都市計画 |
市街化区域 |
| 建物名 |
|
建築確認番号 |
- |
| 用途地域 |
準工業 |
駐車場 |
有 無料 |
| 建ぺい率 |
60% |
容積率 |
200% |
| 階建 |
2階建 |
接道状況 |
東 6.0m 公道 接面9.1m
|
| 地目 |
宅地 |
地勢 |
平坦 |
| 国土法届出 |
- |
セットバック |
- |
| アピールポイント |
☆オススメポイント☆
・キッチン裏に大容量パントリー!お米やペットボトルなどの重たい荷物も駐車場から直接搬入できます。
・玄関~ファミリークローク~リビングの回遊動線で、リビングに荷物を持ち込まず散らかりにくい!
・2F洋室も全部屋に大容量の収納完備
・リビングにスタディスペースあり、夕食の支度をしながら子どもの勉強を見守れます
・キッチン幅が広く、2人で作業しても広々使えます。シンクも作業台も広々!
・キッチンの後ろには収納付きカップボードあり
【2025年5月に内装・外装・水回りリノベーション実施。】
・内装:1階2階クロス張り替え。1階・2階フローリング全張り替え。階段と2階ホールは既存。
・外装:正面は塗装工事。南側一部板金工事(張替)。北側塗装工事。
・水回り:オール電化仕様に変更。エコキュート460L2022年式。
・リビング一部を和室→洋室に変更。パントリー、ファミリークローク、スタディーコーナーを新設。収納スペースを設置。 |
| リフォーム履歴 |
■水回り:2025年5月 キッチン、浴室、トイレ、洗面所、給排水管、給湯器 オール電化仕様に変更。エコキュート460L2022年式。 ■内装:2025年5月 内装全面(床・壁・天井・建具) 1階2階クロス張り替え。1階・2階フローリング全張り替え。階段と2階ホールは既存。 ■外装:2025年5月 外壁 正面は塗装工事。南側一部板金工事(張替)。北側塗装工事。 ■その他:2025年5月 シューズクローク新品取り換え。バルコニー防水補修工事。 ※実施年月は最も古い履歴を表示 |
| リノベーション履歴 |
2025年5月 2025年5月に水回り、内装、外装リフォーム(屋根、サッシ、外壁一部を除く)、リビング一部を和室→洋室に変更。パントリー、ファミリークローク、スタディーコーナーを新設。収納スペースを設置。 ※実施年月は最も古い履歴を表示 |
| 瑕疵保証 |
- |
| 瑕疵保険 |
- |
| 評価・証明書 |
- |
| 備考 |
主要採光面:東向き
|
| エネルギー消費性能 |
- |
| 断熱性能 |
- |
| 目安光熱費 |
- |
| バス・トイレ |
オートバス、追焚機能、高温差湯式、シャワー付洗面化粧台、温水洗浄便座、トイレ2ヶ所、浴室に窓あり |
| キッチン |
カウンターキッチン、オープンキッチン、システムキッチン、食器洗浄乾燥機、IHクッキングヒーター、3口以上コンロ、Ⅱ型キッチン、グリル |
| 設備・サービス |
全居室収納、ウォークインクローゼット、エアコン2台以上、クローゼット、モニター付インターホン、ダブルロックドア、省エネ給湯器、全居室フローリング、上水道、下水道、電気、側溝、庭、ワイドバルコニー、照明器具、火災警報器(報知機)、ウォークスルークローゼット |
| その他 |
- |
| 現況 |
空家 |
引渡可能時期 |
相談 |
| 物件番号 |
6986696871 |
仲介手数料 |
不要 |
| 情報公開日 |
2025年6月16日 |
次回更新予定日 |
2026年5月21日 |
| ケータイ用バーコード |
- スマートフォンでこの物件を見る
- スマートフォンからもこの物件をご覧になれます。
|
※「-」と表示されている項目については、情報提供会社にご確認ください。
| 周辺施設 |
仁愛女子短期大学附属幼稚園 |
| 距離 |
761m |
| 周辺施設 |
(財)新田塚医療福祉センター福井総合クリニック |
| 距離 |
2983m |
ここから簡単にお問い合わせをすることができます。
(SSLでの暗号化での送信を希望されるお客さまは
こちら
よりお問い合わせください)
お問い合わせを行う前に
「個人情報の取り扱いについて」を必ずお読みください。
「個人情報の取り扱いについて」に同意いただいた場合は「上記にご同意の上 確認画面へ進む」のボタンをクリックしてください。
個人情報の取り扱いについて
皆さまが送付された個人情報はアットホーム(株)のサーバを経由し、お問い合わせ先の不動産会社にメールまたはFAXにて転送されるためアットホーム(株)にも保管されます。アットホーム(株)で保管された個人情報の取り扱いについては、【こちら】をご覧ください。
また、本画面でご記入いただいた個人情報は、お問い合わせ先の不動産会社でも保管します。 お問い合わせ先の不動産会社が保管する個人情報の取り扱いについては、不動産会社に直接お問い合わせください。
福井県知事免許(5)第1347号 |
|---|
- 交通:
- ハピラインふくい/森田駅 徒歩7分
- 福井県福井市八重巻中町26-7
- TEL:
- 0776-56-2012
- FAX:
- 0776-56-2054
- 所属団体:
- (公社)福井県宅地建物取引業協会会員北陸不動産公正取引協議会加盟
取引態様:売主  - 40405063
|
- スマートフォンで
この不動産会社を見る

|
- 提携サイト等より掲載されている物件情報につきましては、不動産会社詳細情報にリンクされていないものがあります。
- 物件に関するお問合せは、物件詳細ページの「情報提供会社」に表示されている不動産会社へ直接お願いいたします。
- 間取図は、現況を優先させていただきます。
- 映像は物件の一部を撮影したものです。物件の契約にあたっての最終判断はご自身の判断に基づいて行ってください。
- 仲介手数料について

アットホームは物件情報の適正化に努めております。
内容に誤りがある場合にはこちらへご連絡ください。