不動産 賃貸 マンション等の住宅情報:埼玉住まい情報


兵庫県姫路市東山(八家駅)の一戸建て:物件詳細

  • 物件詳細
  • 情報の見方
  • 印刷用画面
交通
所在地
駅徒歩 価格 間取り
建物面積
土地面積
私道負担面積
物件種目
築年月

山陽電鉄本線/八家

兵庫県姫路市東山

17分

2,350万円

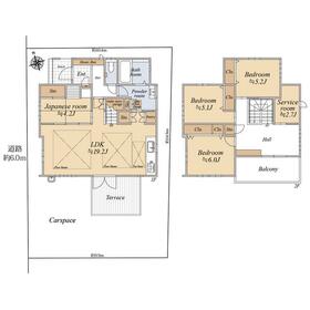
4SLDK

113.52m²

152.52m²

なし

中古一戸建て

2010年3月(築15年10ヶ月)

おすすめPOINT駐車場2台分、南向き、24時間換気システム

おすすめコメント

☆平成22年3月築!☆開発団地内!LDK19.2帖、床暖房付!☆カースペース並列2台分有!

間取図

間取図

外観

外観

外観です。

<
その他の画像
  • 外観
  • 駐車場
  • その他
  • 玄関
  • リビング
  • キッチン
  • その他
  • 室内
  • 洗面
  • バス/シャワー
  • トイレ
  • 室内
  • 室内
  • 室内
  • 小学校
  • 販売店
  • 販売店
  • 販売店
  • コンビニ
>
    • とりあえず保存
    • お問い合わせ
    交通

    山陽電鉄本線 八家駅 徒歩17分

    その他の交通

    山陽電鉄本線 白浜の宮駅 徒歩20分

    所在地 兵庫県姫路市東山
    物件種目 中古一戸建て
    価格 2,350万円 借地期間・地代(月額)
    権利金 敷金または保証金 - / -
    維持費等 その他一時金
    間取り 4SLDK(和 4.2 洋 6・5.2・5.1 LDK 19.2 S 2.7) 建物面積 113.52m²
    土地権利 所有権 建物構造 木造
    土地面積 152.52m²(公簿) 私道負担面積 なし
    築年月 2010年3月(築15年10ヶ月) 都市計画 市街化区域
    建物名 姫路市東山戸建 建築確認番号
    用途地域 1種中高 駐車場
    建ぺい率 60% 容積率 200%
    階建 2階建 接道状況 西 6.0m 公道 接面14.9m
    地目 宅地 地勢 平坦
    国土法届出 セットバック
    アピールポイント この度は、『姫路市東山戸建』のページをご覧いただきまして、誠にありがとうございます。

    本物件は、土地面積46.13坪、建物面積34.33坪、平成22年3月築の戸建です。
    カースペースは並列2台分(車種による)あります。
    1階は、LDK19.2帖と和室4.2帖と一体利用が可能な間取りとなっています。
    また、LDKにはガス床暖房が付いています。
    2階は、ゆったりとしたホールがあり、各居室には収納がある洋室が3部屋あります。

    糸引小学校まで約240m・徒歩3分とご通学に便利です。
    また、マックスバリュ東山店まで約240m・徒歩3分、ボンマルシェ白浜店まで約520m・徒歩7分、マルアイ白浜店まで約770m・徒歩10分、ローソン姫路継野々上店まで約490m・徒歩7分などなど便利な立地です。

    現況空家ですので、いつでもご内覧可能です。
    お問い合わせお待ちしております。
    リフォーム履歴
    リノベーション履歴
    瑕疵保証
    瑕疵保険
    評価・証明書
    備考
    主要採光面:南向き
    エネルギー消費性能
    断熱性能
    目安光熱費
    バス・トイレ 浴室暖房、浴室乾燥機、オートバス、追焚機能、シャワー付洗面化粧台、温水洗浄便座、浴室に窓あり
    キッチン システムキッチン、食器洗浄乾燥機、IHクッキングヒーター、3口以上コンロ、キッチン床暖房
    設備・サービス 全居室収納、モニター付インターホン、ディンプルキー、ダブルロックドア、上水道、下水道、都市ガス、電気、庭、ウッドデッキ、複層ガラス
    その他
    現況 空家 引渡可能時期 相談
    物件番号 6986724438    
    情報公開日 2025年6月19日 次回更新予定日 2025年12月8日
    ケータイ用バーコード

    QRコード

    スマートフォンでこの物件を見る
    スマートフォンからもこの物件をご覧になれます。
    ※「-」と表示されている項目については、情報提供会社にご確認ください。

    この物件の周辺情報

    周辺施設 糸引小学校まで約240m・徒歩3分です。
    距離 240m
    周辺施設 マックスバリュ東山店まで約240m・徒歩3分です。
    距離 240m
    周辺施設 ボンマルシェ白浜店まで約520m・徒歩7分です。
    距離 520m
    周辺施設 マルアイ白浜店まで約770m・徒歩10分です。
    距離 770m
    周辺施設 ローソン姫路継野々上店まで約490m・徒歩7分です。
    距離 490m

    クイックお問い合わせ

    ここから簡単にお問い合わせをすることができます。
    (SSLでの暗号化での送信を希望されるお客さまは こちら よりお問い合わせください)

    お問い合わせ内容(必須)
    お名前(必須) 姓  名 
    メールアドレス(必須)
    ※携帯電話のメールアドレスをご入力される方はこちらをご確認ください
    電話番号(必須)
    - -

    ※入力いただいた電話番号へSMSまたは音声でパスワードをご連絡します。

    携帯電話の番号をご入力の方へ

    携帯電話の番号をご入力の方へ
    確認画面にて送信ボタンをクリックするとSMSが携帯電話に届きます。
    そのSMSに記載のパスワード(認証番号)を入力し、お問い合わせを完了してください。
    尚、SMSの送信者番号は 0005 202 760 となります。
    これはアットホームの固定番号です。

    備考欄 希望条件、物件案内希望日、質問などがございましたらご記入ください。
    お問い合わせを行う前に「個人情報の取り扱いについて」を必ずお読みください。
    「個人情報の取り扱いについて」に同意いただいた場合は「上記にご同意の上 確認画面へ進む」のボタンをクリックしてください。

    個人情報の取り扱いについて

    皆さまが送付された個人情報はアットホーム(株)のサーバを経由し、お問い合わせ先の不動産会社にメールまたはFAXにて転送されるためアットホーム(株)にも保管されます。アットホーム(株)で保管された個人情報の取り扱いについては、【こちら】をご覧ください。
    また、本画面でご記入いただいた個人情報は、お問い合わせ先の不動産会社でも保管します。 お問い合わせ先の不動産会社が保管する個人情報の取り扱いについては、不動産会社に直接お問い合わせください。

    情報提供会社

    情報提供会社

    Re・Life不動産(株)

    兵庫県知事免許(1)第451716号

    交通:
    【バス】 名古山北口 停歩1分
    兵庫県姫路市東辻井1丁目11-27 望城ハイツ1階
    TEL:
    079-290-8720
    FAX:
    079-290-8721
    所属団体:
    (一社)兵庫県宅地建物取引業協会会員
    (公社)近畿地区不動産公正取引協議会加盟

    取引態様:専任媒介

    • 会社情報
    • 50108445
    スマートフォンで
    この不動産会社を見る
    QRコード
    • とりあえず保存
    • お問い合わせ
    • 提携サイト等より掲載されている物件情報につきましては、不動産会社詳細情報にリンクされていないものがあります。
    • 物件に関するお問合せは、物件詳細ページの「情報提供会社」に表示されている不動産会社へ直接お願いいたします。
    • 間取図は、現況を優先させていただきます。
    • 映像は物件の一部を撮影したものです。物件の契約にあたっての最終判断はご自身の判断に基づいて行ってください。
    • 仲介手数料について仲介手数料

    アットホームは物件情報の適正化に努めております。 内容に誤りがある場合にはこちらへご連絡ください。

    【埼玉住まい情報】では、日本全国の物件から賃貸マンションや賃貸アパート・賃貸一戸建て等の賃貸住宅情報、新築マンション・分譲マンションや中古マンション等の売買マンション情報、新築一戸建てや中古一戸建てなどの戸建住宅、 土地など、総合的な不動産住宅情報検索サービスを提供致します。
    【埼玉住まい情報】から、選りすぐりの不動産物件を探してみましょう。

    【免責事項】
    このコーナーの運営はアットホーム株式会社(https://www.athome.co.jp/)が行っています。
    このコーナーに掲載している物件情報は、「アットホーム不動産情報ネットワーク」に加盟する不動産会社等(情報提供元)から提供されています。信頼性の高い情報提供が行えるよう、最大限の努力をしておりますが、その内容を保証するものではありません。 利用者のみなさまと各情報提供元との取引に起因する損害および情報が掲載されたことに起因する損害等については、株式会社イーシティ埼玉、およびアットホームは一切責任を負いません。
    各物件情報の内容や画像等はすべて現況を優先させていただきます。
    お取引等(お取引の準備、資金調達等を含みます)の際には、内容や契約条件等について、各情報提供元より十分な説明を受け、ご自身でご確認の上、判断してください。
    このコーナーへの物件情報のご掲載、その他不動産業務ソリューション等についての不動産会社様のお問合せはこちらからお願いいたします。

    物件画像: