石川県金沢市高尾南2丁目(金沢駅)の一戸建て:物件詳細
交通 所在地 |
駅徒歩 |
価格 |
間取り 建物面積 |
土地面積 私道負担面積 |
物件種目 築年月 |
IRいしかわ鉄道/金沢 【バス】35分 高尾南2丁目 停歩2分
石川県金沢市高尾南2丁目
|
-
|
2,890万円
|
5LDK
140.85m²
|
147.01m²
-
|
中古一戸建て
2000年9月(築25年2ヶ月)
|
駐車場2台分、南向き、バス1坪以上、オール電化
|
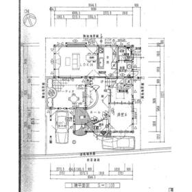
間取図
|
間取図
|
<
その他の画像
>
|
交通 | IRいしかわ鉄道 金沢駅 【バス】 35分 高尾南2丁目 停歩2分 |
所在地 |
石川県金沢市高尾南2丁目
|
物件種目 |
中古一戸建て |
価格 |
2,890万円 |
借地期間・地代(月額) |
- |
権利金 |
- |
敷金または保証金 |
- / - |
維持費等 |
- |
その他一時金 |
- |
間取り |
5LDK(和 6 洋 10・6・6・6 LDK 16) |
建物面積 |
140.85m² |
土地権利 |
所有権 |
建物構造 |
木造 |
土地面積 |
147.01m²(公簿) |
私道負担面積 |
- |
築年月 |
2000年9月(築25年2ヶ月)
|
都市計画 |
市街化区域 |
建物名 |
金沢市高尾南2丁目中古住宅 |
建築確認番号 |
第H11認建金建003353号 |
用途地域 |
準住居 |
駐車場 |
- |
建ぺい率 |
60% |
容積率 |
200% |
階建 |
2階建 |
接道状況 |
南西 6.0m 公道 接面11.0m
|
地目 |
宅地 |
地勢 |
- |
国土法届出 |
- |
セットバック |
- |
リフォーム履歴 |
■水回り:2022年8月 キッチン、浴室、トイレ、洗面所、給湯器 ■内装:2022年8月 壁・天井(クロス・塗装等) ※実施年月は最も古い履歴を表示 |
リノベーション履歴 |
- |
瑕疵保証 |
- |
瑕疵保険 |
- |
評価・証明書 |
- |
備考 |
主要採光面:南向き
|
エネルギー消費性能 |
- |
断熱性能 |
- |
目安光熱費 |
- |
バス・トイレ |
浴室乾燥機、追焚機能、シャワー付洗面化粧台、温水洗浄便座、トイレ2ヶ所、浴室に窓あり |
キッチン |
カウンターキッチン、システムキッチン、食器洗浄乾燥機、浄水器、IHクッキングヒーター、3口以上コンロ |
設備・サービス |
ウォークインクローゼット、クローゼット、モニター付インターホン、室内物干し、上水道、下水道、エアコン、庭、照明器具 |
その他 |
- |
現況 |
所有者居住中 |
引渡可能時期 |
相談 |
物件番号 |
6986733339 |
|
|
情報公開日 |
2025年6月20日 |
次回更新予定日 |
2025年10月23日 |
ケータイ用バーコード |
- スマートフォンでこの物件を見る
- スマートフォンからもこの物件をご覧になれます。
|
※「-」と表示されている項目については、情報提供会社にご確認ください。
周辺施設 |
ファミリーマート金沢高尾南店 |
距離 |
555m |
周辺施設 |
金沢市立高尾台中学校 |
距離 |
1146m |
写真を見る |
周辺施設 |
幼稚園型認定こども園妙源寺幼稚園 |
距離 |
447m |
ここから簡単にお問い合わせをすることができます。
(SSLでの暗号化での送信を希望されるお客さまは
こちら
よりお問い合わせください)
お問い合わせを行う前に
「個人情報の取り扱いについて」を必ずお読みください。
「個人情報の取り扱いについて」に同意いただいた場合は「上記にご同意の上 確認画面へ進む」のボタンをクリックしてください。
個人情報の取り扱いについて
皆さまが送付された個人情報はアットホーム(株)のサーバを経由し、お問い合わせ先の不動産会社にメールまたはFAXにて転送されるためアットホーム(株)にも保管されます。アットホーム(株)で保管された個人情報の取り扱いについては、【こちら】をご覧ください。
また、本画面でご記入いただいた個人情報は、お問い合わせ先の不動産会社でも保管します。 お問い合わせ先の不動産会社が保管する個人情報の取り扱いについては、不動産会社に直接お問い合わせください。
石川県知事免許(9)第2412号 |
---|
- 交通:
- 【バス】 円光寺 停歩1分
- 石川県金沢市山科3丁目1-2
- TEL:
- 076-241-8528
- FAX:
- 076-241-6841
- 所属団体:
- (公社)石川県宅地建物取引業協会会員北陸不動産公正取引協議会加盟
取引態様:一般媒介  - 40400905
|
- スマートフォンで
この不動産会社を見る

|
- 提携サイト等より掲載されている物件情報につきましては、不動産会社詳細情報にリンクされていないものがあります。
- 物件に関するお問合せは、物件詳細ページの「情報提供会社」に表示されている不動産会社へ直接お願いいたします。
- 間取図は、現況を優先させていただきます。
- 映像は物件の一部を撮影したものです。物件の契約にあたっての最終判断はご自身の判断に基づいて行ってください。
- 仲介手数料について

アットホームは物件情報の適正化に努めております。
内容に誤りがある場合にはこちらへご連絡ください。