静岡県浜松市浜名区三ヶ日町大崎(都筑駅)の一戸建て:物件詳細
交通 所在地 |
駅徒歩 |
価格 |
間取り 建物面積 |
土地面積 私道負担面積 |
物件種目 築年月 |
|
天竜浜名湖鉄道/都筑
静岡県浜松市浜名区三ヶ日町大崎
|
43分
|
1,480万円
|
2LDK
109.30m²
|
400.04m²
-
|
中古一戸建て
2001年6月(築24年7ヶ月)
|
|
駐車場3台分以上
|
|
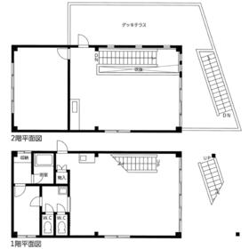
間取図
|
|
<
その他の画像
>
|
| 交通 | 天竜浜名湖鉄道 都筑駅 徒歩43分 |
| 所在地 |
静岡県浜松市浜名区三ヶ日町大崎
|
| 物件種目 |
中古一戸建て |
| 価格 |
1,480万円 |
借地期間・地代(月額) |
- |
| 権利金 |
- |
敷金または保証金 |
- / - |
| 維持費等 |
- |
その他一時金 |
- |
| 間取り |
2LDK |
建物面積 |
109.30m² |
| 土地権利 |
所有権 |
建物構造 |
鉄骨造 |
| 土地面積 |
400.04m²(公簿) |
私道負担面積 |
- |
| 築年月 |
2001年6月(築24年7ヶ月)
|
都市計画 |
調整区域 |
| 建物名 |
大崎の戸建て |
建築確認番号 |
- |
| 用途地域 |
無指定 |
駐車場 |
有 無料 |
| 建ぺい率 |
60% |
容積率 |
200% |
| 階建 |
2階建 |
接道状況 |
東 5.0m 接面9.0m
|
| 地目 |
宅地 |
地勢 |
平坦 |
| 国土法届出 |
- |
セットバック |
- |
| アピールポイント |
浴室・システムキッチン・給湯器・ウォシュレット新設!内装リフォーム済みです!宅地部分166㎡(50.21坪)、山林部分233.76㎡(70.71坪)、雑種地部分0.28㎡(0.08坪) |
| リフォーム履歴 |
■水回り:2024年11月 キッチン、浴室、トイレ、給湯器 ■内装:2024年11月 全室クロス張替え、床(フローリング等)、壁・天井(クロス・塗装等) ※実施年月は最も古い履歴を表示 |
| リノベーション履歴 |
2024年11月 浴室・システムキッチン・給湯器ウォシュレット新設!内装(床・壁・天井)貼替済み!事務所→居住用にリフォーム済みです。 ※実施年月は最も古い履歴を表示 |
| 瑕疵保証 |
- |
| 瑕疵保険 |
- |
| 評価・証明書 |
- |
| 備考 |
主要採光面:東向き
隣地との通行地役権あり。宅地部分166㎡ 山林部分233.76㎡ 雑種地部分0.28㎡
|
| エネルギー消費性能 |
- |
| 断熱性能 |
- |
| 目安光熱費 |
- |
| バス・トイレ |
オートバス、温水洗浄便座、トイレ2ヶ所 |
| キッチン |
システムキッチン |
| 設備・サービス |
浄化槽、プロパンガス |
| その他 |
- |
| 現況 |
空家 |
引渡可能時期 |
即時 |
| 物件番号 |
6986787934 |
仲介手数料 |
売買代金の3%+6万円 |
| 情報公開日 |
2025年6月25日 |
次回更新予定日 |
2025年12月9日 |
| ケータイ用バーコード |
- スマートフォンでこの物件を見る
- スマートフォンからもこの物件をご覧になれます。
|
※「-」と表示されている項目については、情報提供会社にご確認ください。
| 周辺施設 |
ファミリーマート三ヶ日インター店 |
| 距離 |
3310m |
| 周辺施設 |
浜松市立三ヶ日東小学校 |
| 距離 |
3422m |
| 周辺施設 |
東急リゾートタウン浜名湖サニーパーク |
| 距離 |
2408m |
| 周辺施設 |
浜松市三ヶ日B&G海洋センター |
| 距離 |
2168m |
ここから簡単にお問い合わせをすることができます。
(SSLでの暗号化での送信を希望されるお客さまは
こちら
よりお問い合わせください)
お問い合わせを行う前に
「個人情報の取り扱いについて」を必ずお読みください。
「個人情報の取り扱いについて」に同意いただいた場合は「上記にご同意の上 確認画面へ進む」のボタンをクリックしてください。
個人情報の取り扱いについて
皆さまが送付された個人情報はアットホーム(株)のサーバを経由し、お問い合わせ先の不動産会社にメールまたはFAXにて転送されるためアットホーム(株)にも保管されます。アットホーム(株)で保管された個人情報の取り扱いについては、【こちら】をご覧ください。
また、本画面でご記入いただいた個人情報は、お問い合わせ先の不動産会社でも保管します。 お問い合わせ先の不動産会社が保管する個人情報の取り扱いについては、不動産会社に直接お問い合わせください。
静岡県知事免許(3)第13650号 |
|---|
- 交通:
- 遠州鉄道/第一通り駅 徒歩7分
- 静岡県浜松市中央区連尺町314-38
- TEL:
- 053-457-3332
- FAX:
- 053-457-3334
- 所属団体:
- (公社)静岡県宅地建物取引業協会会員東海不動産公正取引協議会加盟
取引態様:一般媒介  - 40404307
|
- スマートフォンで
この不動産会社を見る

|
- 提携サイト等より掲載されている物件情報につきましては、不動産会社詳細情報にリンクされていないものがあります。
- 物件に関するお問合せは、物件詳細ページの「情報提供会社」に表示されている不動産会社へ直接お願いいたします。
- 間取図は、現況を優先させていただきます。
- 映像は物件の一部を撮影したものです。物件の契約にあたっての最終判断はご自身の判断に基づいて行ってください。
- 仲介手数料について

アットホームは物件情報の適正化に努めております。
内容に誤りがある場合にはこちらへご連絡ください。