不動産 賃貸 マンション等の住宅情報:埼玉住まい情報


鹿児島県志布志市志布志町安楽の一戸建て:物件詳細

  • 物件詳細
  • 情報の見方
  • 印刷用画面
交通
所在地
駅徒歩 価格 間取り
建物面積
土地面積
私道負担面積
物件種目
築年月

【バス】水源地前バス 停歩11分

鹿児島県志布志市志布志町安楽


1,737.8万円

3LDK

88.11m²

364.82m²

新築一戸建て

2025年12月
新築 

おすすめPOINT駐車場2台分、外壁サイディング、天井高2.5M以上、2面採光、24時間換気システム、バリアフリー、オール電化、隣接建物距離2m以上

おすすめコメント

☆浄水器・浴室暖房乾燥機・三面鏡・エコキュート・背面収納・カウンター付き手洗器・サンルーム付き

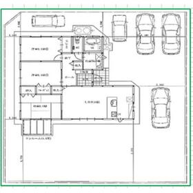
間取図

間取図

⑤号棟 建築中

<
その他の画像
  • その他
  • その他
  • 小学校
  • 中学校
  • 販売店
  • コンビニ
  • コンビニ
  • 郵便局
  • 販売店
  • 幼稚園、保育園
>
    • とりあえず保存
    • お問い合わせ
    交通

    【バス】 水源地前バス 停歩11分

    所在地 鹿児島県志布志市志布志町安楽
    物件種目 新築一戸建て
    価格 1,737.8万円 借地期間・地代(月額)
    権利金 敷金または保証金 - / -
    維持費等 その他一時金
    間取り 3LDK(和 6 洋 6・5.5) 建物面積 88.11m²
    土地権利 所有権 建物構造 木造
    土地面積 364.82m²(公簿) 私道負担面積
    築年月 2025年12月 新築  都市計画 非線引区域
    建物名   建築確認番号 第R05SHC127343号
    用途地域 無指定 駐車場
    建ぺい率 70% 容積率 400%
    階建 平屋建 接道状況
    地目 宅地 地勢
    国土法届出 セットバック
    リフォーム履歴
    リノベーション履歴
    瑕疵保証
    瑕疵保険
    評価・証明書
    備考
    号棟番号:⑤号棟
    建築確認完了検査済証あり
    ※合併浄化槽設置工事別途必要
    ・地盤調査済み
    エネルギー消費性能
    断熱性能
    目安光熱費
    バス・トイレ 浴室暖房、浴室乾燥機、オートバス、追焚機能、シャワー付洗面化粧台、温水洗浄便座、タンクレストイレ、浴室に窓あり
    キッチン カウンターキッチン、システムキッチン、食器洗浄乾燥機、食器乾燥機、浄水器、IHクッキングヒーター、3口以上コンロ、グリル
    設備・サービス 全居室収納、クローゼット、モニター付インターホン、ディンプルキー、ダブルロックドア、電動シャッター、シャッター雨戸、浄化槽、省エネ給湯器、出窓、上水道、電気、側溝、サンルーム、ダウンライト、照明器具、火災警報器(報知機)、BS端子、複層ガラス、Low-E ガラス
    その他
    現況 建築中 引渡可能時期 相談
    物件番号 6986803068    
    情報公開日 2025年10月9日 次回更新予定日 2025年11月6日
    ケータイ用バーコード

    QRコード

    スマートフォンでこの物件を見る
    スマートフォンからもこの物件をご覧になれます。
    ※「-」と表示されている項目については、情報提供会社にご確認ください。

    この物件の周辺情報

    周辺施設 志布志小学校
    距離 2960m
    周辺施設 志布志中学校
    距離 2450m
    周辺施設 コスモ石油安楽SS
    距離 123m
    周辺施設 ローソン志布志町大原店
    距離 572m
    周辺施設 ファミリーマート志布志みかえり店
    距離 686m
    周辺施設 弓場ヶ尾簡易郵便局
    距離 1101m
    周辺施設 ホームプラザナフコ志布志店
    距離 1232m
    周辺施設 幼保連携型認定こども園若草あゆみこども園
    距離 1245m

    クイックお問い合わせ

    ここから簡単にお問い合わせをすることができます。
    (SSLでの暗号化での送信を希望されるお客さまは こちら よりお問い合わせください)

    お問い合わせ内容(必須)
    お名前(必須) 姓  名 
    メールアドレス(必須)
    ※携帯電話のメールアドレスをご入力される方はこちらをご確認ください
    電話番号(必須)
    - -

    ※入力いただいた電話番号へSMSまたは音声でパスワードをご連絡します。

    携帯電話の番号をご入力の方へ

    携帯電話の番号をご入力の方へ
    確認画面にて送信ボタンをクリックするとSMSが携帯電話に届きます。
    そのSMSに記載のパスワード(認証番号)を入力し、お問い合わせを完了してください。
    尚、SMSの送信者番号は 0005 202 760 となります。
    これはアットホームの固定番号です。

    備考欄 希望条件、物件案内希望日、質問などがございましたらご記入ください。
    お問い合わせを行う前に「個人情報の取り扱いについて」を必ずお読みください。
    「個人情報の取り扱いについて」に同意いただいた場合は「上記にご同意の上 確認画面へ進む」のボタンをクリックしてください。

    個人情報の取り扱いについて

    皆さまが送付された個人情報はアットホーム(株)のサーバを経由し、お問い合わせ先の不動産会社にメールまたはFAXにて転送されるためアットホーム(株)にも保管されます。アットホーム(株)で保管された個人情報の取り扱いについては、【こちら】をご覧ください。
    また、本画面でご記入いただいた個人情報は、お問い合わせ先の不動産会社でも保管します。 お問い合わせ先の不動産会社が保管する個人情報の取り扱いについては、不動産会社に直接お問い合わせください。

    情報提供会社

    情報提供会社

    (有)一里山不動産

    鹿児島県知事免許(8)第4029号

    交通:
    【バス】 永尾入口 停歩9分
    鹿児島県鹿屋市旭原町3592-38 
    TEL:
    0994-44-2824
    FAX:
    0994-42-3443
    所属団体:
    (公社)鹿児島県宅地建物取引業協会会員
    (一社)九州不動産公正取引協議会加盟

    取引態様:売主

    • 会社情報
    • 80601880
    スマートフォンで
    この不動産会社を見る
    QRコード
    • とりあえず保存
    • お問い合わせ
    • 提携サイト等より掲載されている物件情報につきましては、不動産会社詳細情報にリンクされていないものがあります。
    • 物件に関するお問合せは、物件詳細ページの「情報提供会社」に表示されている不動産会社へ直接お願いいたします。
    • 間取図は、現況を優先させていただきます。
    • 映像は物件の一部を撮影したものです。物件の契約にあたっての最終判断はご自身の判断に基づいて行ってください。
    • 仲介手数料について仲介手数料

    アットホームは物件情報の適正化に努めております。 内容に誤りがある場合にはこちらへご連絡ください。

    【埼玉住まい情報】では、日本全国の物件から賃貸マンションや賃貸アパート・賃貸一戸建て等の賃貸住宅情報、新築マンション・分譲マンションや中古マンション等の売買マンション情報、新築一戸建てや中古一戸建てなどの戸建住宅、 土地など、総合的な不動産住宅情報検索サービスを提供致します。
    【埼玉住まい情報】から、選りすぐりの不動産物件を探してみましょう。

    【免責事項】
    このコーナーの運営はアットホーム株式会社(https://www.athome.co.jp/)が行っています。
    このコーナーに掲載している物件情報は、「アットホーム不動産情報ネットワーク」に加盟する不動産会社等(情報提供元)から提供されています。信頼性の高い情報提供が行えるよう、最大限の努力をしておりますが、その内容を保証するものではありません。 利用者のみなさまと各情報提供元との取引に起因する損害および情報が掲載されたことに起因する損害等については、株式会社イーシティ埼玉、およびアットホームは一切責任を負いません。
    各物件情報の内容や画像等はすべて現況を優先させていただきます。
    お取引等(お取引の準備、資金調達等を含みます)の際には、内容や契約条件等について、各情報提供元より十分な説明を受け、ご自身でご確認の上、判断してください。
    このコーナーへの物件情報のご掲載、その他不動産業務ソリューション等についての不動産会社様のお問合せはこちらからお願いいたします。

    物件画像: