不動産 賃貸 マンション等の住宅情報:埼玉住まい情報


熊本県合志市豊岡(黒石駅)の一戸建て:物件詳細

  • 物件詳細
  • 情報の見方
  • 印刷用画面
交通
所在地
駅徒歩 価格 間取り
建物面積
土地面積
私道負担面積
物件種目
築年月

熊本電気鉄道/黒石

熊本県合志市豊岡

26分

2,298万円

3LDK

95.88m²

226.35m²

中古一戸建て

1979年6月(築46年5ヶ月)

おすすめPOINT駐車場2台分、閑静な住宅街、区画整理地内、整形地、分譲地内

≪オープンハウス/モデルハウス≫【開催期間】2025年10月1日~10月31日 事前予約制となります。お気軽にお問合せ下さい。

おすすめコメント

【事前予約制見学会開催中】外装・内装リフォーム済みの物件、天気の心配いらないサンルーム、収納に嬉しいウォークインクローゼット、駐車スペース1台分は屋根があります。

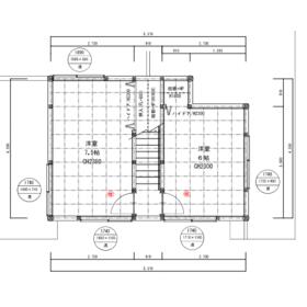
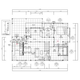
間取図

間取図

1階

間取図

間取図

2階

<
その他の画像
  • 外観
  • 玄関
  • リビング
  • キッチン
  • リビング
  • キッチン
  • 室内
  • 収納
  • 室内
  • 室内
  • 室内
  • バス/シャワー
  • 洗面
  • トイレ
  • 外観
  • 駐車場
  • 外観
>
    • とりあえず保存
    • お問い合わせ
    交通

    熊本電気鉄道 黒石駅 徒歩26分

    その他の交通

    熊本電気鉄道 熊本高専前駅 徒歩28分

    所在地 熊本県合志市豊岡
    物件種目 中古一戸建て
    価格 2,298万円 借地期間・地代(月額)
    権利金 敷金または保証金 - / -
    維持費等 その他一時金
    間取り 3LDK 建物面積 95.88m²
    土地権利 所有権 建物構造 木造
    土地面積 226.35m²(公簿) 私道負担面積
    築年月 1979年6月(築46年5ヶ月) 都市計画 市街化区域
    建物名   建築確認番号
    用途地域 1種低層 駐車場 有 無料
    建ぺい率 40% 容積率 80%
    階建 2階建 接道状況 北 5.5m 公道 接面13.3m
    地目 宅地 地勢 平坦
    国土法届出 セットバック
    リフォーム履歴 ■水回り:2024年6月
    キッチン、浴室
    ■内装:2024年6月
    床(フローリング等)、壁・天井(クロス・塗装等)
    ■外装:2024年6月
    外壁、屋根
    ■その他:2024年6月
    内装(キッチン 浴室 トイレ 壁床)外装(外壁 屋根)
    ※実施年月は最も古い履歴を表示
    リノベーション履歴
    瑕疵保証
    瑕疵保険
    評価・証明書
    備考
    エネルギー消費性能
    断熱性能
    目安光熱費
    バス・トイレ オートバス、追焚機能、シャワー付洗面化粧台、温水洗浄便座、浴室に窓あり
    キッチン カウンターキッチン、システムキッチン、3口以上コンロ
    設備・サービス ウォークインクローゼット、クローゼット、モニター付インターホン、室内物干し、上水道、下水道、プロパンガス、電気、側溝、庭、サンルーム
    その他
    現況 空家 引渡可能時期 相談
    物件番号 6986830677    
    情報公開日 2025年7月2日 次回更新予定日 2025年10月29日
    ケータイ用バーコード

    QRコード

    スマートフォンでこの物件を見る
    スマートフォンからもこの物件をご覧になれます。
    ※「-」と表示されている項目については、情報提供会社にご確認ください。

    この物件の周辺情報

    周辺施設 マックスバリュみずき台店
    距離 1163m
    周辺施設 ファミリーマート合志黒石原店
    距離 559m
    周辺施設 セブンイレブン合志黒石原店
    距離 840m
    周辺施設 すずかけ台保育園
    距離 439m
    周辺施設 ひかりの丘保育園
    距離 832m
    周辺施設 認定こども園美鈴幼稚園
    距離 1155m

    クイックお問い合わせ

    ここから簡単にお問い合わせをすることができます。
    (SSLでの暗号化での送信を希望されるお客さまは こちら よりお問い合わせください)

    お問い合わせ内容(必須)
    お名前(必須) 姓  名 
    メールアドレス(必須)
    ※携帯電話のメールアドレスをご入力される方はこちらをご確認ください
    電話番号(必須)
    - -

    ※入力いただいた電話番号へSMSまたは音声でパスワードをご連絡します。

    携帯電話の番号をご入力の方へ

    携帯電話の番号をご入力の方へ
    確認画面にて送信ボタンをクリックするとSMSが携帯電話に届きます。
    そのSMSに記載のパスワード(認証番号)を入力し、お問い合わせを完了してください。
    尚、SMSの送信者番号は 0005 202 760 となります。
    これはアットホームの固定番号です。

    備考欄 希望条件、物件案内希望日、質問などがございましたらご記入ください。
    お問い合わせを行う前に「個人情報の取り扱いについて」を必ずお読みください。
    「個人情報の取り扱いについて」に同意いただいた場合は「上記にご同意の上 確認画面へ進む」のボタンをクリックしてください。

    個人情報の取り扱いについて

    皆さまが送付された個人情報はアットホーム(株)のサーバを経由し、お問い合わせ先の不動産会社にメールまたはFAXにて転送されるためアットホーム(株)にも保管されます。アットホーム(株)で保管された個人情報の取り扱いについては、【こちら】をご覧ください。
    また、本画面でご記入いただいた個人情報は、お問い合わせ先の不動産会社でも保管します。 お問い合わせ先の不動産会社が保管する個人情報の取り扱いについては、不動産会社に直接お問い合わせください。

    情報提供会社

    情報提供会社

    ヨシタカ不動産

    熊本県知事免許(1)第5519号

    交通:
    JR鹿児島本線/荒尾駅
    熊本県荒尾市西原町1丁目6-2 
    TEL:
    0968-57-7933
    FAX:
    0968-57-7934
    所属団体:
    (公社)熊本県宅地建物取引業協会会員
    (一社)九州不動産公正取引協議会加盟

    取引態様:媒介

    • 会社情報
    • 80505646
    スマートフォンで
    この不動産会社を見る
    QRコード
    • とりあえず保存
    • お問い合わせ
    • 提携サイト等より掲載されている物件情報につきましては、不動産会社詳細情報にリンクされていないものがあります。
    • 物件に関するお問合せは、物件詳細ページの「情報提供会社」に表示されている不動産会社へ直接お願いいたします。
    • 間取図は、現況を優先させていただきます。
    • 映像は物件の一部を撮影したものです。物件の契約にあたっての最終判断はご自身の判断に基づいて行ってください。
    • 仲介手数料について仲介手数料

    アットホームは物件情報の適正化に努めております。 内容に誤りがある場合にはこちらへご連絡ください。

    【埼玉住まい情報】では、日本全国の物件から賃貸マンションや賃貸アパート・賃貸一戸建て等の賃貸住宅情報、新築マンション・分譲マンションや中古マンション等の売買マンション情報、新築一戸建てや中古一戸建てなどの戸建住宅、 土地など、総合的な不動産住宅情報検索サービスを提供致します。
    【埼玉住まい情報】から、選りすぐりの不動産物件を探してみましょう。

    【免責事項】
    このコーナーの運営はアットホーム株式会社(https://www.athome.co.jp/)が行っています。
    このコーナーに掲載している物件情報は、「アットホーム不動産情報ネットワーク」に加盟する不動産会社等(情報提供元)から提供されています。信頼性の高い情報提供が行えるよう、最大限の努力をしておりますが、その内容を保証するものではありません。 利用者のみなさまと各情報提供元との取引に起因する損害および情報が掲載されたことに起因する損害等については、株式会社イーシティ埼玉、およびアットホームは一切責任を負いません。
    各物件情報の内容や画像等はすべて現況を優先させていただきます。
    お取引等(お取引の準備、資金調達等を含みます)の際には、内容や契約条件等について、各情報提供元より十分な説明を受け、ご自身でご確認の上、判断してください。
    このコーナーへの物件情報のご掲載、その他不動産業務ソリューション等についての不動産会社様のお問合せはこちらからお願いいたします。

    物件画像: