埼玉県朝霞市根岸台2丁目(朝霞駅)の一戸建て:物件詳細
交通 所在地 |
駅徒歩 |
価格 |
間取り 建物面積 |
土地面積 私道負担面積 |
物件種目 築年月 |
|
東武東上線/朝霞
埼玉県朝霞市根岸台2丁目
|
14分
|
4,380万円
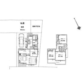
|
4LDK
95.23m²
|
100.10m²
有 161.17m²(共有持分1/10)
|
中古一戸建て
2013年10月(築12年1ヶ月)
|
|
南向き、2面採光
|
|
間取図
|
外観
|
<
その他の画像
>
|
| 交通 | 東武東上線 朝霞駅 徒歩14分 |
| 所在地 |
埼玉県朝霞市根岸台2丁目
|
| 物件種目 |
中古一戸建て |
| 価格 |
4,380万円 |
借地期間・地代(月額) |
- |
| 権利金 |
- |
敷金または保証金 |
- / - |
| 維持費等 |
- |
その他一時金 |
- |
| 間取り |
4LDK(和 4.5 洋 7.1・5.5・5.3 LDK 16.6) |
建物面積 |
95.23m² |
| 土地権利 |
所有権 |
建物構造 |
木造 |
| 土地面積 |
100.10m²(公簿) |
私道負担面積 |
有 161.17m²(共有持分1/10) |
| 築年月 |
2013年10月(築12年1ヶ月)
|
都市計画 |
市街化区域 |
| 建物名 |
根岸台2丁目中古戸建 |
建築確認番号 |
- |
| 用途地域 |
1種中高 |
駐車場 |
- |
| 建ぺい率 |
60% |
容積率 |
200% |
| 階建 |
2階建 |
接道状況 |
北東 4.5m 私道
|
| 地目 |
宅地 |
地勢 |
- |
| 国土法届出 |
- |
セットバック |
- |
| アピールポイント |
副都心線・有楽町線もご利用いただけますので便利にお住まいいただけます。開発分譲住宅地一番奥の物件ですが、隣地は畑の為開放感があり、日当たり良好です!!手頃な大きさと使いやすい間取りの物件です!現況渡しですが別途リフォームのご相談も承っております。只今、キッチンリフォームオプションサービス中です!しつこい営業活動はしておりませんので、詳細資料などお気軽にお問い合わせください。 |
| リフォーム履歴 |
- |
| リノベーション履歴 |
- |
| 瑕疵保証 |
- |
| 瑕疵保険 |
- |
| 評価・証明書 |
- |
| 備考 |
主要採光面:南向き
只今見学はご予約にて承っております!
見学ご希望のお客様は電話・メールにてご予約下さい。
ご希望のお時間・お日にちにご案内いたします。
■ご見学の際は感染対策をさせていただいた上で安全に見学していただけるよう努めて参ります。
■見学は他のお客様と内覧が重ならないように時間を調整させていただく場合がありますのでご了承ください。
■事前に内覧ご予約いただければご指定の場所に車でお迎えに行くことも可能です。ご見学頂いたのちご興味を持っていただけましたら住宅ローンのご相談や資金計画のシュミレーションなども承っております!
■住宅ローンは月々どのくらいになるのか・頭金は必要か・手数料・諸経費のことなど気になることはなんでもご相談ください♪
|
| エネルギー消費性能 |
- |
| 断熱性能 |
- |
| 目安光熱費 |
- |
| バス・トイレ |
オートバス、追焚機能、温水洗浄便座、トイレ2ヶ所、浴室に窓あり |
| キッチン |
カウンターキッチン、システムキッチン、3口以上コンロ、グリル |
| 設備・サービス |
全居室収納、クローゼット、モニター付インターホン、シャッター雨戸、上水道、下水道、都市ガス、電気、火災警報器(報知機) |
| その他 |
- |
| 現況 |
空家 |
引渡可能時期 |
即時 |
| 物件番号 |
6986914316 |
|
|
| 情報公開日 |
2025年7月5日 |
次回更新予定日 |
2025年11月5日 |
| ケータイ用バーコード |
- スマートフォンでこの物件を見る
- スマートフォンからもこの物件をご覧になれます。
|
※「-」と表示されている項目については、情報提供会社にご確認ください。
| 周辺施設 |
コモディイイダ朝霞仲町店 |
| 距離 |
768m |
写真を見る |
| 周辺施設 |
イトーヨーカドー朝霞店 |
| 距離 |
1033m |
写真を見る |
| 周辺施設 |
ローソン朝霞根岸台二丁目店 |
| 距離 |
157m |
写真を見る |
| 周辺施設 |
セブンイレブン朝霞岡3丁目店 |
| 距離 |
298m |
写真を見る |
| 周辺施設 |
朝霞市立朝霞第二小学校 |
| 距離 |
552m |
写真を見る |
ここから簡単にお問い合わせをすることができます。
(SSLでの暗号化での送信を希望されるお客さまは
こちら
よりお問い合わせください)
お問い合わせを行う前に
「個人情報の取り扱いについて」を必ずお読みください。
「個人情報の取り扱いについて」に同意いただいた場合は「上記にご同意の上 確認画面へ進む」のボタンをクリックしてください。
個人情報の取り扱いについて
皆さまが送付された個人情報はアットホーム(株)のサーバを経由し、お問い合わせ先の不動産会社にメールまたはFAXにて転送されるためアットホーム(株)にも保管されます。アットホーム(株)で保管された個人情報の取り扱いについては、【こちら】をご覧ください。
また、本画面でご記入いただいた個人情報は、お問い合わせ先の不動産会社でも保管します。 お問い合わせ先の不動産会社が保管する個人情報の取り扱いについては、不動産会社に直接お問い合わせください。
東京都知事免許(3)第97142号 |
|---|
- 交通:
- 西武池袋線/江古田駅 徒歩4分
- 東京都練馬区栄町26-6
- TEL:
- 03-5946-9380
- FAX:
- 03-5946-9381
- 所属団体:
- (公社)全日本不動産協会会員(公社)首都圏不動産公正取引協議会加盟
取引態様:専任媒介  - 00161782
|
- スマートフォンで
この不動産会社を見る

|
- 提携サイト等より掲載されている物件情報につきましては、不動産会社詳細情報にリンクされていないものがあります。
- 物件に関するお問合せは、物件詳細ページの「情報提供会社」に表示されている不動産会社へ直接お願いいたします。
- 間取図は、現況を優先させていただきます。
- 映像は物件の一部を撮影したものです。物件の契約にあたっての最終判断はご自身の判断に基づいて行ってください。
- 仲介手数料について

アットホームは物件情報の適正化に努めております。
内容に誤りがある場合にはこちらへご連絡ください。