岩手県花巻市四日町1丁目(花巻駅)の一戸建て:物件詳細
交通 所在地 |
駅徒歩 |
価格 |
間取り 建物面積 |
土地面積 私道負担面積 |
物件種目 築年月 |
|
JR東北本線/花巻
岩手県花巻市四日町1丁目
|
12分
|
240万円
|
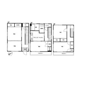
5DK
98.39m²
|
63.37m²
-
|
中古一戸建て
1979年8月(築46年10ヶ月)
|
|
間取図
|
外観
|
<
その他の画像
>
|
| 交通 | JR東北本線 花巻駅 徒歩12分 |
| 所在地 |
岩手県花巻市四日町1丁目
|
| 物件種目 |
中古一戸建て |
| 価格 |
240万円 |
借地期間・地代(月額) |
- |
| 権利金 |
- |
敷金または保証金 |
- / - |
| 維持費等 |
- |
その他一時金 |
- |
| 間取り |
5DK |
建物面積 |
98.39m² |
| 土地権利 |
所有権 |
建物構造 |
鉄骨造 |
| 土地面積 |
63.37m²(公簿) |
私道負担面積 |
- |
| 築年月 |
1979年8月(築46年10ヶ月)
|
都市計画 |
非線引区域 |
| 建物名 |
花巻市四日町 中古戸建 |
建築確認番号 |
- |
| 用途地域 |
1種住居 |
駐車場 |
有 |
| 建ぺい率 |
60% |
容積率 |
200% |
| 階建 |
3階建 |
接道状況 |
南東 7.1m 公道 接面6.7m
|
| 地目 |
宅地 |
地勢 |
- |
| 国土法届出 |
- |
セットバック |
- |
| アピールポイント |
2009年玄関ドア・外観リフォーム済み。
花巻駅徒歩12分の通勤、通学に便利なエリア。
お問合せいただければ、現地を360°カメラで撮影したVR映像をご覧になれます。
まずは、お気軽にお問合せください。
当該物件以外にもお問合せいただければ、弊社物件一覧をご覧いただけます。
こちらも合わせてお気軽にお問合せください。 |
| リフォーム履歴 |
■外装:2009年12月 外壁 玄関、外壁塗装 ※実施年月は最も古い履歴を表示 |
| リノベーション履歴 |
- |
| 瑕疵保証 |
- |
| 瑕疵保険 |
- |
| 評価・証明書 |
- |
| 備考 |
-
|
| エネルギー消費性能 |
- |
| 断熱性能 |
- |
| 目安光熱費 |
- |
| バス・トイレ |
- |
| キッチン |
- |
| 設備・サービス |
上水道、下水道、都市ガス、電気 |
| その他 |
- |
| 現況 |
空家 |
引渡可能時期 |
相談 |
| 物件番号 |
6986916449 |
仲介手数料 |
33万円 |
| 情報公開日 |
2025年8月20日 |
次回更新予定日 |
2026年5月14日 |
| ケータイ用バーコード |
- スマートフォンでこの物件を見る
- スマートフォンからもこの物件をご覧になれます。
|
※「-」と表示されている項目については、情報提供会社にご確認ください。
| 周辺施設 |
市立桜台小学校 |
| 距離 |
700m |
写真を見る |
| 周辺施設 |
市立花巻中学校 |
| 距離 |
2100m |
写真を見る |
| 周辺施設 |
イトーヨーカドー花巻店 |
| 距離 |
290m |
写真を見る |
| 周辺施設 |
花巻市愛宕公園 |
| 距離 |
300m |
写真を見る |
| 周辺施設 |
花巻四日町郵便局 |
| 距離 |
59m |
写真を見る |
ここから簡単にお問い合わせをすることができます。
(SSLでの暗号化での送信を希望されるお客さまは
こちら
よりお問い合わせください)
お問い合わせを行う前に
「個人情報の取り扱いについて」を必ずお読みください。
「個人情報の取り扱いについて」に同意いただいた場合は「上記にご同意の上 確認画面へ進む」のボタンをクリックしてください。
個人情報の取り扱いについて
皆さまが送付された個人情報はアットホーム(株)のサーバを経由し、お問い合わせ先の不動産会社にメールまたはFAXにて転送されるためアットホーム(株)にも保管されます。アットホーム(株)で保管された個人情報の取り扱いについては、【こちら】をご覧ください。
また、本画面でご記入いただいた個人情報は、お問い合わせ先の不動産会社でも保管します。 お問い合わせ先の不動産会社が保管する個人情報の取り扱いについては、不動産会社に直接お問い合わせください。
東京都知事免許(1)第108065号 |
|---|
- 交通:
- 都営大江戸線/新宿西口駅 徒歩4分
- 東京都新宿区西新宿7丁目4-7 イマス浜田ビル3F-B
- TEL:
- 03-6555-3590
- FAX:
- 03-6555-3598
- 所属団体:
- (公社)全日本不動産協会会員(公社)首都圏不動産公正取引協議会加盟
取引態様:媒介  - 00276371
|
- スマートフォンで
この不動産会社を見る

|
- 提携サイト等より掲載されている物件情報につきましては、不動産会社詳細情報にリンクされていないものがあります。
- 物件に関するお問合せは、物件詳細ページの「情報提供会社」に表示されている不動産会社へ直接お願いいたします。
- 間取図は、現況を優先させていただきます。
- 映像は物件の一部を撮影したものです。物件の契約にあたっての最終判断はご自身の判断に基づいて行ってください。
- 仲介手数料について

アットホームは物件情報の適正化に努めております。
内容に誤りがある場合にはこちらへご連絡ください。