不動産 賃貸 マンション等の住宅情報:埼玉住まい情報


山形県西村山郡西川町大字海味の一戸建て:物件詳細

  • 物件詳細
  • 情報の見方
  • 印刷用画面
交通
所在地
駅徒歩 価格 間取り
建物面積
土地面積
私道負担面積
物件種目
築年月

【バス】旧東部保育園バス停 停歩3分

山形県西村山郡西川町大字海味


450万円

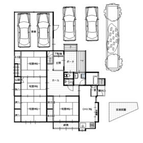
7SDK

220.83m²

257.81m²

中古一戸建て

1989年10月(築36年8ヶ月)

おすすめPOINT駐車場3台分以上、南向き、閑静な住宅街、隣接建物距離2m以上

おすすめコメント

★大幅に価格見直しました★山形市内まで車で約40分 寒河江川のほとりにある景観の良い町 中学校まで徒歩約5分 西川町の主要エリア 利便性に優れた立地

間取図

間取図

間取図

間取図

<
その他の画像
  • 外観
  • 玄関
  • 眺望
  • 室内
  • 室内
  • 室内
  • 眺望
  • 室内
  • 室内
  • 室内
  • 洗面
  • トイレ
  • 室内
  • バルコニー
  • 室内
  • 室内
  • バス/シャワー
  • 設備
  • 洗面
  • 洗面
  • トイレ
  • キッチン
  • 駐車場
  • 外観
  • 外観
>
    • とりあえず保存
    • お問い合わせ
    交通

    【バス】 旧東部保育園バス停 停歩3分

    その他の交通

    JR左沢線 羽前高松駅 徒歩8700m

    所在地 山形県西村山郡西川町大字海味
    物件種目 中古一戸建て
    価格 450万円 借地期間・地代(月額)
    権利金 敷金または保証金 - / -
    維持費等 その他一時金
    間取り 7SDK 建物面積 220.83m²
    土地権利 所有権 建物構造 木造
    土地面積 257.81m²(公簿) 私道負担面積
    築年月 1989年10月(築36年8ヶ月) 都市計画 市街化区域
    建物名 西川町 ガレージのある高基礎の家 建築確認番号
    用途地域 近隣商業 駐車場 有 無料
    建ぺい率 80% 容積率 200%
    階建 2階建 接道状況 北 6.0m 公道 接面12.0m
    地目 宅地 地勢
    国土法届出 セットバック
    アピールポイント ◆西川町の中心エリア・下水道完備◆
    ・西川町でも月山エリアよりは雪少なめです
     役場からの除雪の補助や援助制度があります※一部条件有り
    ・車庫有り・雪下ろし不要
    ・収納が充実しています
    ・高基礎なので、窓の外の見晴らしが良く、山形らしい景色が望めます
     ◎特に縁側からの眺望が良好です◎
    ・駐車場は4台駐車可
    ・前面道路は幅員も約5mと充分な広さです
    ・町営温泉海味温泉まで車で3分!250円で入浴できます
    ・中山町から西川町まで、ほぼ信号のない道ですので、ストレスの無い通勤路です
    ・お住替えの為の資産売却です
    ・現在居住中ですので、そのまま住める状態です
    ・大きな故障はなく、お手入れも行き届いております
    ・残置物は売主様で撤去致します


    【お願い】
    ※お問合せのお電話に出られない場合が多い為、お問合せフォームまたは、e-mailよりお問合せお待ちしております
    ※大変申し訳ございませんが、ご内見は即日のご対応は出来ない場合があります。ご予約優先にてお待ちしております
    ※水・日曜・祝日は定休日の為、ご案内は要相談でお願いします。
    ご不便お掛け致しますが、何卒、宜しくお願い申し上げます。
    リフォーム履歴
    リノベーション履歴
    瑕疵保証
    瑕疵保険
    評価・証明書
    備考
    バルコニー:3.31m²
    主要採光面:南向き
    現況渡し、契約不適合責任免責、境界明示義務免責

    価格更新
    2025.8.19~2026.3.25 660万
    2026.4.11~ 450万
    エネルギー消費性能
    断熱性能
    目安光熱費
    バス・トイレ オートバス、追焚機能、シャワー付洗面化粧台、温水洗浄便座
    キッチン 独立型キッチン、2口コンロ
    設備・サービス ウォークインクローゼット、出窓、上水道、下水道、電気、エアコン、庭、ルーフバルコニー、照明器具
    その他
    現況 所有者居住中 引渡可能時期 指定有り2026年6月1日
    物件番号 6986923710 仲介手数料 33万円
    情報公開日 2026年4月11日 次回更新予定日 2026年5月21日
    ケータイ用バーコード

    QRコード

    スマートフォンでこの物件を見る
    スマートフォンからもこの物件をご覧になれます。
    ※「-」と表示されている項目については、情報提供会社にご確認ください。

    この物件の周辺情報

    周辺施設 セブンイレブン西川町睦合店
    距離 533m
    周辺施設 コメリハード&グリーン西川店
    距離 1082m
    周辺施設 薬王堂山形西川店
    距離 1369m
    周辺施設 西川町立西川中学校
    距離 336m
    周辺施設 西川町立西川小学校
    距離 1742m
    周辺施設 西川町立病院
    距離 1534m
    周辺施設 西川郵便局
    距離 1011m
    周辺施設 西川町役場
    距離 1375m

    クイックお問い合わせ

    ここから簡単にお問い合わせをすることができます。
    (SSLでの暗号化での送信を希望されるお客さまは こちら よりお問い合わせください)

    お問い合わせ内容(必須)
    お名前(必須) 姓  名 
    メールアドレス(必須)
    ※携帯電話のメールアドレスをご入力される方はこちらをご確認ください
    電話番号(必須)
    - -

    ※入力いただいた電話番号へSMSまたは音声でパスワードをご連絡します。

    携帯電話の番号をご入力の方へ

    携帯電話の番号をご入力の方へ
    確認画面にて送信ボタンをクリックするとSMSが携帯電話に届きます。
    そのSMSに記載のパスワード(認証番号)を入力し、お問い合わせを完了してください。
    尚、SMSの送信者番号は 0005 202 760 となります。
    これはアットホームの固定番号です。

    備考欄 希望条件、物件案内希望日、質問などがございましたらご記入ください。
    お問い合わせを行う前に「個人情報の取り扱いについて」を必ずお読みください。
    「個人情報の取り扱いについて」に同意いただいた場合は「上記にご同意の上 確認画面へ進む」のボタンをクリックしてください。

    個人情報の取り扱いについて

    皆さまが送付された個人情報はアットホーム(株)のサーバを経由し、お問い合わせ先の不動産会社にメールまたはFAXにて転送されるためアットホーム(株)にも保管されます。アットホーム(株)で保管された個人情報の取り扱いについては、【こちら】をご覧ください。
    また、本画面でご記入いただいた個人情報は、お問い合わせ先の不動産会社でも保管します。 お問い合わせ先の不動産会社が保管する個人情報の取り扱いについては、不動産会社に直接お問い合わせください。

    情報提供会社

    情報提供会社

    RoomruBe

    山形県知事免許(2)第2675号

    交通:
    【バス】 明神神社前 停歩6分
    山形県山形市印役町4丁目6-15 
    TEL:
    070-8517-0676
    所属団体:
    (公社)全日本不動産協会会員
    (公社)首都圏不動産公正取引協議会加盟

    取引態様:媒介

    • 会社情報
    • 20006189
    スマートフォンで
    この不動産会社を見る
    QRコード
    • とりあえず保存
    • お問い合わせ
    • 提携サイト等より掲載されている物件情報につきましては、不動産会社詳細情報にリンクされていないものがあります。
    • 物件に関するお問合せは、物件詳細ページの「情報提供会社」に表示されている不動産会社へ直接お願いいたします。
    • 間取図は、現況を優先させていただきます。
    • 映像は物件の一部を撮影したものです。物件の契約にあたっての最終判断はご自身の判断に基づいて行ってください。
    • 仲介手数料について仲介手数料

    アットホームは物件情報の適正化に努めております。 内容に誤りがある場合にはこちらへご連絡ください。

    【埼玉住まい情報】では、日本全国の物件から賃貸マンションや賃貸アパート・賃貸一戸建て等の賃貸住宅情報、新築マンション・分譲マンションや中古マンション等の売買マンション情報、新築一戸建てや中古一戸建てなどの戸建住宅、 土地など、総合的な不動産住宅情報検索サービスを提供致します。
    【埼玉住まい情報】から、選りすぐりの不動産物件を探してみましょう。

    【免責事項】
    このコーナーの運営はアットホーム株式会社(https://www.athome.co.jp/)が行っています。
    このコーナーに掲載している物件情報は、「アットホーム不動産情報ネットワーク」に加盟する不動産会社等(情報提供元)から提供されています。信頼性の高い情報提供が行えるよう、最大限の努力をしておりますが、その内容を保証するものではありません。 利用者のみなさまと各情報提供元との取引に起因する損害および情報が掲載されたことに起因する損害等については、株式会社イーシティ埼玉、およびアットホームは一切責任を負いません。
    各物件情報の内容や画像等はすべて現況を優先させていただきます。
    お取引等(お取引の準備、資金調達等を含みます)の際には、内容や契約条件等について、各情報提供元より十分な説明を受け、ご自身でご確認の上、判断してください。
    このコーナーへの物件情報のご掲載、その他不動産業務ソリューション等についての不動産会社様のお問合せはこちらからお願いいたします。

    物件画像: