鹿児島県鹿児島市東坂元2丁目(仙巌園駅)の一戸建て:物件詳細
交通 所在地 |
駅徒歩 |
価格 |
間取り 建物面積 |
土地面積 私道負担面積 |
物件種目 築年月 |
|
JR日豊本線/仙巌園
鹿児島県鹿児島市東坂元2丁目
|
46分
|
520万円
|
3SLDK
85.50m²
|
153.10m²
-
|
中古一戸建て
1987年11月(築38年7ヶ月)
|
|
庭10坪以上
|
|
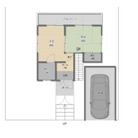
間取図
2階が道路からの入口となります
|
外観
|
<
その他の画像
>
|
| 交通 | JR日豊本線 仙巌園駅 徒歩46分 |
|---|
| その他の交通 | 【バス】 辻ヶ丘団地バス停 停歩4分 |
| 所在地 |
鹿児島県鹿児島市東坂元2丁目
|
| 物件種目 |
中古一戸建て |
| 価格 |
520万円 |
借地期間・地代(月額) |
- |
| 権利金 |
- |
敷金または保証金 |
- / - |
| 維持費等 |
- |
その他一時金 |
- |
| 間取り |
3SLDK(和 6・6 洋 6 LDK 13.5 S 2・6) |
建物面積 |
85.50m² |
| 土地権利 |
所有権 |
建物構造 |
木造 |
| 土地面積 |
153.10m²(実測) |
私道負担面積 |
- |
| 築年月 |
1987年11月(築38年7ヶ月)
|
都市計画 |
市街化区域 |
| 建物名 |
|
建築確認番号 |
- |
| 用途地域 |
1種低層 |
駐車場 |
有 無料 |
| 建ぺい率 |
50% |
容積率 |
80% |
| 階建 |
2階建 |
接道状況 |
北東 4.0m 私道 位置指定有
|
| 地目 |
宅地 |
地勢 |
高台 |
| 国土法届出 |
- |
セットバック |
- |
| アピールポイント |
高台に位置してる為、日当たり眺望良好です!
車庫の下部は収納スペースになっています。
坂元台小学校まで徒歩約10分で約720m!
坂元中まで徒歩約19分で約1.5kmです。
タイヨー辻ヶ丘店まで徒歩約6分、約500mです。
建物の2階が道路からの入口となっています。
2010年に外壁と屋根を塗装してます |
| リフォーム履歴 |
■外装:2010年1月 外壁、屋根 ※実施年月は最も古い履歴を表示 |
| リノベーション履歴 |
- |
| 瑕疵保証 |
- |
| 瑕疵保険 |
- |
| 評価・証明書 |
- |
| 備考 |
-
|
| エネルギー消費性能 |
- |
| 断熱性能 |
- |
| 目安光熱費 |
- |
| バス・トイレ |
浴室に窓あり |
| キッチン |
- |
| 設備・サービス |
全居室収納、上水道、電気 |
| その他 |
- |
| 現況 |
空家 |
引渡可能時期 |
即時 |
| 物件番号 |
6986934875 |
仲介手数料 |
33万円 |
| 情報公開日 |
2025年7月7日 |
次回更新予定日 |
2026年5月15日 |
| ケータイ用バーコード |
- スマートフォンでこの物件を見る
- スマートフォンからもこの物件をご覧になれます。
|
※「-」と表示されている項目については、情報提供会社にご確認ください。
| 周辺施設 |
鹿児島市立坂元台小学校 |
| 距離 |
1011m |
| 周辺施設 |
認定こども園辻ヶ丘幼稚園 |
| 距離 |
341m |
| 周辺施設 |
認定こども園辻ケ丘幼稚園 |
| 距離 |
350m |
ここから簡単にお問い合わせをすることができます。
(SSLでの暗号化での送信を希望されるお客さまは
こちら
よりお問い合わせください)
お問い合わせを行う前に
「個人情報の取り扱いについて」を必ずお読みください。
「個人情報の取り扱いについて」に同意いただいた場合は「上記にご同意の上 確認画面へ進む」のボタンをクリックしてください。
個人情報の取り扱いについて
皆さまが送付された個人情報はアットホーム(株)のサーバを経由し、お問い合わせ先の不動産会社にメールまたはFAXにて転送されるためアットホーム(株)にも保管されます。アットホーム(株)で保管された個人情報の取り扱いについては、【こちら】をご覧ください。
また、本画面でご記入いただいた個人情報は、お問い合わせ先の不動産会社でも保管します。 お問い合わせ先の不動産会社が保管する個人情報の取り扱いについては、不動産会社に直接お問い合わせください。
鹿児島県知事免許(10)第3203号 |
|---|
- 交通:
- 鹿児島市電谷山線/騎射場駅 徒歩5分 【バス】 県体育館前バス停 停歩3分
- 鹿児島県鹿児島市下荒田3丁目33-8
- TEL:
- 099-251-8822
- FAX:
- 099-253-4880
- 所属団体:
- (公社)鹿児島県宅地建物取引業協会会員(一社)九州不動産公正取引協議会加盟
取引態様:一般媒介  - 80600362
|
- スマートフォンで
この不動産会社を見る

|
- 提携サイト等より掲載されている物件情報につきましては、不動産会社詳細情報にリンクされていないものがあります。
- 物件に関するお問合せは、物件詳細ページの「情報提供会社」に表示されている不動産会社へ直接お願いいたします。
- 間取図は、現況を優先させていただきます。
- 映像は物件の一部を撮影したものです。物件の契約にあたっての最終判断はご自身の判断に基づいて行ってください。
- 仲介手数料について

アットホームは物件情報の適正化に努めております。
内容に誤りがある場合にはこちらへご連絡ください。