千葉県長生郡白子町浜宿(永田駅)の一戸建て:物件詳細
交通 所在地 |
駅徒歩 |
価格 |
間取り 建物面積 |
土地面積 私道負担面積 |
物件種目 築年月 |
|
JR外房線/永田
千葉県長生郡白子町浜宿
|
10500m
|
5,150万円
|
8LDK
264.41m²
|
1,807.80m²
なし
|
中古一戸建て
1974年7月(築51年11ヶ月)
|
|
駐車場3台分以上、バス1坪以上、2面採光、閑静な住宅街、庭10坪以上、隣接建物距離2m以上
|
|
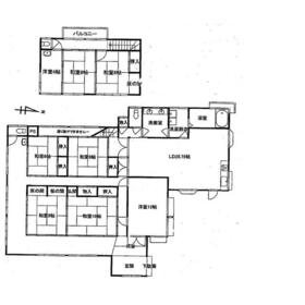
間取図
|
|
<
その他の画像
>
|
| 交通 | JR外房線 永田駅 徒歩10500m |
|---|
| その他の交通 | JR外房線 大網駅 【バス】 32分 浜宿 停歩4分 |
| 所在地 |
千葉県長生郡白子町浜宿
|
| 物件種目 |
中古一戸建て |
| 価格 |
5,150万円 |
借地期間・地代(月額) |
- |
| 権利金 |
- |
敷金または保証金 |
- / - |
| 維持費等 |
- |
その他一時金 |
- |
| 間取り |
8LDK(和 10・8・8・6・6・6 洋 12・4 LDK 25.7) |
建物面積 |
264.41m² |
| 土地権利 |
所有権 |
建物構造 |
木造 |
| 土地面積 |
1,807.80m²(公簿) |
私道負担面積 |
なし |
| 築年月 |
1974年7月(築51年11ヶ月)
|
都市計画 |
非線引区域 |
| 建物名 |
浜宿農家住宅 |
建築確認番号 |
- |
| 用途地域 |
1種住居 |
駐車場 |
有 無料 |
| 建ぺい率 |
60% |
容積率 |
200% |
| 階建 |
2階建 |
接道状況 |
南 4.0m 公道 接面36.0m
|
| 地目 |
宅地 |
地勢 |
平坦 |
| 国土法届出 |
- |
セットバック |
- |
| アピールポイント |
☆海とテニスリゾートの街、白子町北部の敷広和風住宅
☆田舎町でもライフラインは公営水道、都市ガス、本下水が備わっています。
☆耐震補強工事等大規模リホーム済住宅で、安心してお住まいになれます。 |
| リフォーム履歴 |
■水回り:2025年7月 キッチン、浴室、トイレ、洗面所、給湯器 ■内装:2025年7月 床(フローリング等)、サッシ 畳・襖貼替 ■その他:2025年7月 耐震補強工事済、耐震基準適合証明書有り ※実施年月は最も古い履歴を表示 |
| リノベーション履歴 |
- |
| 瑕疵保証 |
- |
| 瑕疵保険 |
- |
| 評価・証明書 |
- |
| 備考 |
主要採光面:東向き
|
| エネルギー消費性能 |
- |
| 断熱性能 |
- |
| 目安光熱費 |
- |
| バス・トイレ |
シャワー付洗面化粧台、温水洗浄便座、トイレ2ヶ所、浴室に窓あり |
| キッチン |
システムキッチン、3口以上コンロ |
| 設備・サービス |
床下収納、出窓、上水道、下水道、都市ガス、電気、側溝、照明器具 |
| その他 |
- |
| 現況 |
空家 |
引渡可能時期 |
即時 |
| 物件番号 |
6986937275 |
仲介手数料 |
売買代金の3%+6万円 |
| 情報公開日 |
2026年1月24日 |
次回更新予定日 |
2026年5月18日 |
| ケータイ用バーコード |
- スマートフォンでこの物件を見る
- スマートフォンからもこの物件をご覧になれます。
|
※「-」と表示されている項目については、情報提供会社にご確認ください。
| 周辺施設 |
ビーチキャンプ九十九里 |
| 距離 |
1569m |
| 周辺施設 |
セブンイレブン大網白里南今泉店 |
| 距離 |
2570m |
| 周辺施設 |
県立九十九里自然公園多目的グラウンド |
| 距離 |
2661m |
ここから簡単にお問い合わせをすることができます。
(SSLでの暗号化での送信を希望されるお客さまは
こちら
よりお問い合わせください)
お問い合わせを行う前に
「個人情報の取り扱いについて」を必ずお読みください。
「個人情報の取り扱いについて」に同意いただいた場合は「上記にご同意の上 確認画面へ進む」のボタンをクリックしてください。
個人情報の取り扱いについて
皆さまが送付された個人情報はアットホーム(株)のサーバを経由し、お問い合わせ先の不動産会社にメールまたはFAXにて転送されるためアットホーム(株)にも保管されます。アットホーム(株)で保管された個人情報の取り扱いについては、【こちら】をご覧ください。
また、本画面でご記入いただいた個人情報は、お問い合わせ先の不動産会社でも保管します。 お問い合わせ先の不動産会社が保管する個人情報の取り扱いについては、不動産会社に直接お問い合わせください。
千葉県知事免許(12)第5865号 |
|---|
- 交通:
- JR外房線/茂原駅 【バス】4分 信用組合前 停歩1分
- 千葉県茂原市八千代1丁目20-10
- TEL:
- 0475-23-7778
- FAX:
- 0475-23-6600
- 所属団体:
- (一社)千葉県宅地建物取引業協会会員(公社)首都圏不動産公正取引協議会加盟
取引態様:媒介  - 00020368
|
- スマートフォンで
この不動産会社を見る

|
- 提携サイト等より掲載されている物件情報につきましては、不動産会社詳細情報にリンクされていないものがあります。
- 物件に関するお問合せは、物件詳細ページの「情報提供会社」に表示されている不動産会社へ直接お願いいたします。
- 間取図は、現況を優先させていただきます。
- 映像は物件の一部を撮影したものです。物件の契約にあたっての最終判断はご自身の判断に基づいて行ってください。
- 仲介手数料について

アットホームは物件情報の適正化に努めております。
内容に誤りがある場合にはこちらへご連絡ください。