静岡県浜松市中央区早出町(曳馬駅)の一戸建て:物件詳細
交通 所在地 |
駅徒歩 |
価格 |
間取り 建物面積 |
土地面積 私道負担面積 |
物件種目 築年月 |
|
遠州鉄道/曳馬
静岡県浜松市中央区早出町
|
13分
|
2,480万円
|
5SLDK
130.00m²
|
132.24m²
-
|
中古一戸建て
2006年7月(築19年6ヶ月)
|
|
南向き、2×4工法、バス1坪以上、2面採光、24時間換気システム、バリアフリー、吹抜、閑静な住宅街、オール電化、区画整理地内、整形地
|
|
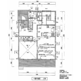
間取図
|
|
<
その他の画像
>
|
| 交通 | 遠州鉄道 曳馬駅 徒歩13分 |
| 所在地 |
静岡県浜松市中央区早出町
|
| 物件種目 |
中古一戸建て |
| 価格 |
2,480万円 |
借地期間・地代(月額) |
- |
| 権利金 |
- |
敷金または保証金 |
- / - |
| 維持費等 |
- |
その他一時金 |
- |
| 間取り |
5SLDK(和 4.5 洋 8・8・6・5.2 LDK 15 S 11) |
建物面積 |
130.00m² |
| 土地権利 |
所有権 |
建物構造 |
木造 |
| 土地面積 |
132.24m²(公簿) |
私道負担面積 |
- |
| 築年月 |
2006年7月(築19年6ヶ月)
|
都市計画 |
市街化区域 |
| 建物名 |
|
建築確認番号 |
- |
| 用途地域 |
1種住居 |
駐車場 |
- |
| 建ぺい率 |
60% |
容積率 |
200% |
| 階建 |
2階建 |
接道状況 |
北 4.1m 公道 接面9.0m
|
| 地目 |
宅地 |
地勢 |
平坦 |
| 国土法届出 |
- |
セットバック |
- |
| アピールポイント |
周辺施設の充実した、お子様の子育てや教育に適した静かな住環境です!
曳馬駅まで徒歩11分と近いため、通学や通勤にも便利な立地です!
リビングに高天井や、1階と2階の間に便利な巨大収納空間『収納王』があり、収納力と遮音性に優れた子育て世代にぴったりな5LDKの間取りです!
弊社の建築した住宅のため、購入からリフォームのご相談まで一括で承れます! |
| リフォーム履歴 |
- |
| リノベーション履歴 |
- |
| 瑕疵保証 |
- |
| 瑕疵保険 |
- |
| 評価・証明書 |
- |
| 備考 |
バルコニー:4.96m²
主要採光面:南向き
施工会社:株式会社大成住宅
|
| エネルギー消費性能 |
- |
| 断熱性能 |
- |
| 目安光熱費 |
- |
| バス・トイレ |
浴室乾燥機、オートバス、追焚機能、シャワー付洗面化粧台、温水洗浄便座、トイレ2ヶ所、浴室に窓あり |
| キッチン |
システムキッチン、食器洗浄乾燥機、IHクッキングヒーター |
| 設備・サービス |
全居室収納、クローゼット、床下収納、モニター付インターホン、ダブルロックドア、シャッター雨戸、上水道、下水道、都市ガス、電気、側溝、エアコン、ワイドバルコニー、照明器具、複層ガラス |
| その他 |
- |
| 現況 |
所有者居住中 |
引渡可能時期 |
相談 |
| 物件番号 |
6986981620 |
仲介手数料 |
売買代金の3%+6万円 |
| 情報公開日 |
2025年9月12日 |
次回更新予定日 |
2025年12月14日 |
| ケータイ用バーコード |
- スマートフォンでこの物件を見る
- スマートフォンからもこの物件をご覧になれます。
|
※「-」と表示されている項目については、情報提供会社にご確認ください。
| 周辺施設 |
マックスバリュエクスプレス浜松早出店 |
| 距離 |
632m |
| 周辺施設 |
セブンイレブン浜松早出町店 |
| 距離 |
286m |
| 周辺施設 |
浜松いわた信用金庫上新屋支店 |
| 距離 |
691m |
ここから簡単にお問い合わせをすることができます。
(SSLでの暗号化での送信を希望されるお客さまは
こちら
よりお問い合わせください)
お問い合わせを行う前に
「個人情報の取り扱いについて」を必ずお読みください。
「個人情報の取り扱いについて」に同意いただいた場合は「上記にご同意の上 確認画面へ進む」のボタンをクリックしてください。
個人情報の取り扱いについて
皆さまが送付された個人情報はアットホーム(株)のサーバを経由し、お問い合わせ先の不動産会社にメールまたはFAXにて転送されるためアットホーム(株)にも保管されます。アットホーム(株)で保管された個人情報の取り扱いについては、【こちら】をご覧ください。
また、本画面でご記入いただいた個人情報は、お問い合わせ先の不動産会社でも保管します。 お問い合わせ先の不動産会社が保管する個人情報の取り扱いについては、不動産会社に直接お問い合わせください。
静岡県知事免許(1)第14474号 |
|---|
- 交通:
- 東海道本線/静岡駅 徒歩22分 【バス】21分 南安倍町 停歩1分
- 静岡県静岡市葵区南安倍1丁目3-10 大成住宅ビル501号
- TEL:
- 054-254-7025
- FAX:
- 054-253-1470
- 所属団体:
- (公社)静岡県宅地建物取引業協会会員東海不動産公正取引協議会加盟
取引態様:専任媒介  - 40409453
|
- スマートフォンで
この不動産会社を見る

|
- 提携サイト等より掲載されている物件情報につきましては、不動産会社詳細情報にリンクされていないものがあります。
- 物件に関するお問合せは、物件詳細ページの「情報提供会社」に表示されている不動産会社へ直接お願いいたします。
- 間取図は、現況を優先させていただきます。
- 映像は物件の一部を撮影したものです。物件の契約にあたっての最終判断はご自身の判断に基づいて行ってください。
- 仲介手数料について

アットホームは物件情報の適正化に努めております。
内容に誤りがある場合にはこちらへご連絡ください。