千葉県市川市新井2丁目(南行徳駅)の一戸建て:物件詳細
交通 所在地 |
駅徒歩 |
価格 |
間取り 建物面積 |
土地面積 私道負担面積 |
物件種目 築年月 |
|
東京メトロ東西線/南行徳
千葉県市川市新井2丁目
|
13分
|
6,580万円
|
3LDK
100.30m²
|
83.12m²
なし
|
新築一戸建て
2025年7月
|
|
高気密高断熱住宅、外壁サイディング、バス1坪以上、全室2面採光、2面採光、24時間換気システム、閑静な住宅街、オール電化、分譲地内
|
|
≪オープンハウス/モデルハウス≫【開催期間】2025年12月1日~2026年1月31日 【時間】10:00~17:00 室内完成済で随時内見受付中です! お気軽にお問合せ下さい♪
|
|
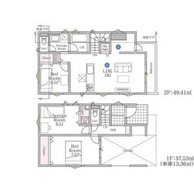
間取図
1号棟間取
|
外観
完成予想パース
|
<
その他の画像
>
|
| 交通 | 東京メトロ東西線 南行徳駅 徒歩13分 |
|---|
| その他の交通 | 東京メトロ東西線 浦安駅 徒歩15分 都営新宿線 一之江駅 徒歩22分 |
| 所在地 |
千葉県市川市新井2丁目
|
| 物件種目 |
新築一戸建て |
| 価格 |
6,580万円 |
借地期間・地代(月額) |
- |
| 権利金 |
- |
敷金または保証金 |
- / - |
| 維持費等 |
- |
その他一時金 |
- |
| 間取り |
3LDK(洋 7.5・6.5・4.5 LDK 18) |
建物面積 |
100.30m² |
| 土地権利 |
所有権 |
建物構造 |
木造 |
| 土地面積 |
83.12m² |
私道負担面積 |
なし |
| 築年月 |
2025年7月
|
都市計画 |
市街化区域 |
| 建物名 |
|
建築確認番号 |
第24UDI1T建04495号 |
| 用途地域 |
1種中高 |
駐車場 |
有 無料 |
| 建ぺい率 |
60% |
容積率 |
200% |
| 階建 |
2階建 |
接道状況 |
-
|
| 地目 |
宅地 |
地勢 |
平坦 |
| 国土法届出 |
- |
セットバック |
- |
| アピールポイント |
◆東京メトロ東西線「南行徳」駅徒歩13分(西船橋駅まで10分)
◆東京メトロ東西線「浦安」駅徒歩15分(日本橋駅まで15分)
◆ハウスメーカー施工 長期優良住宅
◆高気密・高断熱の家で快適にお住まい頂けます♪
◆間取:2階建の3LDK+カースペース
◆WICやパントリー、洗面収納や家事コーナーなど収納豊富な設計♪
◆アクアフォーム(高性能断熱材)、食洗器、室内内蔵スピーカーなど充実設備
◆建物30年長期保証にアフターサービス付き♪
◆幼稚園・保育園・小学校近くてお子様も安心!
◆駅近で商業施設が多数揃う大変便利な立地♪
◆近隣モデルハウスご見学頂けます!
◆お気軽にお問合せ下さい♪ |
| リフォーム履歴 |
- |
| リノベーション履歴 |
- |
| 瑕疵保証 |
- |
| 瑕疵保険 |
- |
| 評価・証明書 |
- |
| 備考 |
工事完了予定日:2025年7月
|
| エネルギー消費性能 |
- |
| 断熱性能 |
- |
| 目安光熱費 |
- |
| バス・トイレ |
浴室暖房、浴室乾燥機、追焚機能、高温差湯式、シャワー付洗面化粧台、温水洗浄便座、トイレ2ヶ所、浴室に窓あり |
| キッチン |
カウンターキッチン、オープンキッチン、システムキッチン、食器洗浄乾燥機、食器乾燥機、浄水器、IHクッキングヒーター、3口以上コンロ、グリル |
| 設備・サービス |
全居室収納、ウォークインクローゼット、EV車充電設備、クローゼット、床下収納、モニター付インターホン、カードキー、ディンプルキー、ダブルロックドア、シャッター雨戸、省エネ給湯器、下水道、人感センサー付照明、ダウンライト、照明器具、火災警報器(報知機)、複層ガラス、Low-E ガラス |
| その他 |
- |
| 現況 |
完成済 |
引渡可能時期 |
即時 |
| 物件番号 |
6987011945 |
|
|
| 情報公開日 |
2025年7月14日 |
次回更新予定日 |
2026年2月5日 |
| ケータイ用バーコード |
- スマートフォンでこの物件を見る
- スマートフォンからもこの物件をご覧になれます。
|
※「-」と表示されている項目については、情報提供会社にご確認ください。
| 周辺施設 |
東京メトロ東西線「南行徳」駅:徒歩13分 |
| 距離 |
1040m |
写真を見る |
| 周辺施設 |
東京メトロ東西線「浦安」駅:徒歩15分 |
| 距離 |
1200m |
写真を見る |
| 周辺施設 |
新井保育園:徒歩3分 |
| 距離 |
200m |
写真を見る |
| 周辺施設 |
和光幼稚園:徒歩4分 |
| 距離 |
320m |
写真を見る |
| 周辺施設 |
市川市立新井小学校:徒歩7分 |
| 距離 |
560m |
写真を見る |
| 周辺施設 |
SOCOLA南行徳:徒歩22分(車で約5分) |
| 距離 |
1760m |
写真を見る |
| 周辺施設 |
くすりの福太郎相之川店:徒歩6分 |
| 距離 |
480m |
写真を見る |
| 周辺施設 |
東京ベイ・浦安市川医療センター:徒歩6分 |
| 距離 |
480m |
写真を見る |
ここから簡単にお問い合わせをすることができます。
(SSLでの暗号化での送信を希望されるお客さまは
こちら
よりお問い合わせください)
お問い合わせを行う前に
「個人情報の取り扱いについて」を必ずお読みください。
「個人情報の取り扱いについて」に同意いただいた場合は「上記にご同意の上 確認画面へ進む」のボタンをクリックしてください。
個人情報の取り扱いについて
皆さまが送付された個人情報はアットホーム(株)のサーバを経由し、お問い合わせ先の不動産会社にメールまたはFAXにて転送されるためアットホーム(株)にも保管されます。アットホーム(株)で保管された個人情報の取り扱いについては、【こちら】をご覧ください。
また、本画面でご記入いただいた個人情報は、お問い合わせ先の不動産会社でも保管します。 お問い合わせ先の不動産会社が保管する個人情報の取り扱いについては、不動産会社に直接お問い合わせください。
千葉県知事免許(1)第18385号 |
|---|
- 交通:
- JR総武線/津田沼駅 徒歩12分
- 千葉県習志野市藤崎2丁目13-5
- TEL:
- 047-409-9631
- FAX:
- 047-409-9704
- 所属団体:
- (公社)全日本不動産協会会員(公社)首都圏不動産公正取引協議会加盟
取引態様:媒介  - 00275241
|
- スマートフォンで
この不動産会社を見る

|
- 提携サイト等より掲載されている物件情報につきましては、不動産会社詳細情報にリンクされていないものがあります。
- 物件に関するお問合せは、物件詳細ページの「情報提供会社」に表示されている不動産会社へ直接お願いいたします。
- 間取図は、現況を優先させていただきます。
- 映像は物件の一部を撮影したものです。物件の契約にあたっての最終判断はご自身の判断に基づいて行ってください。
- 仲介手数料について

アットホームは物件情報の適正化に努めております。
内容に誤りがある場合にはこちらへご連絡ください。