奈良県生駒市真弓3丁目(学研北生駒駅)の一戸建て:物件詳細
交通 所在地 |
駅徒歩 |
価格 |
間取り 建物面積 |
土地面積 私道負担面積 |
物件種目 築年月 |
|
近鉄けいはんな線/学研北生駒
奈良県生駒市真弓3丁目
|
15分
|
4,180万円
|
5SLDK
151.47m²
|
253.51m²
なし
|
中古一戸建て
1996年3月(築30年)
|
|
駐車場2台分、南向き、外壁サイディング、2面採光、閑静な住宅街
|
|
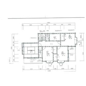
間取図
1階平面図
|
間取図
2階平面図
|
<
その他の画像
>
|
| 交通 | 近鉄けいはんな線 学研北生駒駅 徒歩15分 |
|---|
| その他の交通 | 近鉄けいはんな線 白庭台駅 徒歩27分 近鉄けいはんな線 学研奈良登美ヶ丘駅 徒歩29分 |
| 所在地 |
奈良県生駒市真弓3丁目
|
| 物件種目 |
中古一戸建て |
| 価格 |
4,180万円 |
借地期間・地代(月額) |
- |
| 権利金 |
- |
敷金または保証金 |
- / - |
| 維持費等 |
- |
その他一時金 |
なし |
| 間取り |
5SLDK(和 8・8 洋 6・6・6 LDK 23 S 3・5.5) |
建物面積 |
151.47m² |
| 土地権利 |
所有権 |
建物構造 |
木造 |
| 土地面積 |
253.51m²(公簿) |
私道負担面積 |
なし |
| 築年月 |
1996年3月(築30年)
|
都市計画 |
市街化区域 |
| 建物名 |
生駒市真弓3丁目 中古戸建 |
建築確認番号 |
- |
| 用途地域 |
1種低層 |
駐車場 |
有 無料 |
| 建ぺい率 |
40% |
容積率 |
60% |
| 階建 |
2階建 |
接道状況 |
東 6.0m 公道 接面12.0m
・ 西 6.0m 公道 接面12.0m
|
| 地目 |
宅地 |
地勢 |
平坦 |
| 国土法届出 |
- |
セットバック |
- |
| アピールポイント |
広々とした延床面積151.47㎡の居室空間、更に何も置かなくても心のゆとりになる庭がある暮らしが叶います。また閑静な住宅街の住戸で、その上匂いや煙をダイニングにまで充満させない独立型キッチン仕様だから、部屋を用途ごとにきちんと使い分けたい方におすすめです。ちなみに底冷えのない浴室暖房採用です。家族の物語が生まれる5SLDK。ご案内いたしますのでお気軽にご連絡ください。室内改装も自由に可能です。条件相談などご相談下さい。 |
| リフォーム履歴 |
- |
| リノベーション履歴 |
- |
| 瑕疵保証 |
- |
| 瑕疵保険 |
- |
| 評価・証明書 |
- |
| 備考 |
主要採光面:南向き
|
| エネルギー消費性能 |
- |
| 断熱性能 |
- |
| 目安光熱費 |
- |
| バス・トイレ |
浴室暖房、浴室乾燥機、追焚機能、高温差湯式、シャワー付洗面化粧台、温水洗浄便座、トイレ2ヶ所、浴室に窓あり |
| キッチン |
独立型キッチン |
| 設備・サービス |
全居室収納、クローゼット、床下収納、シャッター雨戸、出窓、上水道、下水道、都市ガス、電気、庭、複層ガラス |
| その他 |
- |
| 現況 |
空家 |
引渡可能時期 |
相談 |
| 物件番号 |
6987026386 |
仲介手数料 |
売買代金の3%+6万円 |
| 情報公開日 |
2025年12月25日 |
次回更新予定日 |
2026年2月16日 |
| ケータイ用バーコード |
- スマートフォンでこの物件を見る
- スマートフォンからもこの物件をご覧になれます。
|
※「-」と表示されている項目については、情報提供会社にご確認ください。
| 周辺施設 |
スーパーヤオヒコ北大和店 |
| 距離 |
796m |
| 周辺施設 |
ファミリーマート西登美ヶ丘店 |
| 距離 |
1158m |
| 周辺施設 |
スターバックスコーヒー北生駒ならやま大通り店 |
| 距離 |
1503m |
ここから簡単にお問い合わせをすることができます。
(SSLでの暗号化での送信を希望されるお客さまは
こちら
よりお問い合わせください)
お問い合わせを行う前に
「個人情報の取り扱いについて」を必ずお読みください。
「個人情報の取り扱いについて」に同意いただいた場合は「上記にご同意の上 確認画面へ進む」のボタンをクリックしてください。
個人情報の取り扱いについて
皆さまが送付された個人情報はアットホーム(株)のサーバを経由し、お問い合わせ先の不動産会社にメールまたはFAXにて転送されるためアットホーム(株)にも保管されます。アットホーム(株)で保管された個人情報の取り扱いについては、【こちら】をご覧ください。
また、本画面でご記入いただいた個人情報は、お問い合わせ先の不動産会社でも保管します。 お問い合わせ先の不動産会社が保管する個人情報の取り扱いについては、不動産会社に直接お問い合わせください。
大阪府知事免許(6)第47214号 |
|---|
- 交通:
- 地下鉄中央線/堺筋本町駅 徒歩3分
- 大阪府大阪市中央区北久宝寺町2丁目1-10 SD船場ビル8階
- TEL:
- 06-4705-1525
- FAX:
- 06-4705-1155
- 所属団体:
- (一社)大阪府宅地建物取引業協会会員(公社)近畿地区不動産公正取引協議会加盟
取引態様:専属専任媒介  - 50027257
|
- スマートフォンで
この不動産会社を見る

|
- 提携サイト等より掲載されている物件情報につきましては、不動産会社詳細情報にリンクされていないものがあります。
- 物件に関するお問合せは、物件詳細ページの「情報提供会社」に表示されている不動産会社へ直接お願いいたします。
- 間取図は、現況を優先させていただきます。
- 映像は物件の一部を撮影したものです。物件の契約にあたっての最終判断はご自身の判断に基づいて行ってください。
- 仲介手数料について

アットホームは物件情報の適正化に努めております。
内容に誤りがある場合にはこちらへご連絡ください。