大分県別府市南立石二区(別府駅)の一戸建て:物件詳細
交通 所在地 |
駅徒歩 |
価格 |
間取り 建物面積 |
土地面積 私道負担面積 |
物件種目 築年月 |
|
JR日豊本線/別府 [バス利用可] バス 西別府団地 停歩3分
大分県別府市南立石二区
|
35分
|
1,065万円
|
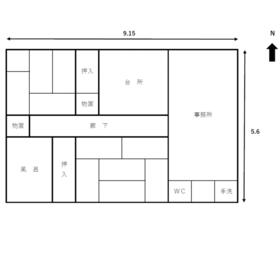
2DK
51.24m²
|
141.11m²
なし
|
中古一戸建て
1974年1月(築52年)
|
|
駐車場2台分、南向き
|
|
間取図
|
|
その他の画像
|
| 交通 | JR日豊本線 別府駅 徒歩35分 [バス利用可] バス 西別府団地 停歩3分 |
| 所在地 |
大分県別府市南立石二区
|
| 物件種目 |
中古一戸建て |
| 価格 |
1,065万円 |
借地期間・地代(月額) |
- |
| 権利金 |
- |
敷金または保証金 |
- / - |
| 維持費等 |
- |
その他一時金 |
- |
| 間取り |
2DK(和 4.5・6) |
建物面積 |
51.24m² |
| 土地権利 |
所有権 |
建物構造 |
木造 |
| 土地面積 |
141.11m²(公簿) |
私道負担面積 |
なし |
| 築年月 |
1974年1月(築52年)
|
都市計画 |
市街化区域 |
| 建物名 |
|
建築確認番号 |
- |
| 用途地域 |
1種住居 |
駐車場 |
有 無料 |
| 建ぺい率 |
60% |
容積率 |
200% |
| 階建 |
平屋建 |
接道状況 |
東 6.0m 公道 接面10.0m
・ 南 27.0m 公道 接面13.0m
・ 二方道路
|
| 地目 |
宅地 |
地勢 |
平坦 |
| 国土法届出 |
- |
セットバック |
- |
| アピールポイント |
運動不足解消に、ストレス解消に。南立石公園近く。 |
| リフォーム履歴 |
- |
| リノベーション履歴 |
- |
| 瑕疵保証 |
- |
| 瑕疵保険 |
- |
| 評価・証明書 |
- |
| 備考 |
主要採光面:南向き
現況有姿。老朽化のためリフォーム必要。
※間取り2DK+事務所
※シロアリ駆除済(5年間保証付き)
|
| エネルギー消費性能 |
- |
| 断熱性能 |
- |
| 目安光熱費 |
- |
| バス・トイレ |
- |
| キッチン |
- |
| 設備・サービス |
上水道、下水道、プロパンガス、電気 |
| その他 |
- |
| 現況 |
空家 |
引渡可能時期 |
相談 |
| 物件番号 |
6987032216 |
|
|
| 情報公開日 |
2025年8月18日 |
次回更新予定日 |
2026年1月7日 |
| ケータイ用バーコード |
- スマートフォンでこの物件を見る
- スマートフォンからもこの物件をご覧になれます。
|
※「-」と表示されている項目については、情報提供会社にご確認ください。
| 周辺施設 |
トキハインダストリー鶴見園店 |
| 距離 |
1075m |
| 周辺施設 |
独立行政法人国立病院機構西別府病院 |
| 距離 |
733m |
ここから簡単にお問い合わせをすることができます。
(SSLでの暗号化での送信を希望されるお客さまは
こちら
よりお問い合わせください)
お問い合わせを行う前に
「個人情報の取り扱いについて」を必ずお読みください。
「個人情報の取り扱いについて」に同意いただいた場合は「上記にご同意の上 確認画面へ進む」のボタンをクリックしてください。
個人情報の取り扱いについて
皆さまが送付された個人情報はアットホーム(株)のサーバを経由し、お問い合わせ先の不動産会社にメールまたはFAXにて転送されるためアットホーム(株)にも保管されます。アットホーム(株)で保管された個人情報の取り扱いについては、【こちら】をご覧ください。
また、本画面でご記入いただいた個人情報は、お問い合わせ先の不動産会社でも保管します。 お問い合わせ先の不動産会社が保管する個人情報の取り扱いについては、不動産会社に直接お問い合わせください。
(有)信友不動産大分県知事免許(5)第2690号 |
|---|
- 交通:
- JR日豊本線/別府駅 徒歩3分
- 大分県別府市野口元町6番6号
- TEL:
- 0977-26-3456
- FAX:
- 0977-26-4858
- 所属団体:
- (公社)大分県宅地建物取引業協会会員(一社)九州不動産公正取引協議会加盟
取引態様:一般媒介 |
- 提携サイト等より掲載されている物件情報につきましては、不動産会社詳細情報にリンクされていないものがあります。
- 物件に関するお問合せは、物件詳細ページの「情報提供会社」に表示されている不動産会社へ直接お願いいたします。
- 間取図は、現況を優先させていただきます。
- 映像は物件の一部を撮影したものです。物件の契約にあたっての最終判断はご自身の判断に基づいて行ってください。
- 仲介手数料について

アットホームは物件情報の適正化に努めております。
内容に誤りがある場合にはこちらへご連絡ください。