福岡県福岡市東区下原2丁目(香椎駅)の一戸建て:物件詳細
交通 所在地 |
駅徒歩 |
価格 |
間取り 建物面積 |
土地面積 私道負担面積 |
物件種目 築年月 |
|
JR鹿児島本線/香椎 [バス利用可] バス グリーンタウン入口 停歩7分
福岡県福岡市東区下原2丁目
|
30分
|
2,980万円
|
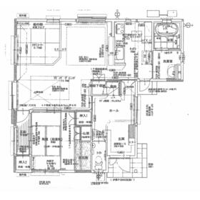
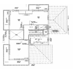
4SLDK
134.01m²
|
227.03m²
なし
|
中古一戸建て
2006年10月(築19年3ヶ月)
|
|
駐車場2台分、バス1坪以上、3面採光、吹抜、閑静な住宅街、オール電化、設計住宅性能評価書あり
|
|
間取図
|
間取図
|
<
その他の画像
>
|
| 交通 | JR鹿児島本線 香椎駅 徒歩30分 [バス利用可] バス グリーンタウン入口 停歩7分 |
|---|
| その他の交通 | JR鹿児島本線 九産大前駅 徒歩29分 |
| 所在地 |
福岡県福岡市東区下原2丁目
|
| 物件種目 |
中古一戸建て |
| 価格 |
2,980万円 |
借地期間・地代(月額) |
- |
| 権利金 |
- |
敷金または保証金 |
- / - |
| 維持費等 |
- |
その他一時金 |
- |
| 間取り |
4SLDK(和 6 洋 8・8・6 S 4) |
建物面積 |
134.01m² |
| 土地権利 |
所有権 |
建物構造 |
軽量鉄骨造 |
| 土地面積 |
227.03m²(公簿) |
私道負担面積 |
なし |
| 築年月 |
2006年10月(築19年3ヶ月)
|
都市計画 |
市街化区域 |
| 建物名 |
|
建築確認番号 |
- |
| 用途地域 |
1種低層 |
駐車場 |
- |
| 建ぺい率 |
50% |
容積率 |
80% |
| 階建 |
2階建 |
接道状況 |
南東 6.0m 公道 接面13.0m
・ 南西 5.0m 公道 接面12.0m
・ 二方道路
|
| 地目 |
宅地 |
地勢 |
- |
| 国土法届出 |
- |
セットバック |
- |
| リフォーム履歴 |
- |
| リノベーション履歴 |
- |
| 瑕疵保証 |
- |
| 瑕疵保険 |
- |
| 評価・証明書 |
- |
| 備考 |
建築確認完了検査済証あり、新築時・増改築時の設計図書あり
土砂災害警戒区域(イエローゾーン)
|
| エネルギー消費性能 |
- |
| 断熱性能 |
- |
| 目安光熱費 |
- |
| バス・トイレ |
追焚機能、温水洗浄便座、トイレ2ヶ所 |
| キッチン |
カウンターキッチン、システムキッチン、食器洗浄乾燥機、食器乾燥機、浄水器、IHクッキングヒーター |
| 設備・サービス |
全居室収納、ウォークインクローゼット、太陽光発電システム、シューズインクローゼット、モニター付インターホン、出窓、上水道、下水道、都市ガス、庭、ウッドデッキ、縁側、蓄電池付き |
| その他 |
- |
| 現況 |
空家 |
引渡可能時期 |
相談 |
| 物件番号 |
6987053338 |
仲介手数料 |
売買代金の3%+6万円 |
| 情報公開日 |
2025年9月17日 |
次回更新予定日 |
2025年12月23日 |
| ケータイ用バーコード |
- スマートフォンでこの物件を見る
- スマートフォンからもこの物件をご覧になれます。
|
※「-」と表示されている項目については、情報提供会社にご確認ください。
ここから簡単にお問い合わせをすることができます。
(SSLでの暗号化での送信を希望されるお客さまは
こちら
よりお問い合わせください)
お問い合わせを行う前に
「個人情報の取り扱いについて」を必ずお読みください。
「個人情報の取り扱いについて」に同意いただいた場合は「上記にご同意の上 確認画面へ進む」のボタンをクリックしてください。
個人情報の取り扱いについて
皆さまが送付された個人情報はアットホーム(株)のサーバを経由し、お問い合わせ先の不動産会社にメールまたはFAXにて転送されるためアットホーム(株)にも保管されます。アットホーム(株)で保管された個人情報の取り扱いについては、【こちら】をご覧ください。
また、本画面でご記入いただいた個人情報は、お問い合わせ先の不動産会社でも保管します。 お問い合わせ先の不動産会社が保管する個人情報の取り扱いについては、不動産会社に直接お問い合わせください。
福岡県知事免許(3)第16782号 |
|---|
- 交通:
- JR鹿児島本線/博多駅 徒歩4分 【バス】 駅前4丁目 停歩3分
- 福岡県福岡市博多区博多駅前3丁目9番5号 チサンマンション第一博多202-1
- TEL:
- 092-292-8855
- FAX:
- 092-292-8644
- 所属団体:
- (公社)福岡県宅地建物取引業協会会員(一社)九州不動産公正取引協議会加盟
取引態様:一般媒介  - 80004861
|
- スマートフォンで
この不動産会社を見る

|
- 提携サイト等より掲載されている物件情報につきましては、不動産会社詳細情報にリンクされていないものがあります。
- 物件に関するお問合せは、物件詳細ページの「情報提供会社」に表示されている不動産会社へ直接お願いいたします。
- 間取図は、現況を優先させていただきます。
- 映像は物件の一部を撮影したものです。物件の契約にあたっての最終判断はご自身の判断に基づいて行ってください。
- 仲介手数料について

アットホームは物件情報の適正化に努めております。
内容に誤りがある場合にはこちらへご連絡ください。