福島県いわき市中央台高久3丁目(いわき駅)の一戸建て:物件詳細
交通 所在地 |
駅徒歩 |
価格 |
間取り 建物面積 |
土地面積 私道負担面積 |
物件種目 築年月 |
JR常磐線/いわき [バス利用可] バス 30分 高久三丁目 停歩3分
福島県いわき市中央台高久3丁目
|
10000m
|
4,380万円
|
3SLDK
90.26m²
|
217.43m²
-
|
中古一戸建て
2022年10月(築3年1ヶ月)
|
スマートハウス、駐車場3台分以上、南向き、高気密高断熱住宅、外壁サイディング、ハイサッシ採用、天井高2.5M以上、バス1坪以上、24時間換気システム、バリアフリー、吹抜、閑静な住宅街、オール電化、整形地、設計住宅性能評価書あり、建設住宅性能評価書あり、分譲地内
|
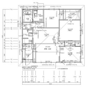
間取図
|
外観
陽当たり良好。最大4台駐車可能です。
|
<
その他の画像
>
|
交通 | JR常磐線 いわき駅 徒歩10000m [バス利用可] バス 30分 高久三丁目 停歩3分 |
所在地 |
福島県いわき市中央台高久3丁目
|
物件種目 |
中古一戸建て |
価格 |
4,380万円 |
借地期間・地代(月額) |
- |
権利金 |
- |
敷金または保証金 |
- / - |
維持費等 |
- |
その他一時金 |
- |
間取り |
3SLDK(和 6 洋 8・5.2 S 3.7・2.7) |
建物面積 |
90.26m² |
土地権利 |
所有権 |
建物構造 |
木造 |
土地面積 |
217.43m²(公簿) |
私道負担面積 |
- |
築年月 |
2022年10月(築3年1ヶ月)
|
都市計画 |
- |
建物名 |
|
建築確認番号 |
- |
用途地域 |
- |
駐車場 |
無 |
建ぺい率 |
50% |
容積率 |
80% |
階建 |
平屋建 |
接道状況 |
南東 6.0m 公道 接面13.7m
|
地目 |
- |
地勢 |
- |
国土法届出 |
- |
セットバック |
- |
アピールポイント |
お問合せは070-2036-7609(アビコ)迄お気軽にご連絡下さい♪
築3年、設備はPanasonic仕様の高品質モデル!
断熱・省エネ・耐久・耐震・意匠、全てを適えたミサワホーム施工♪
・屋根一体型太陽光発電機3.55kw
・EV車・充電給電可能、光熱費抑制&災害対策
・小上がり和室、掘りごたつ
・食洗機&全自動そうじ機能レンジフード
・浴室乾燥機&バブルバス&バス照明調光
・タンクレストイレ「アラウーノ」最上モデル搭載
・パントリー、クローゼット、造作収納棚が充実
・高耐久カーポート
等々、見どころたくさん!
ご内覧のお問合せお待ちいたしております。 |
リフォーム履歴 |
- |
リノベーション履歴 |
- |
瑕疵保証 |
- |
瑕疵保険 |
- |
評価・証明書 |
- |
備考 |
主要採光面:南向き
施工会社:東北ミサワホーム(株)
設備保証付
建築確認完了検査済証あり、修繕・点検の記録あり、新築時・増改築時の設計図書あり
|
エネルギー消費性能 |
- |
断熱性能 |
- |
目安光熱費 |
- |
バス・トイレ |
浴室暖房、浴室乾燥機、オートバス、追焚機能、シャワー付洗面化粧台、温水洗浄便座、タンクレストイレ、浴室に窓あり |
キッチン |
カウンターキッチン、システムキッチン、食器洗浄乾燥機、浄水器、IHクッキングヒーター、3口以上コンロ、グリル |
設備・サービス |
全居室収納、ウォークインクローゼット、太陽光発電システム、EV車充電設備、エアコン2台以上、クローゼット、床下収納、モニター付インターホン、ディンプルキー、省エネ給湯器、室内物干し、上水道、下水道、電気、可動間仕切り、側溝、縁側、人感センサー付照明、フットライト、ダウンライト、間接照明、照明器具、火災警報器(報知機)、掘ごたつ、インターネット対応、光ファイバー、ケーブルTV、複層ガラス |
その他 |
- |
現況 |
空家 |
引渡可能時期 |
即時 |
物件番号 |
6987075083 |
仲介手数料 |
売買代金の3%+6万円 |
情報公開日 |
2025年9月20日 |
次回更新予定日 |
2025年10月26日 |
ケータイ用バーコード |
- スマートフォンでこの物件を見る
- スマートフォンからもこの物件をご覧になれます。
|
※「-」と表示されている項目については、情報提供会社にご確認ください。
周辺施設 |
いわき市立中央台東小学校 |
距離 |
889m |
写真を見る |
周辺施設 |
いわき市立中央台南中学校 |
距離 |
899m |
写真を見る |
周辺施設 |
中央台保育園 |
距離 |
800m |
写真を見る |
周辺施設 |
セブンイレブンいわき中央台高久店 |
距離 |
508m |
写真を見る |
周辺施設 |
中央台東郵便局 |
距離 |
678m |
写真を見る |
周辺施設 |
ラパークいわき |
距離 |
2887m |
写真を見る |
ここから簡単にお問い合わせをすることができます。
(SSLでの暗号化での送信を希望されるお客さまは
こちら
よりお問い合わせください)
お問い合わせを行う前に
「個人情報の取り扱いについて」を必ずお読みください。
「個人情報の取り扱いについて」に同意いただいた場合は「上記にご同意の上 確認画面へ進む」のボタンをクリックしてください。
個人情報の取り扱いについて
皆さまが送付された個人情報はアットホーム(株)のサーバを経由し、お問い合わせ先の不動産会社にメールまたはFAXにて転送されるためアットホーム(株)にも保管されます。アットホーム(株)で保管された個人情報の取り扱いについては、【こちら】をご覧ください。
また、本画面でご記入いただいた個人情報は、お問い合わせ先の不動産会社でも保管します。 お問い合わせ先の不動産会社が保管する個人情報の取り扱いについては、不動産会社に直接お問い合わせください。
国土交通大臣免許(9)第3827号 |
---|
- 交通:
- JR東北本線/安積永盛駅 【バス】4分 川向 停歩2分
- 福島県郡山市南1丁目82
- TEL:
- 024-937-4111
- FAX:
- 024-945-2330
- 所属団体:
- (公社)福島県宅地建物取引業協会会員東北地区不動産公正取引協議会加盟
取引態様:専任媒介  - 20003304
|
- スマートフォンで
この不動産会社を見る

|
- 提携サイト等より掲載されている物件情報につきましては、不動産会社詳細情報にリンクされていないものがあります。
- 物件に関するお問合せは、物件詳細ページの「情報提供会社」に表示されている不動産会社へ直接お願いいたします。
- 間取図は、現況を優先させていただきます。
- 映像は物件の一部を撮影したものです。物件の契約にあたっての最終判断はご自身の判断に基づいて行ってください。
- 仲介手数料について

アットホームは物件情報の適正化に努めております。
内容に誤りがある場合にはこちらへご連絡ください。