福島県南相馬市原町区牛越字搗屋前(原ノ町駅)の一戸建て:物件詳細
交通 所在地 |
駅徒歩 |
価格 |
間取り 建物面積 |
土地面積 私道負担面積 |
物件種目 築年月 |
JR常磐線/原ノ町
福島県南相馬市原町区牛越字搗屋前
|
50分
|
2,860万円
|
3LDK
86.12m²
|
99.59m²
有 248.91m²(共有持分1/6)
|
新築一戸建て
2025年3月
|
スマートハウス、駐車場2台分、南向き、外断熱、高気密高断熱住宅、外壁サイディング、ノンホルムアルデヒド、バス1坪以上、24時間換気システム、閑静な住宅街、オール電化、整形地、設計住宅性能評価書あり、分譲地内
|
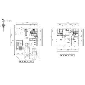
間取図
|
外観
|
その他の画像
|
交通 | JR常磐線 原ノ町駅 徒歩50分 |
所在地 |
福島県南相馬市原町区牛越字搗屋前
|
物件種目 |
新築一戸建て |
価格 |
2,860万円 |
借地期間・地代(月額) |
- |
権利金 |
- |
敷金または保証金 |
- / - |
維持費等 |
- |
その他一時金 |
- |
間取り |
3LDK(洋 4.4・3.8・6.5 LDK 21) |
建物面積 |
86.12m² |
土地権利 |
所有権 |
建物構造 |
木造 |
土地面積 |
99.59m²(実測) |
私道負担面積 |
有 248.91m²(共有持分1/6) |
築年月 |
2025年3月
|
都市計画 |
非線引区域 |
建物名 |
そうまZUTTOプロジェクトin牛越NO2 |
建築確認番号 |
第R6確認建築SHIC0135号 |
用途地域 |
無指定 |
駐車場 |
- |
建ぺい率 |
70% |
容積率 |
200% |
階建 |
2階建 |
接道状況 |
南 6.0m 私道 位置指定有 接面6.5m
・ 西 6.0m 私道 位置指定有 接面9.5m
・ 二方道路
|
地目 |
宅地 |
地勢 |
平坦 |
国土法届出 |
- |
セットバック |
- |
アピールポイント |
令和6年度ふくしまZEH(F-ZEH)モデル支援事業住宅となります。
住宅省エネ2025キャンペーン・子育てグリーン住宅支援事業GX志向型住宅該当住宅(申請期限あり)
太陽光発電8.7KW、蓄電池7.4KW、V2H標準装備。
高気密・高断熱外張り断熱エアサイクルに全館輻射暖房がついて冬は陽だまりの暖かさを!
そしてペレットストーブで炎を見ながらゆっくりとLDKでお過ごし下さい! |
リフォーム履歴 |
- |
リノベーション履歴 |
- |
瑕疵保証 |
- |
瑕疵保険 |
- |
評価・証明書 |
- |
備考 |
主要採光面:南向き
設備保証利用可
建築確認完了検査済証あり、新築時・増改築時の設計図書あり、BELS/省エネ基準適合認定
|
エネルギー消費性能 |
★★★★★★(削減率50%達成) |
断熱性能 |
6段階/7段階中 |
目安光熱費 |
約13.0万円/年 |
バス・トイレ |
追焚機能、シャワー付洗面化粧台、温水洗浄便座、トイレ2ヶ所 |
キッチン |
カウンターキッチン、食器洗浄乾燥機、IHクッキングヒーター、キッチン床暖房 |
設備・サービス |
太陽光発電システム、EV車充電設備、全居室エアコン、エアコン2台以上、床暖房、モニター付インターホン、ダブルロックドア、浄化槽、省エネ給湯器、全居室フローリング、クッションフロア、上水道、プロパンガス、電気、側溝、エアコン、ダウンライト、照明器具、火災警報器(報知機)、BS端子、蓄電池付き、複層ガラス、三層複層ガラス、Low-E ガラス |
その他 |
- |
現況 |
完成済 |
引渡可能時期 |
指定有り2026年2月28日 |
物件番号 |
6987083677 |
|
|
情報公開日 |
2025年7月21日 |
次回更新予定日 |
2025年10月23日 |
ケータイ用バーコード |
- スマートフォンでこの物件を見る
- スマートフォンからもこの物件をご覧になれます。
|
※「-」と表示されている項目については、情報提供会社にご確認ください。
周辺施設 |
ツルハドラッグ原町牛越店 |
距離 |
424m |
周辺施設 |
南相馬市立石神第二小学校 |
距離 |
1064m |
周辺施設 |
南相馬市立石神第二幼稚園 |
距離 |
1180m |
周辺施設 |
南相馬市立原町なかまち保育園 |
距離 |
1230m |
ここから簡単にお問い合わせをすることができます。
(SSLでの暗号化での送信を希望されるお客さまは
こちら
よりお問い合わせください)
お問い合わせを行う前に
「個人情報の取り扱いについて」を必ずお読みください。
「個人情報の取り扱いについて」に同意いただいた場合は「上記にご同意の上 確認画面へ進む」のボタンをクリックしてください。
個人情報の取り扱いについて
皆さまが送付された個人情報はアットホーム(株)のサーバを経由し、お問い合わせ先の不動産会社にメールまたはFAXにて転送されるためアットホーム(株)にも保管されます。アットホーム(株)で保管された個人情報の取り扱いについては、【こちら】をご覧ください。
また、本画面でご記入いただいた個人情報は、お問い合わせ先の不動産会社でも保管します。 お問い合わせ先の不動産会社が保管する個人情報の取り扱いについては、不動産会社に直接お問い合わせください。
福島県知事免許(1)第3494号 |
---|
- 交通:
- JR常磐線/小高駅
- 福島県南相馬市小高区大井字松崎150
- TEL:
- 0244-26-9985
- FAX:
- 0244-26-9986
- 所属団体:
- (公社)全日本不動産協会会員東北地区不動産公正取引協議会加盟
取引態様:売主  - 20006413
|
- スマートフォンで
この不動産会社を見る

|
- 提携サイト等より掲載されている物件情報につきましては、不動産会社詳細情報にリンクされていないものがあります。
- 物件に関するお問合せは、物件詳細ページの「情報提供会社」に表示されている不動産会社へ直接お願いいたします。
- 間取図は、現況を優先させていただきます。
- 映像は物件の一部を撮影したものです。物件の契約にあたっての最終判断はご自身の判断に基づいて行ってください。
- 仲介手数料について

アットホームは物件情報の適正化に努めております。
内容に誤りがある場合にはこちらへご連絡ください。