埼玉県入間市大字野田(仏子駅)の一戸建て:物件詳細
交通 所在地 |
駅徒歩 |
価格 |
間取り 建物面積 |
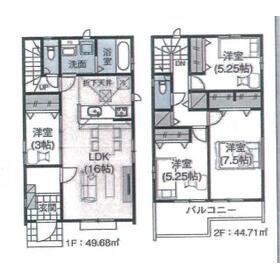
土地面積 私道負担面積 |
物件種目 築年月 |
|
西武池袋線/仏子
埼玉県入間市大字野田
|
15分
|
2,980万円
|
4LDK
94.39m²
|
119.74m²
-
|
新築一戸建て
2025年12月
|
|
駐車場2台分、全室2面採光、2面採光、設計住宅性能評価書あり
|
|
間取図
|
|
その他の画像
|
| 交通 | 西武池袋線 仏子駅 徒歩15分 |
| 所在地 |
埼玉県入間市大字野田
|
| 物件種目 |
新築一戸建て |
| 価格 |
2,980万円 |
借地期間・地代(月額) |
- |
| 権利金 |
- |
敷金または保証金 |
- / - |
| 維持費等 |
- |
その他一時金 |
- |
| 間取り |
4LDK |
建物面積 |
94.39m² |
| 土地権利 |
所有権 |
建物構造 |
木造 |
| 土地面積 |
119.74m²(公簿) |
私道負担面積 |
- |
| 築年月 |
2025年12月
|
都市計画 |
市街化区域 |
| 建物名 |
グラファーレ入間市野田10期 |
建築確認番号 |
第HPA-25-02638-1号 |
| 用途地域 |
2種住居、1種住居 |
駐車場 |
- |
| 建ぺい率 |
60% |
容積率 |
200% |
| 階建 |
2階建 |
接道状況 |
南東 4.0m 公道
|
| 地目 |
宅地 |
地勢 |
- |
| 国土法届出 |
- |
セットバック |
- |
| アピールポイント |
配膳がラクなカウンターキッチン付、更にお鍋とフライパンを使いながらヤカンもおけるコンロ3口以上の仕様なので、進行ペースがスピードアップ。また鏡面保護シールが初々しい新築の建物で、その上設計住宅性能評価書有なので、各基準ごとに明確な性能表示がされています。ちなみに底冷えのない浴室暖房採用です。家族が帰宅を焦がれる3LDK。是非見学にお越しください。 |
| リフォーム履歴 |
- |
| リノベーション履歴 |
- |
| 瑕疵保証 |
- |
| 瑕疵保険 |
- |
| 評価・証明書 |
- |
| 備考 |
主要採光面:南東向き
号棟番号:4号棟
|
| エネルギー消費性能 |
- |
| 断熱性能 |
- |
| 目安光熱費 |
- |
| バス・トイレ |
浴室暖房、浴室乾燥機、追焚機能、シャワー付洗面化粧台、温水洗浄便座、トイレ2ヶ所、浴室に窓あり |
| キッチン |
カウンターキッチン、浄水器、3口以上コンロ、グリル |
| 設備・サービス |
全居室収納、ウォークインクローゼット、シューズインクローゼット、クローゼット、床下収納、モニター付インターホン、ディンプルキー、ダブルロックドア、全居室フローリング、上水道、下水道、プロパンガス、電気、複層ガラス |
| その他 |
- |
| 現況 |
建築中 |
引渡可能時期 |
相談 |
| 物件番号 |
6987119573 |
|
|
| 情報公開日 |
2025年7月25日 |
次回更新予定日 |
2025年12月27日 |
| ケータイ用バーコード |
- スマートフォンでこの物件を見る
- スマートフォンからもこの物件をご覧になれます。
|
※「-」と表示されている項目については、情報提供会社にご確認ください。
| 周辺施設 |
ファミリーマート入間野田店 |
| 距離 |
274m |
ここから簡単にお問い合わせをすることができます。
(SSLでの暗号化での送信を希望されるお客さまは
こちら
よりお問い合わせください)
お問い合わせを行う前に
「個人情報の取り扱いについて」を必ずお読みください。
「個人情報の取り扱いについて」に同意いただいた場合は「上記にご同意の上 確認画面へ進む」のボタンをクリックしてください。
個人情報の取り扱いについて
皆さまが送付された個人情報はアットホーム(株)のサーバを経由し、お問い合わせ先の不動産会社にメールまたはFAXにて転送されるためアットホーム(株)にも保管されます。アットホーム(株)で保管された個人情報の取り扱いについては、【こちら】をご覧ください。
また、本画面でご記入いただいた個人情報は、お問い合わせ先の不動産会社でも保管します。 お問い合わせ先の不動産会社が保管する個人情報の取り扱いについては、不動産会社に直接お問い合わせください。
国土交通大臣免許(2)第9420号 |
|---|
- 交通:
- 西武池袋線/飯能駅 【バス】3分 ひかり橋 停歩2分
- 埼玉県飯能市美杉台3丁目16-6
- TEL:
- 042-980-7377
- FAX:
- 042-980-7378
- 所属団体:
- (公社)埼玉県宅地建物取引業協会会員(公社)首都圏不動産公正取引協議会加盟
取引態様:媒介  - 00986611
|
- スマートフォンで
この不動産会社を見る

|
- 提携サイト等より掲載されている物件情報につきましては、不動産会社詳細情報にリンクされていないものがあります。
- 物件に関するお問合せは、物件詳細ページの「情報提供会社」に表示されている不動産会社へ直接お願いいたします。
- 間取図は、現況を優先させていただきます。
- 映像は物件の一部を撮影したものです。物件の契約にあたっての最終判断はご自身の判断に基づいて行ってください。
- 仲介手数料について

アットホームは物件情報の適正化に努めております。
内容に誤りがある場合にはこちらへご連絡ください。