福島県双葉郡富岡町桜1丁目(夜ノ森駅)の一戸建て:物件詳細
交通 所在地 |
駅徒歩 |
価格 |
間取り 建物面積 |
土地面積 私道負担面積 |
物件種目 築年月 |
|
JR常磐線/夜ノ森
福島県双葉郡富岡町桜1丁目
|
13分
|
1,880万円
|
5LDK
178.04m²
|
867.00m²
-
|
中古一戸建て
2001年1月(築25年3ヶ月)
|
|
駐車場3台分以上、南向き、前面棟無、隣接建物距離2m以上
|
|
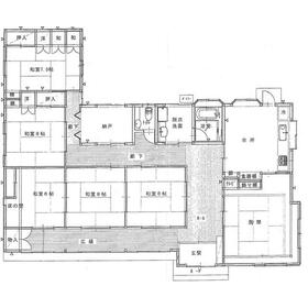
間取図
|
|
<
その他の画像
>
|
| 交通 | JR常磐線 夜ノ森駅 徒歩13分 |
| 所在地 |
福島県双葉郡富岡町桜1丁目
|
| 物件種目 |
中古一戸建て |
| 価格 |
1,880万円 |
借地期間・地代(月額) |
- |
| 権利金 |
- |
敷金または保証金 |
- / - |
| 維持費等 |
- |
その他一時金 |
- |
| 間取り |
5LDK(和 8・8・6・8・7.5 LDK 20) |
建物面積 |
178.04m² |
| 土地権利 |
所有権 |
建物構造 |
木造 |
| 土地面積 |
867.00m²(公簿) |
私道負担面積 |
- |
| 築年月 |
2001年1月(築25年3ヶ月)
|
都市計画 |
非線引区域 |
| 建物名 |
富岡町土地付売中古平家建住宅 |
建築確認番号 |
- |
| 用途地域 |
2種低層 |
駐車場 |
有 無料 |
| 建ぺい率 |
50% |
容積率 |
100% |
| 階建 |
平屋建 |
接道状況 |
南 6.0m 公道 接面19.4m
|
| 地目 |
宅地 |
地勢 |
平坦 |
| 国土法届出 |
- |
セットバック |
- |
| アピールポイント |
家族それぞれで車を所有したいときに便利な駐車場3台分だから、身内や友人グループを気軽に呼ぶことができます。また広々とした延床面積178.04㎡の居室空間で、その上南向なので、陽が出ている時間が短い冬でも暖かさキープ。ちなみにプライバシーが気になる方にはおすすめの前面に棟が無い住居です。家族の物語が生まれる5SLDK。是非その目でお確かめください。 |
| リフォーム履歴 |
- |
| リノベーション履歴 |
- |
| 瑕疵保証 |
- |
| 瑕疵保険 |
- |
| 評価・証明書 |
- |
| 備考 |
主要採光面:南向き
|
| エネルギー消費性能 |
- |
| 断熱性能 |
- |
| 目安光熱費 |
- |
| バス・トイレ |
追焚機能、温水洗浄便座 |
| キッチン |
3口以上コンロ |
| 設備・サービス |
クローゼット、上水道、下水道、プロパンガス、エアコン、照明器具 |
| その他 |
- |
| 現況 |
空家 |
引渡可能時期 |
相談 |
| 物件番号 |
6987252026 |
|
|
| 情報公開日 |
2025年8月8日 |
次回更新予定日 |
2026年3月25日 |
| ケータイ用バーコード |
- スマートフォンでこの物件を見る
- スマートフォンからもこの物件をご覧になれます。
|
※「-」と表示されている項目については、情報提供会社にご確認ください。
| 周辺施設 |
富岡町立にこにここども園 |
| 距離 |
4600m |
ここから簡単にお問い合わせをすることができます。
(SSLでの暗号化での送信を希望されるお客さまは
こちら
よりお問い合わせください)
お問い合わせを行う前に
「個人情報の取り扱いについて」を必ずお読みください。
「個人情報の取り扱いについて」に同意いただいた場合は「上記にご同意の上 確認画面へ進む」のボタンをクリックしてください。
個人情報の取り扱いについて
皆さまが送付された個人情報はアットホーム(株)のサーバを経由し、お問い合わせ先の不動産会社にメールまたはFAXにて転送されるためアットホーム(株)にも保管されます。アットホーム(株)で保管された個人情報の取り扱いについては、【こちら】をご覧ください。
また、本画面でご記入いただいた個人情報は、お問い合わせ先の不動産会社でも保管します。 お問い合わせ先の不動産会社が保管する個人情報の取り扱いについては、不動産会社に直接お問い合わせください。
福島県知事免許(6)第2205号 |
|---|
- 交通:
- JR常磐線/富岡駅 徒歩25分
- 福島県双葉郡富岡町大字小浜字大膳町2-1
- TEL:
- 0240-22-8212
- 所属団体:
- (公社)福島県宅地建物取引業協会会員東北地区不動産公正取引協議会加盟
取引態様:媒介  - 20003933
|
- スマートフォンで
この不動産会社を見る

|
- 提携サイト等より掲載されている物件情報につきましては、不動産会社詳細情報にリンクされていないものがあります。
- 物件に関するお問合せは、物件詳細ページの「情報提供会社」に表示されている不動産会社へ直接お願いいたします。
- 間取図は、現況を優先させていただきます。
- 映像は物件の一部を撮影したものです。物件の契約にあたっての最終判断はご自身の判断に基づいて行ってください。
- 仲介手数料について

アットホームは物件情報の適正化に努めております。
内容に誤りがある場合にはこちらへご連絡ください。