東京都葛飾区細田3丁目(京成高砂駅)の一戸建て:物件詳細
交通 所在地 |
駅徒歩 |
価格 |
間取り 建物面積 |
土地面積 私道負担面積 |
物件種目 築年月 |
|
京成本線/京成高砂
東京都葛飾区細田3丁目
|
16分
|
3,980万円
|
3DK
64.99m²
|
65.61m²
なし
|
中古一戸建て
2012年3月(築13年8ヶ月)
|
|
南向き、バス1坪以上、閑静な住宅街
|
|
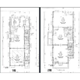
間取図
|
外観
|
<
その他の画像
>
|
| 交通 | 京成本線 京成高砂駅 徒歩16分 |
|---|
| その他の交通 | 京成金町線 京成高砂駅 徒歩16分 成田スカイアクセス 京成高砂駅 徒歩16分 |
| 所在地 |
東京都葛飾区細田3丁目
|
| 物件種目 |
中古一戸建て |
| 価格 |
3,980万円 |
借地期間・地代(月額) |
- |
| 権利金 |
- |
敷金または保証金 |
- / - |
| 維持費等 |
- |
その他一時金 |
- |
| 間取り |
3DK |
建物面積 |
64.99m² |
| 土地権利 |
所有権 |
建物構造 |
木造 |
| 土地面積 |
65.61m²(公簿) |
私道負担面積 |
なし |
| 築年月 |
2012年3月(築13年8ヶ月)
|
都市計画 |
市街化区域 |
| 建物名 |
葛飾区細田3丁目 中古戸建 |
建築確認番号 |
- |
| 用途地域 |
2種低層 |
駐車場 |
有 無料 |
| 建ぺい率 |
50% |
容積率 |
150% |
| 階建 |
2階建 |
接道状況 |
南 7.2m
|
| 地目 |
宅地 |
地勢 |
平坦 |
| 国土法届出 |
- |
セットバック |
- |
| アピールポイント |
閑静な住宅街の住戸、更に南向なので、陽が出ている時間が短い冬でも暖かさキープ。また無駄のない造りのシステムキッチンで、その上夕食を作りながら翌日のお弁当も作れるコンロ3口以上の仕様なので、晩ごはんの支度と翌日の弁当準備ができます。ちなみにお風呂準備はおまかせのオートバス付です。家族の安心拠点になる3LDK。ご案内いたしますのでお気軽にご連絡ください。 |
| リフォーム履歴 |
- |
| リノベーション履歴 |
- |
| 瑕疵保証 |
- |
| 瑕疵保険 |
- |
| 評価・証明書 |
- |
| 備考 |
主要採光面:南向き
|
| エネルギー消費性能 |
- |
| 断熱性能 |
- |
| 目安光熱費 |
- |
| バス・トイレ |
オートバス、追焚機能、温水洗浄便座、トイレ2ヶ所、浴室に窓あり |
| キッチン |
システムキッチン、3口以上コンロ |
| 設備・サービス |
床暖房、クローゼット、モニター付インターホン、全居室フローリング、上水道、下水道、都市ガス、電気、照明器具 |
| その他 |
- |
| 現況 |
空家 |
引渡可能時期 |
相談 |
| 物件番号 |
6987283431 |
|
|
| 情報公開日 |
2025年8月9日 |
次回更新予定日 |
2025年11月6日 |
| ケータイ用バーコード |
- スマートフォンでこの物件を見る
- スマートフォンからもこの物件をご覧になれます。
|
※「-」と表示されている項目については、情報提供会社にご確認ください。
| 周辺施設 |
セブンイレブン葛飾細田1丁目店 |
| 距離 |
114m |
ここから簡単にお問い合わせをすることができます。
(SSLでの暗号化での送信を希望されるお客さまは
こちら
よりお問い合わせください)
お問い合わせを行う前に
「個人情報の取り扱いについて」を必ずお読みください。
「個人情報の取り扱いについて」に同意いただいた場合は「上記にご同意の上 確認画面へ進む」のボタンをクリックしてください。
個人情報の取り扱いについて
皆さまが送付された個人情報はアットホーム(株)のサーバを経由し、お問い合わせ先の不動産会社にメールまたはFAXにて転送されるためアットホーム(株)にも保管されます。アットホーム(株)で保管された個人情報の取り扱いについては、【こちら】をご覧ください。
また、本画面でご記入いただいた個人情報は、お問い合わせ先の不動産会社でも保管します。 お問い合わせ先の不動産会社が保管する個人情報の取り扱いについては、不動産会社に直接お問い合わせください。
東京都知事免許(2)第103124号 |
|---|
- 交通:
- JR総武本線/新小岩駅 徒歩3分
- 東京都葛飾区新小岩2丁目9-14 栄ビル3階
- TEL:
- 03-6231-5314
- FAX:
- 03-6231-5315
- 所属団体:
- (公社)全日本不動産協会会員(公社)首都圏不動産公正取引協議会加盟
取引態様:専任媒介  - 00266027
|
- スマートフォンで
この不動産会社を見る

|
- 提携サイト等より掲載されている物件情報につきましては、不動産会社詳細情報にリンクされていないものがあります。
- 物件に関するお問合せは、物件詳細ページの「情報提供会社」に表示されている不動産会社へ直接お願いいたします。
- 間取図は、現況を優先させていただきます。
- 映像は物件の一部を撮影したものです。物件の契約にあたっての最終判断はご自身の判断に基づいて行ってください。
- 仲介手数料について

アットホームは物件情報の適正化に努めております。
内容に誤りがある場合にはこちらへご連絡ください。