栃木県栃木市惣社町(野州大塚駅)の一戸建て:物件詳細
交通 所在地 |
駅徒歩 |
価格 |
間取り 建物面積 |
土地面積 私道負担面積 |
物件種目 築年月 |
|
東武宇都宮線/野州大塚
栃木県栃木市惣社町
|
19分
|
1,800万円
|
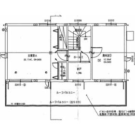
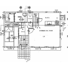
3SLDK
103.63m²
|
222.06m²
なし
|
中古一戸建て
2008年9月(築17年2ヶ月)
|
|
駐車場3台分以上、南向き、バス1坪以上、オール電化、整形地、前面棟無、分譲地内
|
|
間取図
|
間取図
|
<
その他の画像
>
|
| 交通 | 東武宇都宮線 野州大塚駅 徒歩19分 |
| 所在地 |
栃木県栃木市惣社町
|
| 物件種目 |
中古一戸建て |
| 価格 |
1,800万円 |
借地期間・地代(月額) |
- |
| 権利金 |
- |
敷金または保証金 |
- / - |
| 維持費等 |
- |
その他一時金 |
- |
| 間取り |
3SLDK(和 6 洋 12・7.5 LDK 18 S 1.8) |
建物面積 |
103.63m² |
| 土地権利 |
所有権 |
建物構造 |
軽量鉄骨造 |
| 土地面積 |
222.06m²(公簿) |
私道負担面積 |
なし |
| 築年月 |
2008年9月(築17年2ヶ月)
|
都市計画 |
調整区域 |
| 建物名 |
|
建築確認番号 |
- |
| 用途地域 |
無指定 |
駐車場 |
- |
| 建ぺい率 |
60% |
容積率 |
200% |
| 階建 |
2階建 |
接道状況 |
南 6.0m 公道 接面13.0m
|
| 地目 |
宅地 |
地勢 |
- |
| 国土法届出 |
- |
セットバック |
- |
| リフォーム履歴 |
- |
| リノベーション履歴 |
- |
| 瑕疵保証 |
- |
| 瑕疵保険 |
- |
| 評価・証明書 |
- |
| 備考 |
主要採光面:南向き
|
| エネルギー消費性能 |
- |
| 断熱性能 |
- |
| 目安光熱費 |
- |
| バス・トイレ |
追焚機能、シャワー付洗面化粧台、温水洗浄便座、浴室に窓あり |
| キッチン |
システムキッチン、食器洗浄乾燥機、IHクッキングヒーター、3口以上コンロ |
| 設備・サービス |
全居室収納、エアコン2台以上、シューズインクローゼット、クローゼット、床下収納、モニター付インターホン、浄化槽、室内物干し、上水道、庭、ワイドバルコニー、照明器具、火災警報器(報知機) |
| その他 |
- |
| 現況 |
空家 |
引渡可能時期 |
即時 |
| 物件番号 |
6987319373 |
仲介手数料 |
66万円 |
| 情報公開日 |
2025年8月15日 |
次回更新予定日 |
2025年11月7日 |
| ケータイ用バーコード |
- スマートフォンでこの物件を見る
- スマートフォンからもこの物件をご覧になれます。
|
※「-」と表示されている項目については、情報提供会社にご確認ください。
| 周辺施設 |
セブンイレブン栃木惣社町店 |
| 距離 |
1054m |
| 周辺施設 |
ローソン壬生町壬生乙店 |
| 距離 |
1640m |
| 周辺施設 |
ファミリーマートベツイ栃木大塚店 |
| 距離 |
1786m |
ここから簡単にお問い合わせをすることができます。
(SSLでの暗号化での送信を希望されるお客さまは
こちら
よりお問い合わせください)
お問い合わせを行う前に
「個人情報の取り扱いについて」を必ずお読みください。
「個人情報の取り扱いについて」に同意いただいた場合は「上記にご同意の上 確認画面へ進む」のボタンをクリックしてください。
個人情報の取り扱いについて
皆さまが送付された個人情報はアットホーム(株)のサーバを経由し、お問い合わせ先の不動産会社にメールまたはFAXにて転送されるためアットホーム(株)にも保管されます。アットホーム(株)で保管された個人情報の取り扱いについては、【こちら】をご覧ください。
また、本画面でご記入いただいた個人情報は、お問い合わせ先の不動産会社でも保管します。 お問い合わせ先の不動産会社が保管する個人情報の取り扱いについては、不動産会社に直接お問い合わせください。
栃木県知事免許(2)第5167号 |
|---|
- 交通:
- JR東北本線/宇都宮駅
- 栃木県宇都宮市竹林町331-12 NAKANO壱番館103
- TEL:
- 028-666-4171
- FAX:
- 028-666-4172
- 所属団体:
- (公社)栃木県宅地建物取引業協会会員(公社)首都圏不動産公正取引協議会加盟
取引態様:専任媒介  - 00266630
|
- スマートフォンで
この不動産会社を見る

|
- 提携サイト等より掲載されている物件情報につきましては、不動産会社詳細情報にリンクされていないものがあります。
- 物件に関するお問合せは、物件詳細ページの「情報提供会社」に表示されている不動産会社へ直接お願いいたします。
- 間取図は、現況を優先させていただきます。
- 映像は物件の一部を撮影したものです。物件の契約にあたっての最終判断はご自身の判断に基づいて行ってください。
- 仲介手数料について

アットホームは物件情報の適正化に努めております。
内容に誤りがある場合にはこちらへご連絡ください。