千葉県柏市新富町2丁目(南柏駅)の一戸建て:物件詳細
交通 所在地 |
駅徒歩 |
価格 |
間取り 建物面積 |
土地面積 私道負担面積 |
物件種目 築年月 |
|
JR千代田・常磐緩行線/南柏
千葉県柏市新富町2丁目
|
15分
|
5,980万円
|
4LDK
207.36m²
|
244.62m²
-
|
中古一戸建て
1993年1月(築33年5ヶ月)
|
|
駐車場2台分、南向き
|
|
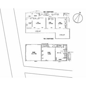
間取図
|
|
その他の画像
|
| 交通 | JR千代田・常磐緩行線 南柏駅 徒歩15分 |
| 所在地 |
千葉県柏市新富町2丁目
|
| 物件種目 |
中古一戸建て |
| 価格 |
5,980万円 |
借地期間・地代(月額) |
- |
| 権利金 |
- |
敷金または保証金 |
- / - |
| 維持費等 |
- |
その他一時金 |
- |
| 間取り |
4LDK(和 9.6 洋 18・8.7) |
建物面積 |
207.36m² |
| 土地権利 |
所有権 |
建物構造 |
鉄骨造 |
| 土地面積 |
244.62m²(公簿) |
私道負担面積 |
- |
| 築年月 |
1993年1月(築33年5ヶ月)
|
都市計画 |
市街化区域 |
| 建物名 |
柏市新富町2丁目 売家 |
建築確認番号 |
- |
| 用途地域 |
1種住居 |
駐車場 |
- |
| 建ぺい率 |
60% |
容積率 |
200% |
| 階建 |
2階建 |
接道状況 |
西 8.0m 公道
・ 南 4.0m 私道
・ 二方道路
|
| 地目 |
宅地 |
地勢 |
- |
| 国土法届出 |
- |
セットバック |
- |
| アピールポイント |
大型ガレージ有 |
| リフォーム履歴 |
■内装:2013年2月 内装全面(床・壁・天井・建具) ※実施年月は最も古い履歴を表示 |
| リノベーション履歴 |
- |
| 瑕疵保証 |
- |
| 瑕疵保険 |
- |
| 評価・証明書 |
- |
| 備考 |
主要採光面:南向き
鉄骨2階建 1階103.68㎡ 2階103.68㎡ 計207.36㎡
用途指定 市街化区域 第一種住居地域 第一種高度地区 角地
|
| エネルギー消費性能 |
- |
| 断熱性能 |
- |
| 目安光熱費 |
- |
| バス・トイレ |
トイレ2ヶ所 |
| キッチン |
- |
| 設備・サービス |
全居室収納、クローゼット、都市ガス |
| その他 |
- |
| 現況 |
所有者居住中 |
引渡可能時期 |
相談 |
| 物件番号 |
6987369474 |
|
|
| 情報公開日 |
2025年8月22日 |
次回更新予定日 |
2026年5月19日 |
| ケータイ用バーコード |
- スマートフォンでこの物件を見る
- スマートフォンからもこの物件をご覧になれます。
|
※「-」と表示されている項目については、情報提供会社にご確認ください。
| 周辺施設 |
ファミリーマート柏新富町店 |
| 距離 |
376m |
| 周辺施設 |
apris KEIHOKU |
| 距離 |
975m |
ここから簡単にお問い合わせをすることができます。
(SSLでの暗号化での送信を希望されるお客さまは
こちら
よりお問い合わせください)
お問い合わせを行う前に
「個人情報の取り扱いについて」を必ずお読みください。
「個人情報の取り扱いについて」に同意いただいた場合は「上記にご同意の上 確認画面へ進む」のボタンをクリックしてください。
個人情報の取り扱いについて
皆さまが送付された個人情報はアットホーム(株)のサーバを経由し、お問い合わせ先の不動産会社にメールまたはFAXにて転送されるためアットホーム(株)にも保管されます。アットホーム(株)で保管された個人情報の取り扱いについては、【こちら】をご覧ください。
また、本画面でご記入いただいた個人情報は、お問い合わせ先の不動産会社でも保管します。 お問い合わせ先の不動産会社が保管する個人情報の取り扱いについては、不動産会社に直接お問い合わせください。
東京都知事免許(11)第42450号 |
|---|
- 交通:
- 都営浅草線/東銀座駅 徒歩1分
- 東京都中央区銀座3丁目11-7
- TEL:
- 03-3545-1466
- FAX:
- 03-3546-3860
- 所属団体:
- (公社)東京都宅地建物取引業協会会員(公社)首都圏不動産公正取引協議会加盟
取引態様:専任媒介  - 00710226
|
- スマートフォンで
この不動産会社を見る

|
- 提携サイト等より掲載されている物件情報につきましては、不動産会社詳細情報にリンクされていないものがあります。
- 物件に関するお問合せは、物件詳細ページの「情報提供会社」に表示されている不動産会社へ直接お願いいたします。
- 間取図は、現況を優先させていただきます。
- 映像は物件の一部を撮影したものです。物件の契約にあたっての最終判断はご自身の判断に基づいて行ってください。
- 仲介手数料について

アットホームは物件情報の適正化に努めております。
内容に誤りがある場合にはこちらへご連絡ください。