福井県福井市大宮6丁目(日華化学前駅)の一戸建て:物件詳細
交通 所在地 |
駅徒歩 |
価格 |
間取り 建物面積 |
土地面積 私道負担面積 |
物件種目 築年月 |
えちぜん鉄道三国線/日華化学前
福井県福井市大宮6丁目
|
7分
|
3,690万円
|
3LDK
99.36m²
|
179.23m²
なし
|
新築一戸建て
2026年2月
|
駐車場3台分以上、外断熱、高気密高断熱住宅、外壁サイディング、バス1坪以上、24時間換気システム、閑静な住宅街、オール電化、整形地
|
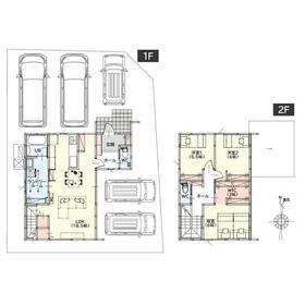
間取図
|
外観
【A棟:右】外観予想図
|
<
その他の画像
>
|
交通 | えちぜん鉄道三国線 日華化学前駅 徒歩7分 |
---|
その他の交通 | えちぜん鉄道三国線 八ツ島駅 徒歩13分 福井鉄道福武線 田原町駅 徒歩26分 |
所在地 |
福井県福井市大宮6丁目
|
物件種目 |
新築一戸建て |
価格 |
3,690万円 |
借地期間・地代(月額) |
- |
権利金 |
- |
敷金または保証金 |
- / - |
維持費等 |
- |
その他一時金 |
- |
間取り |
3LDK(洋 6・6・5.5 LDK 18.5) |
建物面積 |
99.36m² |
土地権利 |
所有権 |
建物構造 |
木造 |
土地面積 |
179.23m²(実測) |
私道負担面積 |
なし |
築年月 |
2026年2月
|
都市計画 |
市街化区域 |
建物名 |
|
建築確認番号 |
第R07確認建築福井住セ00272号 |
用途地域 |
1種低層 |
駐車場 |
- |
建ぺい率 |
60% |
容積率 |
80% |
階建 |
2階建 |
接道状況 |
北 6.0m 公道 接面9.1m
・ 東 10.0m 公道 接面13.4m
・ 二方道路
|
地目 |
宅地 |
地勢 |
平坦 |
国土法届出 |
- |
セットバック |
- |
アピールポイント |
【エアコン2台付き】
【早期成約特典(本体価格20万円引き)】
【子育てグリーン住宅支援事業補助金40万円利用可能】
福井市大宮6丁目に誕生する新築分譲住宅。
日新小学校まで徒歩4分(約260m)の立地で、子育て世帯にうれしい環境です。
藤島通り・芦原街道へのアクセスも良く、スーパーやドラッグストアも揃う暮らしやすい住環境。
北東角地の開放感と、閑静な街並みの落ち着きも魅力です。
外観は落ち着いたグレイッシュカラーを基調に、ホワイトを効かせたアーバンモダンスタイル。シンプルながら洗練された存在感を放ち、街並みに調和しつつ目を引く佇まいです。
間取りは3LDK。18.5帖のゆとりあるLDKを中心に、水回りをまとめた効率的な家事動線や、天候を気にせず使える大型ランドリールーム、さらにオープンクロークなど豊富な収納計画で暮らしをスマートに。
リビングにはタイル張りのアクセントウォールを採用。光の加減で表情を変える質感が、落ち着きと高級感を演出し、日々を豊かに彩ります。
断熱性能等級:等級6
耐震等級:等級3相当
建物保証:10年保証
地盤保証:20年保証
しろあり保証:10年保証 |
リフォーム履歴 |
- |
リノベーション履歴 |
- |
瑕疵保証 |
- |
瑕疵保険 |
- |
評価・証明書 |
- |
備考 |
主要採光面:東向き
工事完了予定日:2026年2月
施工会社:株式会社リビングスペース
設備保証利用可
BELS/省エネ基準適合認定
|
エネルギー消費性能 |
★★★★(削減率30%達成) |
断熱性能 |
6段階/7段階中 |
目安光熱費 |
- |
バス・トイレ |
浴室暖房、浴室乾燥機、オートバス、追焚機能、シャワー付洗面化粧台、温水洗浄便座、タンクレストイレ、トイレ2ヶ所 |
キッチン |
カウンターキッチン、システムキッチン、食器洗浄乾燥機、IHクッキングヒーター |
設備・サービス |
全居室収納、ウォークインクローゼット、EV車充電設備、エアコン2台以上、クローゼット、モニター付インターホン、ディンプルキー、ダブルロックドア、省エネ給湯器、全居室フローリング、室内物干し、クッションフロア、上水道、下水道、電気、エアコン、庭、サンルーム、人感センサー付照明、ダウンライト、照明器具、火災警報器(報知機)、複層ガラス、Low-E ガラス |
その他 |
- |
現況 |
建築中 |
引渡可能時期 |
相談 |
物件番号 |
6987423395 |
仲介手数料 |
不要 |
情報公開日 |
2025年8月25日 |
次回更新予定日 |
2025年10月28日 |
ケータイ用バーコード |
- スマートフォンでこの物件を見る
- スマートフォンからもこの物件をご覧になれます。
|
※「-」と表示されている項目については、情報提供会社にご確認ください。
周辺施設 |
霊泉寺学園 花園幼稚園 |
距離 |
300m |
写真を見る |
周辺施設 |
福井市立西藤島保育園 |
距離 |
850m |
写真を見る |
周辺施設 |
ハニー食彩館大宮店 |
距離 |
500m |
写真を見る |
周辺施設 |
スギドラッグ堀ノ宮店 |
距離 |
450m |
写真を見る |
周辺施設 |
ファミリーマート福井文京六丁目店 |
距離 |
600m |
写真を見る |
ここから簡単にお問い合わせをすることができます。
(SSLでの暗号化での送信を希望されるお客さまは
こちら
よりお問い合わせください)
お問い合わせを行う前に
「個人情報の取り扱いについて」を必ずお読みください。
「個人情報の取り扱いについて」に同意いただいた場合は「上記にご同意の上 確認画面へ進む」のボタンをクリックしてください。
個人情報の取り扱いについて
皆さまが送付された個人情報はアットホーム(株)のサーバを経由し、お問い合わせ先の不動産会社にメールまたはFAXにて転送されるためアットホーム(株)にも保管されます。アットホーム(株)で保管された個人情報の取り扱いについては、【こちら】をご覧ください。
また、本画面でご記入いただいた個人情報は、お問い合わせ先の不動産会社でも保管します。 お問い合わせ先の不動産会社が保管する個人情報の取り扱いについては、不動産会社に直接お問い合わせください。
国土交通大臣免許(2)第9771号 |
---|
- 交通:
- えちぜん鉄道勝山線/東藤島駅 徒歩19分
- 福井県福井市堂島町8-23-1
- TEL:
- 0776-52-8885
- FAX:
- 0776-52-3382
- 所属団体:
- (公社)全日本不動産協会会員北陸不動産公正取引協議会加盟
取引態様:売主  - 40406291
|
- スマートフォンで
この不動産会社を見る

|
- 提携サイト等より掲載されている物件情報につきましては、不動産会社詳細情報にリンクされていないものがあります。
- 物件に関するお問合せは、物件詳細ページの「情報提供会社」に表示されている不動産会社へ直接お願いいたします。
- 間取図は、現況を優先させていただきます。
- 映像は物件の一部を撮影したものです。物件の契約にあたっての最終判断はご自身の判断に基づいて行ってください。
- 仲介手数料について

アットホームは物件情報の適正化に努めております。
内容に誤りがある場合にはこちらへご連絡ください。