不動産 賃貸 マンション等の住宅情報:埼玉住まい情報


千葉県茂原市下永吉(茂原駅)の一戸建て:物件詳細

  • 物件詳細
  • 情報の見方
  • 印刷用画面
交通
所在地
駅徒歩 価格 間取り
建物面積
土地面積
私道負担面積
物件種目
築年月

JR外房線/茂原

千葉県茂原市下永吉

3500m

190万円

3DK

64.08m²

429.75m²

中古一戸建て

1972年4月(築53年7ヶ月)

おすすめPOINT庭10坪以上

おすすめコメント

広いお庭の平屋建て♪ご自宅用としても投資用としても◎DIY好きの方♪

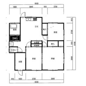
間取図

間取図

図面と現況が相違する場合現況優先とさせていただきます

その他の画像
    • とりあえず保存
    • お問い合わせ
    交通

    JR外房線 茂原駅 徒歩3500m

    所在地 千葉県茂原市下永吉
    物件種目 中古一戸建て
    価格 190万円 借地期間・地代(月額)
    権利金 敷金または保証金 - / -
    維持費等 その他一時金
    間取り 3DK 建物面積 64.08m²
    土地権利 所有権 建物構造 木造
    土地面積 429.75m²(公簿) 私道負担面積
    築年月 1972年4月(築53年7ヶ月) 都市計画
    建物名   建築確認番号
    用途地域 駐車場 有 無料
    建ぺい率 60% 容積率 200%
    階建 平屋建 接道状況 南 2.5m 公道 接面17.8m
    地目 地勢
    国土法届出 セットバック
    アピールポイント ///アピールポイント///


    安心の上水道♪

    リーズナブルな都市ガス♪

    公共下水道♪

    人気の平屋建て☆

    広いお庭でアウトドアをお楽しみいただけます!

    ご自宅用、別荘、投資用としてもご利用いただけます☆

    DIY好きな方に♪

    駐車スペース1台分♪
    リフォーム履歴
    リノベーション履歴
    瑕疵保証
    瑕疵保険
    評価・証明書
    備考
    利回り:31.57%
    年間予定賃料収入:60万円
    ※公簿売買※境界非明示※現況有姿※契約不適合責任免責※確認済証あり、検査済証なし※2024年浸水歴あり
    エネルギー消費性能
    断熱性能
    目安光熱費
    バス・トイレ 浴室に窓あり
    キッチン
    設備・サービス 全居室収納、上水道、下水道、都市ガス
    その他
    現況 空家 引渡可能時期 相談
    物件番号 6987439035    
    情報公開日 2025年10月4日 次回更新予定日 2025年11月1日
    ケータイ用バーコード

    QRコード

    スマートフォンでこの物件を見る
    スマートフォンからもこの物件をご覧になれます。
    ※「-」と表示されている項目については、情報提供会社にご確認ください。

    この物件の周辺情報

    周辺施設 カスミフードスクエア東茂原店
    距離 1653m
    周辺施設 セブンイレブン茂原下永吉店
    距離 478m
    周辺施設 セブンイレブン茂原永吉神社前店
    距離 965m
    周辺施設 ジョイフル茂原店
    距離 906m
    周辺施設 夢庵東茂原店
    距離 1480m
    周辺施設 すき家128号東茂原店
    距離 1604m
    周辺施設 ジョナサン東茂原店
    距離 1679m
    周辺施設 エネオス長生SS
    距離 1403m

    クイックお問い合わせ

    ここから簡単にお問い合わせをすることができます。
    (SSLでの暗号化での送信を希望されるお客さまは こちら よりお問い合わせください)

    お問い合わせ内容(必須)
    お名前(必須) 姓  名 
    メールアドレス(必須)
    ※携帯電話のメールアドレスをご入力される方はこちらをご確認ください
    電話番号(必須)
    - -

    ※入力いただいた電話番号へSMSまたは音声でパスワードをご連絡します。

    携帯電話の番号をご入力の方へ

    携帯電話の番号をご入力の方へ
    確認画面にて送信ボタンをクリックするとSMSが携帯電話に届きます。
    そのSMSに記載のパスワード(認証番号)を入力し、お問い合わせを完了してください。
    尚、SMSの送信者番号は 0005 202 760 となります。
    これはアットホームの固定番号です。

    備考欄 希望条件、物件案内希望日、質問などがございましたらご記入ください。
    お問い合わせを行う前に「個人情報の取り扱いについて」を必ずお読みください。
    「個人情報の取り扱いについて」に同意いただいた場合は「上記にご同意の上 確認画面へ進む」のボタンをクリックしてください。

    個人情報の取り扱いについて

    皆さまが送付された個人情報はアットホーム(株)のサーバを経由し、お問い合わせ先の不動産会社にメールまたはFAXにて転送されるためアットホーム(株)にも保管されます。アットホーム(株)で保管された個人情報の取り扱いについては、【こちら】をご覧ください。
    また、本画面でご記入いただいた個人情報は、お問い合わせ先の不動産会社でも保管します。 お問い合わせ先の不動産会社が保管する個人情報の取り扱いについては、不動産会社に直接お問い合わせください。

    情報提供会社

    情報提供会社

    (株)剛翔

    千葉県知事免許(1)第18032号

    交通:
    千葉都市モノレール/桜木駅 徒歩25分
    千葉県千葉市若葉区桜木1丁目16-11 
    TEL:
    043-497-4255
    FAX:
    043-497-4266
    所属団体:
    (一社)千葉県宅地建物取引業協会会員
    (公社)首都圏不動産公正取引協議会加盟

    取引態様:売主

    • 会社情報
    • 00271999
    スマートフォンで
    この不動産会社を見る
    QRコード
    • とりあえず保存
    • お問い合わせ
    • 提携サイト等より掲載されている物件情報につきましては、不動産会社詳細情報にリンクされていないものがあります。
    • 物件に関するお問合せは、物件詳細ページの「情報提供会社」に表示されている不動産会社へ直接お願いいたします。
    • 間取図は、現況を優先させていただきます。
    • 映像は物件の一部を撮影したものです。物件の契約にあたっての最終判断はご自身の判断に基づいて行ってください。
    • 仲介手数料について仲介手数料

    アットホームは物件情報の適正化に努めております。 内容に誤りがある場合にはこちらへご連絡ください。

    【埼玉住まい情報】では、日本全国の物件から賃貸マンションや賃貸アパート・賃貸一戸建て等の賃貸住宅情報、新築マンション・分譲マンションや中古マンション等の売買マンション情報、新築一戸建てや中古一戸建てなどの戸建住宅、 土地など、総合的な不動産住宅情報検索サービスを提供致します。
    【埼玉住まい情報】から、選りすぐりの不動産物件を探してみましょう。

    【免責事項】
    このコーナーの運営はアットホーム株式会社(https://www.athome.co.jp/)が行っています。
    このコーナーに掲載している物件情報は、「アットホーム不動産情報ネットワーク」に加盟する不動産会社等(情報提供元)から提供されています。信頼性の高い情報提供が行えるよう、最大限の努力をしておりますが、その内容を保証するものではありません。 利用者のみなさまと各情報提供元との取引に起因する損害および情報が掲載されたことに起因する損害等については、株式会社イーシティ埼玉、およびアットホームは一切責任を負いません。
    各物件情報の内容や画像等はすべて現況を優先させていただきます。
    お取引等(お取引の準備、資金調達等を含みます)の際には、内容や契約条件等について、各情報提供元より十分な説明を受け、ご自身でご確認の上、判断してください。
    このコーナーへの物件情報のご掲載、その他不動産業務ソリューション等についての不動産会社様のお問合せはこちらからお願いいたします。

    物件画像: