千葉県千葉市若葉区金親町(千城台駅)の一戸建て:物件詳細
交通 所在地 |
駅徒歩 |
価格 |
間取り 建物面積 |
土地面積 私道負担面積 |
物件種目 築年月 |
|
千葉都市モノレール/千城台
千葉県千葉市若葉区金親町
|
15分
|
3,499万円
|
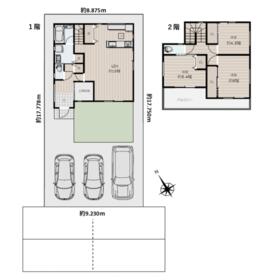
3LDK
93.56m²
|
165.32m²
なし
|
中古一戸建て
2021年2月(築4年11ヶ月)
|
|
駐車場2台分、駐車場3台分以上、外壁サイディング、バス1坪以上、全室2面採光、2面採光、24時間換気システム、バリアフリー、閑静な住宅街、区画整理地内、庭10坪以上、フラット35適合証明書あり、フラット35S適合証明書あり、分譲地内
|
|
間取図
嬉しいエアコン4台つき!
|
外観
耐震等級3相当!世界レベルの安心を備えたテクノストラクチャーのお家♪
|
<
その他の画像
>
|
|
|
| 交通 | 千葉都市モノレール 千城台駅 徒歩15分 |
|---|
| その他の交通 | 千葉都市モノレール 千城台北駅 徒歩23分 JR総武本線 千葉駅 【バス】 30分 千城台 停歩15分 |
| 所在地 |
千葉県千葉市若葉区金親町
|
| 物件種目 |
中古一戸建て |
| 価格 |
3,499万円 |
借地期間・地代(月額) |
- |
| 権利金 |
- |
敷金または保証金 |
- / - |
| 維持費等 |
- |
その他一時金 |
- |
| 間取り |
3LDK(洋 6・5.4・4.5 LDK 18) |
建物面積 |
93.56m² |
| 土地権利 |
所有権 |
建物構造 |
木造 |
| 土地面積 |
165.32m²(公簿) |
私道負担面積 |
なし |
| 築年月 |
2021年2月(築4年11ヶ月)
|
都市計画 |
調整区域 |
| 建物名 |
金親町 テクノストラクチャー 築浅戸建 |
建築確認番号 |
千建住第202519号 |
| 用途地域 |
- |
駐車場 |
無 |
| 建ぺい率 |
50% |
容積率 |
100% |
| 階建 |
2階建 |
接道状況 |
南西 6.0m 公道 接面9.2m
|
| 地目 |
宅地 |
地勢 |
平坦 |
| 国土法届出 |
- |
セットバック |
- |
| アピールポイント |
・建築基準法の1.5倍の『耐震等級3相当』地震がきても安心な耐震構造!
・テクノストラクチャーのお家
・高品質なパナソニック設備
・陽当り良好な南西向き
・並列駐車3台可能な広々した駐車場
・生活が豊かになる庭つき
・心強い「SECOMホームセキュリティ」設備設置 |
| リフォーム履歴 |
- |
| リノベーション履歴 |
- |
| 瑕疵保証 |
- |
| 瑕疵保険 |
- |
| 評価・証明書 |
■フラット35適合証明書 フラット35適合証明書あり 建物検査実施日:2021年03月12日 ■フラット35S適合証明書 フラット35S適合証明書あり 建物検査実施日:2021年03月12日 |
| 備考 |
主要採光面:南西向き
施工会社:株式会社アイキョーホーム
建築確認完了検査済証あり、新築時・増改築時の設計図書あり
・公簿売買、境界非明示
・契約不適合責任免責
・現況有姿にてお引渡し
・間取り図と相違があった場合は現況を優先
※写真は一部CG加工しております
|
| エネルギー消費性能 |
- |
| 断熱性能 |
- |
| 目安光熱費 |
- |
| バス・トイレ |
浴室暖房、浴室乾燥機、追焚機能、シャワールーム、温水洗浄便座、トイレ2ヶ所、浴室に窓あり |
| キッチン |
カウンターキッチン、システムキッチン、食器洗浄乾燥機、浄水器、3口以上コンロ、2口コンロ、グリル |
| 設備・サービス |
全居室収納、全居室エアコン、エアコン2台以上、シューズインクローゼット、クローゼット、床下収納、モニター付インターホン、ディンプルキー、ダブルロックドア、シャッター雨戸、浄化槽、省エネ給湯器、全居室フローリング、上水道、都市ガス、電気、側溝、エアコン、シーリングファン、庭、ワイドバルコニー、人感センサー付照明、ダウンライト、間接照明、照明器具、火災警報器(報知機)、インターネット対応、複層ガラス、Low-E ガラス |
| その他 |
- |
| 現況 |
所有者居住中 |
引渡可能時期 |
相談 |
| 物件番号 |
6987451886 |
仲介手数料 |
売買代金の3.3%+6.6万円 |
| 情報公開日 |
2025年8月30日 |
次回更新予定日 |
2025年12月10日 |
| ケータイ用バーコード |
- スマートフォンでこの物件を見る
- スマートフォンからもこの物件をご覧になれます。
|
※「-」と表示されている項目については、情報提供会社にご確認ください。
| 周辺施設 |
ナリタヤたかの台店 |
| 距離 |
750m |
写真を見る |
| 周辺施設 |
イコアス千城台 |
| 距離 |
900m |
写真を見る |
| 周辺施設 |
ファミリーマート千葉御成台店 |
| 距離 |
350m |
写真を見る |
| 周辺施設 |
千葉市立千城台みらい小学校 |
| 距離 |
1526m |
写真を見る |
| 周辺施設 |
認定こども園へいわ幼稚園 |
| 距離 |
1069m |
写真を見る |
| 周辺施設 |
四街道鷹の台郵便局 |
| 距離 |
783m |
写真を見る |
| 周辺施設 |
京葉銀行千城台支店 |
| 距離 |
404m |
写真を見る |
ここから簡単にお問い合わせをすることができます。
(SSLでの暗号化での送信を希望されるお客さまは
こちら
よりお問い合わせください)
お問い合わせを行う前に
「個人情報の取り扱いについて」を必ずお読みください。
「個人情報の取り扱いについて」に同意いただいた場合は「上記にご同意の上 確認画面へ進む」のボタンをクリックしてください。
個人情報の取り扱いについて
皆さまが送付された個人情報はアットホーム(株)のサーバを経由し、お問い合わせ先の不動産会社にメールまたはFAXにて転送されるためアットホーム(株)にも保管されます。アットホーム(株)で保管された個人情報の取り扱いについては、【こちら】をご覧ください。
また、本画面でご記入いただいた個人情報は、お問い合わせ先の不動産会社でも保管します。 お問い合わせ先の不動産会社が保管する個人情報の取り扱いについては、不動産会社に直接お問い合わせください。
千葉県知事免許(1)第18627号 |
|---|
- 交通:
- JR内房線/姉ケ崎駅 【バス】6分 白塚 停歩7分
- 千葉県市原市千種2丁目4-7
- TEL:
- 0436-37-3022
- FAX:
- 0436-37-2214
- 所属団体:
- (一社)千葉県宅地建物取引業協会会員(公社)首都圏不動産公正取引協議会加盟
取引態様:専任媒介  - 00277438
|
- スマートフォンで
この不動産会社を見る

|
- 提携サイト等より掲載されている物件情報につきましては、不動産会社詳細情報にリンクされていないものがあります。
- 物件に関するお問合せは、物件詳細ページの「情報提供会社」に表示されている不動産会社へ直接お願いいたします。
- 間取図は、現況を優先させていただきます。
- 映像は物件の一部を撮影したものです。物件の契約にあたっての最終判断はご自身の判断に基づいて行ってください。
- 仲介手数料について

アットホームは物件情報の適正化に努めております。
内容に誤りがある場合にはこちらへご連絡ください。