山梨県南アルプス市上宮地(小井川駅)の一戸建て:物件詳細
交通 所在地 |
駅徒歩 |
価格 |
間取り 建物面積 |
土地面積 私道負担面積 |
物件種目 築年月 |
|
身延線/小井川 [バス利用可] バス 柿平上バス停 停歩451m
山梨県南アルプス市上宮地
|
5444m
|
2,930万円
|
3LDK
109.30m²
|
233.40m²
-
|
中古一戸建て
2022年3月(築3年10ヶ月)
|
|
駐車場3台分以上、24時間換気システム、オール電化、庭10坪以上、分譲地内
|
|
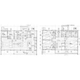
間取図
3LDK
|
外観
北より
|
<
その他の画像
>
|
|
|
| 交通 | 身延線 小井川駅 徒歩5444m [バス利用可] バス 柿平上バス停 停歩451m |
| 所在地 |
山梨県南アルプス市上宮地
|
| 物件種目 |
中古一戸建て |
| 価格 |
2,930万円 |
借地期間・地代(月額) |
- |
| 権利金 |
- |
敷金または保証金 |
- / - |
| 維持費等 |
- |
その他一時金 |
- |
| 間取り |
3LDK |
建物面積 |
109.30m² |
| 土地権利 |
所有権 |
建物構造 |
木造 |
| 土地面積 |
233.40m²(公簿) |
私道負担面積 |
- |
| 築年月 |
2022年3月(築3年10ヶ月)
|
都市計画 |
非線引区域 |
| 建物名 |
南アルプス市上宮地中古住宅 |
建築確認番号 |
- |
| 用途地域 |
1種中高 |
駐車場 |
- |
| 建ぺい率 |
50% |
容積率 |
200% |
| 階建 |
2階建 |
接道状況 |
南 6.0m 公道
・ 北 5.8m 公道
|
| 地目 |
宅地 |
地勢 |
平坦 |
| 国土法届出 |
- |
セットバック |
- |
| リフォーム履歴 |
- |
| リノベーション履歴 |
- |
| 瑕疵保証 |
- |
| 瑕疵保険 |
- |
| 評価・証明書 |
- |
| 備考 |
※食品庫、物置、ウッドデッキあり
※オール電化
|
| エネルギー消費性能 |
- |
| 断熱性能 |
- |
| 目安光熱費 |
- |
| バス・トイレ |
浴室暖房、浴室乾燥機、オートバス、追焚機能、トイレ2ヶ所、浴室に窓あり |
| キッチン |
カウンターキッチン、食器洗浄乾燥機、IHクッキングヒーター |
| 設備・サービス |
全居室収納、モニター付インターホン、ダブルロックドア、シャッター雨戸、浄化槽、全居室フローリング、室内物干し、上水道、電気、ダウンライト、間接照明、照明器具、火災警報器(報知機)、複層ガラス、Low-E ガラス |
| その他 |
- |
| 現況 |
所有者居住中 |
引渡可能時期 |
相談 |
| 物件番号 |
6987463338 |
|
|
| 情報公開日 |
2025年8月29日 |
次回更新予定日 |
2026年1月5日 |
| ケータイ用バーコード |
- スマートフォンでこの物件を見る
- スマートフォンからもこの物件をご覧になれます。
|
※「-」と表示されている項目については、情報提供会社にご確認ください。
| 周辺施設 |
小笠原小学校 |
| 距離 |
1252m |
写真を見る |
| 周辺施設 |
くしがた中学校 |
| 距離 |
1026m |
写真を見る |
| 周辺施設 |
業務スーパー南アルプス店 |
| 距離 |
1766m |
写真を見る |
| 周辺施設 |
セブンイレブン南アルプスくしがた総合公園店 |
| 距離 |
1075m |
写真を見る |
ここから簡単にお問い合わせをすることができます。
(SSLでの暗号化での送信を希望されるお客さまは
こちら
よりお問い合わせください)
お問い合わせを行う前に
「個人情報の取り扱いについて」を必ずお読みください。
「個人情報の取り扱いについて」に同意いただいた場合は「上記にご同意の上 確認画面へ進む」のボタンをクリックしてください。
個人情報の取り扱いについて
皆さまが送付された個人情報はアットホーム(株)のサーバを経由し、お問い合わせ先の不動産会社にメールまたはFAXにて転送されるためアットホーム(株)にも保管されます。アットホーム(株)で保管された個人情報の取り扱いについては、【こちら】をご覧ください。
また、本画面でご記入いただいた個人情報は、お問い合わせ先の不動産会社でも保管します。 お問い合わせ先の不動産会社が保管する個人情報の取り扱いについては、不動産会社に直接お問い合わせください。
山梨県知事免許(3)第2365号 |
|---|
- 交通:
- 身延線/甲斐住吉駅 徒歩28分
- 山梨県甲府市上今井町1210番地1
- TEL:
- 055-267-6888
- FAX:
- 055-267-6889
- 所属団体:
- (公社)山梨県宅地建物取引業協会会員(公社)首都圏不動産公正取引協議会加盟
取引態様:専任媒介  - 00160649
|
- スマートフォンで
この不動産会社を見る

|
- 提携サイト等より掲載されている物件情報につきましては、不動産会社詳細情報にリンクされていないものがあります。
- 物件に関するお問合せは、物件詳細ページの「情報提供会社」に表示されている不動産会社へ直接お願いいたします。
- 間取図は、現況を優先させていただきます。
- 映像は物件の一部を撮影したものです。物件の契約にあたっての最終判断はご自身の判断に基づいて行ってください。
- 仲介手数料について

アットホームは物件情報の適正化に努めております。
内容に誤りがある場合にはこちらへご連絡ください。