長野県小諸市大字大久保(小諸駅)の一戸建て:物件詳細
交通 所在地 |
駅徒歩 |
価格 |
間取り 建物面積 |
土地面積 私道負担面積 |
物件種目 築年月 |
|
しなの鉄道/小諸
長野県小諸市大字大久保
|
8400m
|
750万円
|
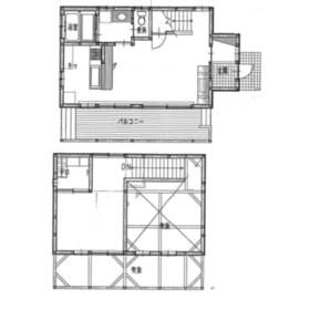
1LDK
64.36m²
|
444.00m²
-
|
中古一戸建て
1998年12月(築26年11ヶ月)
|
|
南向き、天井高2.5M以上、全室2面採光、吹抜、閑静な住宅街、前面棟無、隣接建物距離2m以上
|
|
間取図
|
|
<
その他の画像
>
|
| 交通 | しなの鉄道 小諸駅 徒歩8400m |
|---|
| その他の交通 | JR小海線 小諸駅 徒歩8400m |
| 所在地 |
長野県小諸市大字大久保
|
| 物件種目 |
中古一戸建て |
| 価格 |
750万円 |
借地期間・地代(月額) |
- |
| 権利金 |
- |
敷金または保証金 |
- / - |
| 維持費等 |
- |
その他一時金 |
- |
| 間取り |
1LDK(洋 8) |
建物面積 |
64.36m² |
| 土地権利 |
所有権 |
建物構造 |
木造 |
| 土地面積 |
444.00m²(公簿) |
私道負担面積 |
- |
| 築年月 |
1998年12月(築26年11ヶ月)
|
都市計画 |
非線引区域 |
| 建物名 |
|
建築確認番号 |
- |
| 用途地域 |
無指定 |
駐車場 |
有 無料 |
| 建ぺい率 |
20% |
容積率 |
40% |
| 階建 |
2階建 |
接道状況 |
南東 4.3m 公道 接面17.0m
|
| 地目 |
山林 |
地勢 |
- |
| 国土法届出 |
- |
セットバック |
- |
| アピールポイント |
3口コンロのシステムキッチンで一体感のあるデザインの台所です。また広々とした延床面積64.36㎡の居室空間で、その上閑静な住宅街立地の物件だから、オンオフのメリハリがつきます。開放感のある空間を演出する吹抜の居室空間。独身でも新婚でも使える1LDK。アーティストのアトリエ空間としても利用可能なデザイン。ご案内いたしますのでお気軽にご連絡ください。 |
| リフォーム履歴 |
- |
| リノベーション履歴 |
- |
| 瑕疵保証 |
- |
| 瑕疵保険 |
- |
| 評価・証明書 |
- |
| 備考 |
主要採光面:南向き
|
| エネルギー消費性能 |
- |
| 断熱性能 |
- |
| 目安光熱費 |
- |
| バス・トイレ |
浴室に窓あり |
| キッチン |
カウンターキッチン、システムキッチン、独立型キッチン、3口以上コンロ |
| 設備・サービス |
ウォークインクローゼット、シューズインクローゼット、浄化槽、全居室フローリング、上水道、プロパンガス、電気、FF暖房、シーリングファン、庭、ウッドデッキ、照明器具 |
| その他 |
- |
| 現況 |
空家 |
引渡可能時期 |
即時 |
| 物件番号 |
6987545054 |
仲介手数料 |
33万円 |
| 情報公開日 |
2025年9月4日 |
次回更新予定日 |
2025年10月29日 |
| ケータイ用バーコード |
- スマートフォンでこの物件を見る
- スマートフォンからもこの物件をご覧になれます。
|
※「-」と表示されている項目については、情報提供会社にご確認ください。
ここから簡単にお問い合わせをすることができます。
(SSLでの暗号化での送信を希望されるお客さまは
こちら
よりお問い合わせください)
お問い合わせを行う前に
「個人情報の取り扱いについて」を必ずお読みください。
「個人情報の取り扱いについて」に同意いただいた場合は「上記にご同意の上 確認画面へ進む」のボタンをクリックしてください。
個人情報の取り扱いについて
皆さまが送付された個人情報はアットホーム(株)のサーバを経由し、お問い合わせ先の不動産会社にメールまたはFAXにて転送されるためアットホーム(株)にも保管されます。アットホーム(株)で保管された個人情報の取り扱いについては、【こちら】をご覧ください。
また、本画面でご記入いただいた個人情報は、お問い合わせ先の不動産会社でも保管します。 お問い合わせ先の不動産会社が保管する個人情報の取り扱いについては、不動産会社に直接お問い合わせください。
長野県知事免許(1)第5710号 |
|---|
- 交通:
- 北陸新幹線/軽井沢駅 徒歩20分
- 長野県北佐久郡軽井沢町大字軽井沢1062-37
- TEL:
- 0267-41-0998
- 所属団体:
- (公社)長野県宅地建物取引業協会会員(公社)首都圏不動産公正取引協議会加盟
取引態様:専任媒介  - 00270817
|
- スマートフォンで
この不動産会社を見る

|
- 提携サイト等より掲載されている物件情報につきましては、不動産会社詳細情報にリンクされていないものがあります。
- 物件に関するお問合せは、物件詳細ページの「情報提供会社」に表示されている不動産会社へ直接お願いいたします。
- 間取図は、現況を優先させていただきます。
- 映像は物件の一部を撮影したものです。物件の契約にあたっての最終判断はご自身の判断に基づいて行ってください。
- 仲介手数料について

アットホームは物件情報の適正化に努めております。
内容に誤りがある場合にはこちらへご連絡ください。