兵庫県西宮市名塩平成台(西宮名塩駅)の一戸建て:物件詳細
交通 所在地 |
駅徒歩 |
価格 |
間取り 建物面積 |
土地面積 私道負担面積 |
物件種目 築年月 |
|
JR福知山線/西宮名塩 【バス】9分 東久保 停歩5分
兵庫県西宮市名塩平成台
|
-
|
1,700万円
|
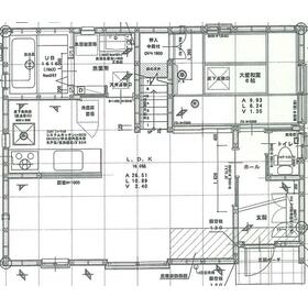
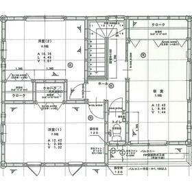
4LDK
100.19m²
|
181.82m²
なし
|
中古一戸建て
2007年8月(築18年5ヶ月)
|
|
駐車場2台分、バス1坪以上、閑静な住宅街、区画整理地内、整形地、分譲地内
|
|
間取図
|
間取図
|
<
その他の画像
>
|
| 交通 | JR福知山線 西宮名塩駅 【バス】 9分 東久保 停歩5分 |
| 所在地 |
兵庫県西宮市名塩平成台
|
| 物件種目 |
中古一戸建て |
| 価格 |
1,700万円 |
借地期間・地代(月額) |
- |
| 権利金 |
- |
敷金または保証金 |
- / - |
| 維持費等 |
- |
その他一時金 |
- |
| 間取り |
4LDK |
建物面積 |
100.19m² |
| 土地権利 |
所有権 |
建物構造 |
木造 |
| 土地面積 |
181.82m²(公簿) |
私道負担面積 |
なし |
| 築年月 |
2007年8月(築18年5ヶ月)
|
都市計画 |
市街化区域 |
| 建物名 |
|
建築確認番号 |
- |
| 用途地域 |
1種低層 |
駐車場 |
有 無料 |
| 建ぺい率 |
50% |
容積率 |
100% |
| 階建 |
2階建 |
接道状況 |
南 6.0m 公道 接面13.0m
|
| 地目 |
宅地 |
地勢 |
平坦 |
| 国土法届出 |
- |
セットバック |
- |
| アピールポイント |
広々とした延床面積100.19㎡の居室空間、更にのびのび入浴できる広さ1坪以上の浴室はゆったり足を伸ばして充実のリラックスタイムを作ります。また閑静な住宅街の住戸で、その上食後お皿を下げるのもスムーズなカウンターキッチン仕様なので、食後の片付けも楽ちんです。ちなみに来客用にひとつを割り当てることもできるトイレ2ヶ所有です。家族というコミュニティを支える4LDK。ご案内いたしますのでお気軽にご連絡ください。 |
| リフォーム履歴 |
- |
| リノベーション履歴 |
- |
| 瑕疵保証 |
- |
| 瑕疵保険 |
- |
| 評価・証明書 |
- |
| 備考 |
-
|
| エネルギー消費性能 |
- |
| 断熱性能 |
- |
| 目安光熱費 |
- |
| バス・トイレ |
トイレ2ヶ所 |
| キッチン |
カウンターキッチン |
| 設備・サービス |
上水道、下水道、都市ガス、電気 |
| その他 |
- |
| 現況 |
空家 |
引渡可能時期 |
即時 |
| 物件番号 |
6987610365 |
仲介手数料 |
売買代金の3%+6万円 |
| 情報公開日 |
2025年10月29日 |
次回更新予定日 |
2025年12月16日 |
| ケータイ用バーコード |
- スマートフォンでこの物件を見る
- スマートフォンからもこの物件をご覧になれます。
|
※「-」と表示されている項目については、情報提供会社にご確認ください。
| 周辺施設 |
ファミリーマート西宮名塩店 |
| 距離 |
752m |
| 周辺施設 |
ドトールコーヒーショップ西宮名塩サービスエリア下り店 |
| 距離 |
1689m |
| 周辺施設 |
エネオス西宮名塩サービスエリア下りSS |
| 距離 |
1652m |
| 周辺施設 |
エネオス西宮名塩SASS |
| 距離 |
2736m |
| 周辺施設 |
医療法人内海慈仁会有馬病院 |
| 距離 |
2678m |
ここから簡単にお問い合わせをすることができます。
(SSLでの暗号化での送信を希望されるお客さまは
こちら
よりお問い合わせください)
お問い合わせを行う前に
「個人情報の取り扱いについて」を必ずお読みください。
「個人情報の取り扱いについて」に同意いただいた場合は「上記にご同意の上 確認画面へ進む」のボタンをクリックしてください。
個人情報の取り扱いについて
皆さまが送付された個人情報はアットホーム(株)のサーバを経由し、お問い合わせ先の不動産会社にメールまたはFAXにて転送されるためアットホーム(株)にも保管されます。アットホーム(株)で保管された個人情報の取り扱いについては、【こちら】をご覧ください。
また、本画面でご記入いただいた個人情報は、お問い合わせ先の不動産会社でも保管します。 お問い合わせ先の不動産会社が保管する個人情報の取り扱いについては、不動産会社に直接お問い合わせください。
大阪府知事免許(2)第59419号 |
|---|
- 交通:
- 地下鉄四つ橋線/肥後橋駅 徒歩1分
- 大阪府大阪市西区土佐堀1丁目1-7-6F
- TEL:
- 06-6449-0707
- FAX:
- 06-6449-0808
- 所属団体:
- (一社)大阪府宅地建物取引業協会会員(公社)近畿地区不動産公正取引協議会加盟
取引態様:専属専任媒介  - 50111534
|
- スマートフォンで
この不動産会社を見る

|
- 提携サイト等より掲載されている物件情報につきましては、不動産会社詳細情報にリンクされていないものがあります。
- 物件に関するお問合せは、物件詳細ページの「情報提供会社」に表示されている不動産会社へ直接お願いいたします。
- 間取図は、現況を優先させていただきます。
- 映像は物件の一部を撮影したものです。物件の契約にあたっての最終判断はご自身の判断に基づいて行ってください。
- 仲介手数料について

アットホームは物件情報の適正化に努めております。
内容に誤りがある場合にはこちらへご連絡ください。