大分県佐伯市弥生大字井崎(上岡駅)の一戸建て:物件詳細
交通 所在地 |
駅徒歩 |
価格 |
間取り 建物面積 |
土地面積 私道負担面積 |
物件種目 築年月 |
|
JR日豊本線/上岡
大分県佐伯市弥生大字井崎
|
63分
|
2,650万円
|
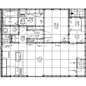
3SLDK
92.74m²
|
200.45m²
-
|
新築一戸建て
2026年1月
|
|
間取図
|
|
その他の画像
|
| 交通 | JR日豊本線 上岡駅 徒歩63分 |
| 所在地 |
大分県佐伯市弥生大字井崎
|
| 物件種目 |
新築一戸建て |
| 価格 |
2,650万円 |
借地期間・地代(月額) |
- |
| 権利金 |
- |
敷金または保証金 |
- / - |
| 維持費等 |
- |
その他一時金 |
- |
| 間取り |
3SLDK(洋 6・5・4.5 S 1.5) |
建物面積 |
92.74m² |
| 土地権利 |
所有権 |
建物構造 |
木造 |
| 土地面積 |
200.45m²(公簿) |
私道負担面積 |
- |
| 築年月 |
2026年1月
|
都市計画 |
区域外 |
| 建物名 |
|
建築確認番号 |
第62号 |
| 用途地域 |
- |
駐車場 |
- |
| 建ぺい率 |
- |
容積率 |
- |
| 階建 |
2階建 |
接道状況 |
-
|
| 地目 |
宅地 |
地勢 |
- |
| 国土法届出 |
- |
セットバック |
- |
| アピールポイント |
弥生、植松分譲地にホーナンハウス建売住宅を建築中!注文住宅並みの性能の良さがホーナンハウス建売住宅の自慢です☆2025年冬に完成予定♪完成後には見学会も予定しておりますので、是非ご参加ください! |
| リフォーム履歴 |
- |
| リノベーション履歴 |
- |
| 瑕疵保証 |
- |
| 瑕疵保険 |
- |
| 評価・証明書 |
- |
| 備考 |
-
|
| エネルギー消費性能 |
- |
| 断熱性能 |
- |
| 目安光熱費 |
- |
| バス・トイレ |
- |
| キッチン |
- |
| 設備・サービス |
- |
| その他 |
- |
| 現況 |
建築中 |
引渡可能時期 |
相談 |
| 物件番号 |
6987611603 |
|
|
| 情報公開日 |
2026年1月23日 |
次回更新予定日 |
2026年4月3日 |
| ケータイ用バーコード |
- スマートフォンでこの物件を見る
- スマートフォンからもこの物件をご覧になれます。
|
※「-」と表示されている項目については、情報提供会社にご確認ください。
ここから簡単にお問い合わせをすることができます。
(SSLでの暗号化での送信を希望されるお客さまは
こちら
よりお問い合わせください)
お問い合わせを行う前に
「個人情報の取り扱いについて」を必ずお読みください。
「個人情報の取り扱いについて」に同意いただいた場合は「上記にご同意の上 確認画面へ進む」のボタンをクリックしてください。
個人情報の取り扱いについて
皆さまが送付された個人情報はアットホーム(株)のサーバを経由し、お問い合わせ先の不動産会社にメールまたはFAXにて転送されるためアットホーム(株)にも保管されます。アットホーム(株)で保管された個人情報の取り扱いについては、【こちら】をご覧ください。
また、本画面でご記入いただいた個人情報は、お問い合わせ先の不動産会社でも保管します。 お問い合わせ先の不動産会社が保管する個人情報の取り扱いについては、不動産会社に直接お問い合わせください。
大分県知事免許(14)第772号 |
|---|
- 交通:
- JR日豊本線/佐伯駅
- 大分県佐伯市若宮町1番65号
- TEL:
- 0972-22-4163
- FAX:
- 0972-22-4165
- 所属団体:
- (公社)大分県宅地建物取引業協会会員(一社)九州不動産公正取引協議会加盟
取引態様:売主  - 80400831
|
- スマートフォンで
この不動産会社を見る

|
- 提携サイト等より掲載されている物件情報につきましては、不動産会社詳細情報にリンクされていないものがあります。
- 物件に関するお問合せは、物件詳細ページの「情報提供会社」に表示されている不動産会社へ直接お願いいたします。
- 間取図は、現況を優先させていただきます。
- 映像は物件の一部を撮影したものです。物件の契約にあたっての最終判断はご自身の判断に基づいて行ってください。
- 仲介手数料について

アットホームは物件情報の適正化に努めております。
内容に誤りがある場合にはこちらへご連絡ください。