静岡県浜松市天竜区緑恵台(二俣本町駅)の一戸建て:物件詳細
交通 所在地 |
駅徒歩 |
価格 |
間取り 建物面積 |
土地面積 私道負担面積 |
物件種目 築年月 |
天竜浜名湖鉄道/二俣本町
静岡県浜松市天竜区緑恵台
|
45分
|
580万円
|
4LDK
102.67m²
|
208.76m²
-
|
中古一戸建て
1989年11月(築36年)
|
駐車場2台分、南向き、外壁サイディング、2×4工法、バス1坪以上、吹抜、閑静な住宅街、オール電化、整形地、庭10坪以上、前面棟無、隣接建物距離2m以上、分譲地内
|
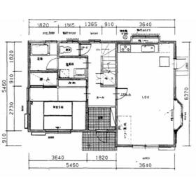
間取図
|
|
その他の画像
|
交通 | 天竜浜名湖鉄道 二俣本町駅 徒歩45分 |
所在地 |
静岡県浜松市天竜区緑恵台
|
物件種目 |
中古一戸建て |
価格 |
580万円 |
借地期間・地代(月額) |
- |
権利金 |
- |
敷金または保証金 |
- / - |
維持費等 |
- |
その他一時金 |
- |
間取り |
4LDK(和 6・10 洋 6・6 LDK 14) |
建物面積 |
102.67m² |
土地権利 |
所有権 |
建物構造 |
木造 |
土地面積 |
208.76m²(公簿) |
私道負担面積 |
- |
築年月 |
1989年11月(築36年)
|
都市計画 |
区域外 |
建物名 |
|
建築確認番号 |
- |
用途地域 |
- |
駐車場 |
- |
建ぺい率 |
- |
容積率 |
- |
階建 |
2階建 |
接道状況 |
南 6.0m 公道 接面16.0m
|
地目 |
宅地 |
地勢 |
高台 |
国土法届出 |
- |
セットバック |
- |
アピールポイント |
キレイに分譲された閑静な住宅街の立地!
単板ガラスでしたが、内窓を全居室に設置済みの為、気密性も十分です!
当社が施工した住宅の為、リフォームのご相談も一手に承れます! |
リフォーム履歴 |
- |
リノベーション履歴 |
- |
瑕疵保証 |
- |
瑕疵保険 |
- |
評価・証明書 |
- |
備考 |
バルコニー:2.91m²
主要採光面:南向き
施工会社:株式会社大成住宅
|
エネルギー消費性能 |
- |
断熱性能 |
- |
目安光熱費 |
- |
バス・トイレ |
シャワー付洗面化粧台、温水洗浄便座、トイレ2ヶ所、浴室に窓あり |
キッチン |
システムキッチン、IHクッキングヒーター |
設備・サービス |
全居室エアコン、エアコン2台以上、クローゼット、床下収納、上水道、下水道、プロパンガス、電気、側溝、エアコン、庭、照明器具 |
その他 |
- |
現況 |
所有者居住中 |
引渡可能時期 |
相談 |
物件番号 |
6987672821 |
仲介手数料 |
30万円 |
情報公開日 |
2025年9月15日 |
次回更新予定日 |
2025年10月25日 |
ケータイ用バーコード |
- スマートフォンでこの物件を見る
- スマートフォンからもこの物件をご覧になれます。
|
※「-」と表示されている項目については、情報提供会社にご確認ください。
周辺施設 |
ファミリーマート天竜二俣東店 |
距離 |
4000m |
周辺施設 |
浜松市立下阿多古小学校 |
距離 |
3366m |
周辺施設 |
独立行政法人国立病院機構天竜病院 |
距離 |
2805m |
周辺施設 |
浜松いわた信用金庫二俣支店 |
距離 |
4043m |
ここから簡単にお問い合わせをすることができます。
(SSLでの暗号化での送信を希望されるお客さまは
こちら
よりお問い合わせください)
お問い合わせを行う前に
「個人情報の取り扱いについて」を必ずお読みください。
「個人情報の取り扱いについて」に同意いただいた場合は「上記にご同意の上 確認画面へ進む」のボタンをクリックしてください。
個人情報の取り扱いについて
皆さまが送付された個人情報はアットホーム(株)のサーバを経由し、お問い合わせ先の不動産会社にメールまたはFAXにて転送されるためアットホーム(株)にも保管されます。アットホーム(株)で保管された個人情報の取り扱いについては、【こちら】をご覧ください。
また、本画面でご記入いただいた個人情報は、お問い合わせ先の不動産会社でも保管します。 お問い合わせ先の不動産会社が保管する個人情報の取り扱いについては、不動産会社に直接お問い合わせください。
静岡県知事免許(1)第14474号 |
---|
- 交通:
- 東海道本線/静岡駅 徒歩22分 【バス】21分 南安倍町 停歩1分
- 静岡県静岡市葵区南安倍1丁目3-10 大成住宅ビル501号
- TEL:
- 054-254-7025
- FAX:
- 054-253-1470
- 所属団体:
- (公社)静岡県宅地建物取引業協会会員東海不動産公正取引協議会加盟
取引態様:一般媒介  - 40409453
|
- スマートフォンで
この不動産会社を見る

|
- 提携サイト等より掲載されている物件情報につきましては、不動産会社詳細情報にリンクされていないものがあります。
- 物件に関するお問合せは、物件詳細ページの「情報提供会社」に表示されている不動産会社へ直接お願いいたします。
- 間取図は、現況を優先させていただきます。
- 映像は物件の一部を撮影したものです。物件の契約にあたっての最終判断はご自身の判断に基づいて行ってください。
- 仲介手数料について

アットホームは物件情報の適正化に努めております。
内容に誤りがある場合にはこちらへご連絡ください。