富山県中新川郡立山町利田(五百石駅)の一戸建て:物件詳細
交通 所在地 |
駅徒歩 |
価格 |
間取り 建物面積 |
土地面積 私道負担面積 |
物件種目 築年月 |
|
富山地鉄立山線/五百石 [バス利用可] バス 日置 停歩9分
富山県中新川郡立山町利田
|
30分
|
250万円
|
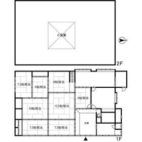
9DK
215.79m²
|
1,075.26m²
-
|
中古一戸建て
1960年10月(築65年5ヶ月)
|
|
駐車場3台分以上
|
|
間取図
9DK
|
外観
正面
|
<
その他の画像
>
|
| 交通 | 富山地鉄立山線 五百石駅 徒歩30分 [バス利用可] バス 日置 停歩9分 |
| 所在地 |
富山県中新川郡立山町利田
|
| 物件種目 |
中古一戸建て |
| 価格 |
250万円 |
借地期間・地代(月額) |
- |
| 権利金 |
- |
敷金または保証金 |
- / - |
| 維持費等 |
- |
その他一時金 |
- |
| 間取り |
9DK |
建物面積 |
215.79m² |
| 土地権利 |
所有権 |
建物構造 |
木造 |
| 土地面積 |
1,075.26m²(公簿) |
私道負担面積 |
- |
| 築年月 |
1960年10月(築65年5ヶ月)
|
都市計画 |
非線引区域 |
| 建物名 |
立山町利田 |
建築確認番号 |
- |
| 用途地域 |
無指定 |
駐車場 |
有 無料 |
| 建ぺい率 |
60% |
容積率 |
200% |
| 階建 |
平屋建 |
接道状況 |
東 4.0m 私道 接面28.7m
・ 南 4.0m 私道 接面36.9m
・ 二方道路
|
| 地目 |
宅地 |
地勢 |
- |
| 国土法届出 |
- |
セットバック |
- |
| アピールポイント |
立山町の自然を感じることができ、のんびりとした環境
〇自然食やスローフードをメインとした古民家カフェやギャラリーなど
いかがでしょうか(^^♪
〇民泊やゲストハウスにも
9DKと広さもあり、グループやファミリー向けにも
都会からくる人が「自然の中の昭和レトロな体験」を楽しめそう
〇アトリエ・工房付の住居にも
陶芸・手芸など、自然と調和するクラフト系のアトリエにピッタリ
広い部屋をアトリエに、残りのお部屋を住まいや教室にも
〇シェアハウスやリトリート施設に
自然の中でゆったり暮らしたい人向けのシェアハウスに
瞑想やヨガなど心身を整えるリトリート拠点にも
使い方はいろいろ♪
特に「自然が感じられる環境」というのは今人気ですよ(^^♪ |
| リフォーム履歴 |
- |
| リノベーション履歴 |
- |
| 瑕疵保証 |
- |
| 瑕疵保険 |
- |
| 評価・証明書 |
- |
| 備考 |
接道道路は建築基準法第42条第1項3号(既存道路)
|
| エネルギー消費性能 |
- |
| 断熱性能 |
- |
| 目安光熱費 |
- |
| バス・トイレ |
- |
| キッチン |
- |
| 設備・サービス |
上水道、下水道、プロパンガス、電気 |
| その他 |
- |
| 現況 |
空家 |
引渡可能時期 |
相談 |
| 物件番号 |
6987678137 |
|
|
| 情報公開日 |
2025年9月16日 |
次回更新予定日 |
2026年2月11日 |
| ケータイ用バーコード |
- スマートフォンでこの物件を見る
- スマートフォンからもこの物件をご覧になれます。
|
※「-」と表示されている項目については、情報提供会社にご確認ください。
| 周辺施設 |
スーパーセンターシマヤ立山店 |
| 距離 |
1495m |
| 周辺施設 |
セブンイレブン立山大石原店 |
| 距離 |
915m |
| 周辺施設 |
社会福祉法人相幸福祉会あおぞら保育園 |
| 距離 |
2001m |
ここから簡単にお問い合わせをすることができます。
(SSLでの暗号化での送信を希望されるお客さまは
こちら
よりお問い合わせください)
お問い合わせを行う前に
「個人情報の取り扱いについて」を必ずお読みください。
「個人情報の取り扱いについて」に同意いただいた場合は「上記にご同意の上 確認画面へ進む」のボタンをクリックしてください。
個人情報の取り扱いについて
皆さまが送付された個人情報はアットホーム(株)のサーバを経由し、お問い合わせ先の不動産会社にメールまたはFAXにて転送されるためアットホーム(株)にも保管されます。アットホーム(株)で保管された個人情報の取り扱いについては、【こちら】をご覧ください。
また、本画面でご記入いただいた個人情報は、お問い合わせ先の不動産会社でも保管します。 お問い合わせ先の不動産会社が保管する個人情報の取り扱いについては、不動産会社に直接お問い合わせください。
富山県知事免許(9)第1777号 |
|---|
- 交通:
- 富山地鉄富山市内線/丸の内駅 徒歩1分 【バス】 丸の内 停歩3分
- 富山県富山市丸の内1丁目3-15
- TEL:
- 076-444-1918
- FAX:
- 076-444-1922
- 所属団体:
- (公社)富山県宅地建物取引業協会会員北陸不動産公正取引協議会加盟
取引態様:専属専任媒介  - 40402017
|
- スマートフォンで
この不動産会社を見る

|
- 提携サイト等より掲載されている物件情報につきましては、不動産会社詳細情報にリンクされていないものがあります。
- 物件に関するお問合せは、物件詳細ページの「情報提供会社」に表示されている不動産会社へ直接お願いいたします。
- 間取図は、現況を優先させていただきます。
- 映像は物件の一部を撮影したものです。物件の契約にあたっての最終判断はご自身の判断に基づいて行ってください。
- 仲介手数料について

アットホームは物件情報の適正化に努めております。
内容に誤りがある場合にはこちらへご連絡ください。