京都府京都市南区東九条西明田町(十条駅)の一戸建て:物件詳細
交通 所在地 |
駅徒歩 |
価格 |
間取り 建物面積 |
土地面積 私道負担面積 |
物件種目 築年月 |
地下鉄烏丸線/十条
京都府京都市南区東九条西明田町
|
7分
|
2,380万円
|
3LDK
68.58m²
|
36.18m²
有 8.46m²
|
中古一戸建て
2020年1月(築5年10ヶ月)
|
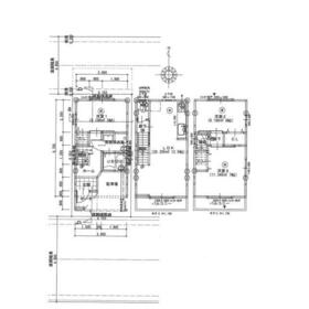
南向き、全室2面採光、24時間換気システム、バリアフリー、整形地、前面棟無
|
間取図
南北の両面道路です
|
外観
築5年と8ヶ月の築浅1戸建てです
|
<
その他の画像
>
|
交通 | 地下鉄烏丸線 十条駅 徒歩7分 |
---|
その他の交通 | 近鉄京都線 十条駅 徒歩9分 東海道新幹線 京都駅 徒歩16分 |
所在地 |
京都府京都市南区東九条西明田町
|
物件種目 |
中古一戸建て |
価格 |
2,380万円 |
借地期間・地代(月額) |
- |
権利金 |
- |
敷金または保証金 |
- / - |
維持費等 |
- |
その他一時金 |
- |
間取り |
3LDK(洋 7・5・5) |
建物面積 |
68.58m² |
土地権利 |
所有権 |
建物構造 |
木造 |
土地面積 |
36.18m²(公簿) |
私道負担面積 |
有 8.46m² |
築年月 |
2020年1月(築5年10ヶ月)
|
都市計画 |
市街化区域 |
建物名 |
東九条西明田町 築浅1戸建て |
建築確認番号 |
- |
用途地域 |
工業地域 |
駐車場 |
有 無料 |
建ぺい率 |
60% |
容積率 |
200% |
階建 |
3階建 |
接道状況 |
南 5.7m 公道 接面4.1m
・ 北 4.0m 私道 位置指定有 接面4.1m
|
地目 |
宅地 |
地勢 |
平坦 |
国土法届出 |
- |
セットバック |
- |
アピールポイント |
◆建築後5年と8ヶ月!築浅一戸建て住宅を是非ご検討ください!
◆改装の必要ありません!ご内覧出来ますのでご確認ください!
◆売主様の費用負担にて1階洋室の床(ウッドタイル貼り)、壁クロス貼り替え、キッチンパネルとリビングドアのリペア、そして念入りな美装工事を行います!
◆南北両面道路!南側の公道、北側の私道ともに車の通りは少ないです。また、南側には建物が無く、玄関を出たら解放感があります!
◆南向の住居、更に良好な日当たりが嬉しい全室2面採光の居室空間だから、南北に抜ける風で湿気の悩みも軽減されます。また無駄のない造りのシステムキッチンで、その上お鍋とフライパンを使いながらヤカンもおける3口コンロ!浴室にはカビの発生を防ぎお手入れが楽になる浴室換気暖房が付いてます。雨の日は浴室物干しをご利用ください!家族の安心拠点になる3LDK。是非見学にお越しください。 |
リフォーム履歴 |
- |
リノベーション履歴 |
- |
瑕疵保証 |
- |
瑕疵保険 |
- |
評価・証明書 |
- |
備考 |
バルコニー:6.5m²
主要採光面:南向き
|
エネルギー消費性能 |
- |
断熱性能 |
- |
目安光熱費 |
- |
バス・トイレ |
浴室暖房、浴室乾燥機、シャワー付洗面化粧台、温水洗浄便座、浴室に窓あり |
キッチン |
システムキッチン、食器洗浄乾燥機、3口以上コンロ、グリル |
設備・サービス |
全居室収納、エアコン2台以上、クローゼット、モニター付インターホン、ディンプルキー、シャッター雨戸、全居室フローリング、クッションフロア、上水道、下水道、都市ガス、電気、エアコン、照明器具、火災警報器(報知機)、BS端子、複層ガラス |
その他 |
- |
現況 |
所有者居住中 |
引渡可能時期 |
指定有り2026年3月20日 |
物件番号 |
6987684280 |
|
|
情報公開日 |
2025年10月9日 |
次回更新予定日 |
2025年10月23日 |
ケータイ用バーコード |
- スマートフォンでこの物件を見る
- スマートフォンからもこの物件をご覧になれます。
|
※「-」と表示されている項目については、情報提供会社にご確認ください。
周辺施設 |
生鮮スーパーケント東寺店 |
距離 |
732m |
周辺施設 |
スーパースポーツゼビオイオンモールKYOTO店 |
距離 |
1048m |
周辺施設 |
ファミリーマート烏丸十条店 |
距離 |
333m |
周辺施設 |
医療法人社団親和会京都木原病院 |
距離 |
675m |
ここから簡単にお問い合わせをすることができます。
(SSLでの暗号化での送信を希望されるお客さまは
こちら
よりお問い合わせください)
お問い合わせを行う前に
「個人情報の取り扱いについて」を必ずお読みください。
「個人情報の取り扱いについて」に同意いただいた場合は「上記にご同意の上 確認画面へ進む」のボタンをクリックしてください。
個人情報の取り扱いについて
皆さまが送付された個人情報はアットホーム(株)のサーバを経由し、お問い合わせ先の不動産会社にメールまたはFAXにて転送されるためアットホーム(株)にも保管されます。アットホーム(株)で保管された個人情報の取り扱いについては、【こちら】をご覧ください。
また、本画面でご記入いただいた個人情報は、お問い合わせ先の不動産会社でも保管します。 お問い合わせ先の不動産会社が保管する個人情報の取り扱いについては、不動産会社に直接お問い合わせください。
京都府知事免許(2)第13792号 |
---|
- 交通:
- JR山陰本線/円町駅
- 京都府京都市北区大将軍東鷹司町154
- TEL:
- 075-205-5537
- FAX:
- 075-205-5538
- 所属団体:
- (公社)京都府宅地建物取引業協会会員(公社)近畿地区不動産公正取引協議会加盟
取引態様:専任媒介  - 50102366
|
- スマートフォンで
この不動産会社を見る

|
- 提携サイト等より掲載されている物件情報につきましては、不動産会社詳細情報にリンクされていないものがあります。
- 物件に関するお問合せは、物件詳細ページの「情報提供会社」に表示されている不動産会社へ直接お願いいたします。
- 間取図は、現況を優先させていただきます。
- 映像は物件の一部を撮影したものです。物件の契約にあたっての最終判断はご自身の判断に基づいて行ってください。
- 仲介手数料について

アットホームは物件情報の適正化に努めております。
内容に誤りがある場合にはこちらへご連絡ください。