福井県坂井市春江町西長田(西長田ゆりの里駅)の一戸建て:物件詳細
交通 所在地 |
駅徒歩 |
価格 |
間取り 建物面積 |
土地面積 私道負担面積 |
物件種目 築年月 |
|
えちぜん鉄道三国線/西長田ゆりの里
福井県坂井市春江町西長田
|
2分
|
395万円
|
5DK
125.06m²
|
356.62m²
-
|
中古一戸建て
1980年6月(築45年9ヶ月)
|
| 交通 | えちぜん鉄道三国線 西長田ゆりの里駅 徒歩2分 |
|---|
| その他の交通 | えちぜん鉄道三国線 西春江ハートピア駅 徒歩22分 えちぜん鉄道三国線 下兵庫こうふく駅 徒歩27分 |
| 所在地 |
福井県坂井市春江町西長田
|
| 物件種目 |
中古一戸建て |
| 価格 |
395万円 |
借地期間・地代(月額) |
- |
| 権利金 |
- |
敷金または保証金 |
- / - |
| 維持費等 |
- |
その他一時金 |
- |
| 間取り |
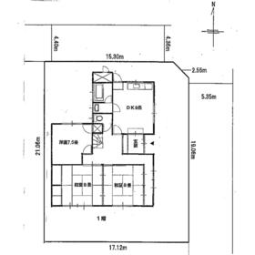
5DK(和 8・8 洋 7.5・7.5・10 DK 8) |
建物面積 |
125.06m² |
| 土地権利 |
所有権 |
建物構造 |
木造 |
| 土地面積 |
356.62m²(公簿) |
私道負担面積 |
- |
| 築年月 |
1980年6月(築45年9ヶ月)
|
都市計画 |
非線引区域 |
| 建物名 |
西長田ゆりの里 |
建築確認番号 |
- |
| 用途地域 |
無指定 |
駐車場 |
- |
| 建ぺい率 |
60% |
容積率 |
200% |
| 階建 |
2階建 |
接道状況 |
-
|
| 地目 |
- |
地勢 |
- |
| 国土法届出 |
- |
セットバック |
- |
| アピールポイント |
土地値での価格となります。 |
| リフォーム履歴 |
- |
| リノベーション履歴 |
- |
| 瑕疵保証 |
- |
| 瑕疵保険 |
- |
| 評価・証明書 |
- |
| 備考 |
-
|
| エネルギー消費性能 |
- |
| 断熱性能 |
- |
| 目安光熱費 |
- |
| バス・トイレ |
- |
| キッチン |
- |
| 設備・サービス |
プロパンガス |
| その他 |
- |
| 現況 |
空家 |
引渡可能時期 |
即時 |
| 物件番号 |
6987707613 |
仲介手数料 |
不要 |
| 情報公開日 |
2026年1月27日 |
次回更新予定日 |
2026年2月10日 |
| ケータイ用バーコード |
- スマートフォンでこの物件を見る
- スマートフォンからもこの物件をご覧になれます。
|
※「-」と表示されている項目については、情報提供会社にご確認ください。
ここから簡単にお問い合わせをすることができます。
(SSLでの暗号化での送信を希望されるお客さまは
こちら
よりお問い合わせください)
お問い合わせを行う前に
「個人情報の取り扱いについて」を必ずお読みください。
「個人情報の取り扱いについて」に同意いただいた場合は「上記にご同意の上 確認画面へ進む」のボタンをクリックしてください。
個人情報の取り扱いについて
皆さまが送付された個人情報はアットホーム(株)のサーバを経由し、お問い合わせ先の不動産会社にメールまたはFAXにて転送されるためアットホーム(株)にも保管されます。アットホーム(株)で保管された個人情報の取り扱いについては、【こちら】をご覧ください。
また、本画面でご記入いただいた個人情報は、お問い合わせ先の不動産会社でも保管します。 お問い合わせ先の不動産会社が保管する個人情報の取り扱いについては、不動産会社に直接お問い合わせください。
東京都知事免許(10)第46714号 |
|---|
- 交通:
- 東京メトロ有楽町線/麹町駅 徒歩2分
- 東京都千代田区麹町4丁目4 麹町シャインビル802
- TEL:
- 03-3221-0161
- FAX:
- 03-3221-0164
- 所属団体:
- (公社)全日本不動産協会会員(公社)首都圏不動産公正取引協議会加盟
取引態様:専任媒介  - 00278719
|
- スマートフォンで
この不動産会社を見る

|
- 提携サイト等より掲載されている物件情報につきましては、不動産会社詳細情報にリンクされていないものがあります。
- 物件に関するお問合せは、物件詳細ページの「情報提供会社」に表示されている不動産会社へ直接お願いいたします。
- 間取図は、現況を優先させていただきます。
- 映像は物件の一部を撮影したものです。物件の契約にあたっての最終判断はご自身の判断に基づいて行ってください。
- 仲介手数料について

アットホームは物件情報の適正化に努めております。
内容に誤りがある場合にはこちらへご連絡ください。