栃木県鹿沼市緑町3丁目(鹿沼駅)の一戸建て:物件詳細
交通 所在地 |
駅徒歩 |
価格 |
間取り 建物面積 |
土地面積 私道負担面積 |
物件種目 築年月 |
|
JR日光線/鹿沼
栃木県鹿沼市緑町3丁目
|
29分
|
2,390万円
|
4SLDK
97.59m²
|
193.88m²
-
|
新築一戸建て
2025年10月
|
|
駐車場2台分、南向き、バス1坪以上、2面採光、24時間換気システム、閑静な住宅街、整形地、分譲地内
|
|
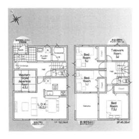
間取図
|
|
<
その他の画像
>
|
| 交通 | JR日光線 鹿沼駅 徒歩29分 |
| 所在地 |
栃木県鹿沼市緑町3丁目
|
| 物件種目 |
新築一戸建て |
| 価格 |
2,390万円 |
借地期間・地代(月額) |
- |
| 権利金 |
- |
敷金または保証金 |
- / - |
| 維持費等 |
- |
その他一時金 |
- |
| 間取り |
4SLDK(和 4.5 洋 7.5・5・5 LDK 16.2 S 3) |
建物面積 |
97.59m² |
| 土地権利 |
所有権 |
建物構造 |
木造 |
| 土地面積 |
193.88m² |
私道負担面積 |
- |
| 築年月 |
2025年10月
|
都市計画 |
市街化区域 |
| 建物名 |
|
建築確認番号 |
第25UDI1W建03719号 |
| 用途地域 |
1種住居 |
駐車場 |
- |
| 建ぺい率 |
60% |
容積率 |
164% |
| 階建 |
2階建 |
接道状況 |
北東 4.1m 公道 接面9.9m
|
| 地目 |
宅地 |
地勢 |
- |
| 国土法届出 |
- |
セットバック |
- |
| アピールポイント |
玄関にはシューズインクローク付で大物の収納にも便利!
3帖のテレワークルームは仕事場や趣味部屋などにも使えます♪
国道に近くアクセス良好◎周辺のお買い物施設も充実です(^^♪
【仲介手数料無料キャンペーン!今がチャンス!!】
戸建物件の購入をお考えなら【まずは当社へ】お問い合わせ下さい!!
◆仲介手数料例→2000万円の物件を購入の場合、2000万円×3%+6万円=726,000円
→これが今、当社で購入いただくと無料となります!!
726,000円もお得に購入できるので、初期費用が抑えられローンの負担も軽減!
浮いた差額は引っ越し費用や家具・家電の購入費用に充てることもできますね♪
※仲介会社が当社のみのお客様となります。(他社でのご案内前のお客様に限ります。)
※無料キャンペーン対象物件は、弊社指定の物件に限ります。
※その他条件は当社規定によります。
※弊社は現地販売会社とは異なります。
キャンペーンご利用の場合は事前に必ずお電話下さい!!
【とちぎ未来開発 ⇒ TEL:0282-24-5687】
★★他現場のご希望物件もまとめてご案内OK★★ |
| リフォーム履歴 |
- |
| リノベーション履歴 |
- |
| 瑕疵保証 |
- |
| 瑕疵保険 |
- |
| 評価・証明書 |
- |
| 備考 |
主要採光面:南向き
|
| エネルギー消費性能 |
- |
| 断熱性能 |
- |
| 目安光熱費 |
- |
| バス・トイレ |
浴室暖房、浴室乾燥機、追焚機能、シャワー付洗面化粧台、温水洗浄便座、トイレ2ヶ所、浴室に窓あり |
| キッチン |
カウンターキッチン、システムキッチン、浄水器、3口以上コンロ、グリル |
| 設備・サービス |
全居室収納、ウォークインクローゼット、シューズインクローゼット、クローゼット、床下収納、モニター付インターホン、上水道、下水道、プロパンガス、電気、庭、ルーフバルコニー、人感センサー付照明、照明器具、火災警報器(報知機)、複層ガラス |
| その他 |
- |
| 現況 |
完成済 |
引渡可能時期 |
相談 |
| 物件番号 |
6987723512 |
仲介手数料 |
売買代金の3.3%+6.6万円 |
| 情報公開日 |
2025年11月28日 |
次回更新予定日 |
2025年12月26日 |
| ケータイ用バーコード |
- スマートフォンでこの物件を見る
- スマートフォンからもこの物件をご覧になれます。
|
※「-」と表示されている項目については、情報提供会社にご確認ください。
| 周辺施設 |
ファミリーマート鹿沼栄町店 |
| 距離 |
350m |
| 周辺施設 |
クスリのアオキ鹿沼栄町店 |
| 距離 |
167m |
| 周辺施設 |
鹿沼市立さつきが丘小学校 |
| 距離 |
826m |
| 周辺施設 |
特定医療法人清和会鹿沼病院 |
| 距離 |
1699m |
ここから簡単にお問い合わせをすることができます。
(SSLでの暗号化での送信を希望されるお客さまは
こちら
よりお問い合わせください)
お問い合わせを行う前に
「個人情報の取り扱いについて」を必ずお読みください。
「個人情報の取り扱いについて」に同意いただいた場合は「上記にご同意の上 確認画面へ進む」のボタンをクリックしてください。
個人情報の取り扱いについて
皆さまが送付された個人情報はアットホーム(株)のサーバを経由し、お問い合わせ先の不動産会社にメールまたはFAXにて転送されるためアットホーム(株)にも保管されます。アットホーム(株)で保管された個人情報の取り扱いについては、【こちら】をご覧ください。
また、本画面でご記入いただいた個人情報は、お問い合わせ先の不動産会社でも保管します。 お問い合わせ先の不動産会社が保管する個人情報の取り扱いについては、不動産会社に直接お問い合わせください。
栃木県知事免許(3)第4967号 |
|---|
- 交通:
- 東武日光線/新栃木駅 徒歩29分
- 栃木県栃木市箱森町19-26
- TEL:
- 0282-24-5687
- FAX:
- 0282-25-6444
- 所属団体:
- (公社)栃木県宅地建物取引業協会会員(公社)首都圏不動産公正取引協議会加盟
取引態様:媒介  - 00262938
|
- スマートフォンで
この不動産会社を見る

|
- 提携サイト等より掲載されている物件情報につきましては、不動産会社詳細情報にリンクされていないものがあります。
- 物件に関するお問合せは、物件詳細ページの「情報提供会社」に表示されている不動産会社へ直接お願いいたします。
- 間取図は、現況を優先させていただきます。
- 映像は物件の一部を撮影したものです。物件の契約にあたっての最終判断はご自身の判断に基づいて行ってください。
- 仲介手数料について

アットホームは物件情報の適正化に努めております。
内容に誤りがある場合にはこちらへご連絡ください。