福岡県北九州市戸畑区一枝4丁目(九州工大前駅)の一戸建て:物件詳細
交通 所在地 |
駅徒歩 |
価格 |
間取り 建物面積 |
土地面積 私道負担面積 |
物件種目 築年月 |
|
JR鹿児島本線/九州工大前
福岡県北九州市戸畑区一枝4丁目
|
30分
|
3,898万円
|
4SLDK
113.82m²
|
130.09m²
なし
|
新築一戸建て
2025年12月
|
|
駐車場3台分以上、高気密高断熱住宅、外壁サイディング、バス1坪以上、24時間換気システム、バリアフリー、整形地、フラット35S適合証明書あり
|
|
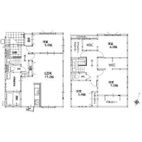
間取図
【駐車場3台可能】省エネZEH水準住宅でローン控除も安心。お気軽にお問い合わせ下さい。
|
外観
同一仕様)【駐車場3台可能】省エネZEH水準住宅でローン控除も安心。お気軽にお問い合わせ下さい。
|
<
その他の画像
>
|
| 交通 | JR鹿児島本線 九州工大前駅 徒歩30分 |
|---|
| その他の交通 | JR日豊本線 南小倉駅 徒歩2803m JR鹿児島本線 戸畑駅 徒歩2995m |
| 所在地 |
福岡県北九州市戸畑区一枝4丁目
|
| 物件種目 |
新築一戸建て |
| 価格 |
3,898万円 |
借地期間・地代(月額) |
- |
| 権利金 |
- |
敷金または保証金 |
- / - |
| 維持費等 |
- |
その他一時金 |
- |
| 間取り |
4SLDK(洋 5・7・6・5.4 LDK 17.2 S 3・1.5) |
建物面積 |
113.82m² |
| 土地権利 |
所有権 |
建物構造 |
木造 |
| 土地面積 |
130.09m²(公簿) |
私道負担面積 |
なし |
| 築年月 |
2025年12月
|
都市計画 |
市街化区域 |
| 建物名 |
戸畑区一枝4丁目 新築戸建(北) |
建築確認番号 |
第KJH25-01018-1号 |
| 用途地域 |
1種住居 |
駐車場 |
有 無料 |
| 建ぺい率 |
60% |
容積率 |
200% |
| 階建 |
2階建 |
接道状況 |
北 5.1m 公道
|
| 地目 |
宅地 |
地勢 |
- |
| 国土法届出 |
- |
セットバック |
- |
| アピールポイント |
エランのコスパ仲介システム
【仲介料無料】
2009年より仲介手数料無料宣言店
※よかタウン施工、メーカー直販無し仲介必要です
■弊社経由で
ネット銀行の提携専用金利(変動金利0.59%~
※地方銀行の提携金利(変動金利0.875%~
■銀行手数料・書類作成費等もエランでは不要
■省エネZEH水準住宅
(住宅ローン減税も最大4500万円まで対象
ご見学時は必ず電話orメールで事前連絡下さい
・ネットで物件探し
↓
・メール、電話、LINE等にて見学希望日時を連絡
↓
・弊社スケジュール調整
↓
・ご見学
エランは新築専門店ではないので売却相談もOK
エランは賃貸管理もしているので賃貸退去相談OK
●弊社の得意な分野●
・汎用ではなく、あなた専用の資金計画表作成
・住宅ローン減税や不動産取得税などの税金対策
・公的な給付金受給
・火災保険の適正化
・各種追加工事
等、支払総額の見直しを提案
住宅FP、住宅ローンアドバイザー、福祉住環境コーディネーター、相続診断士、保険募集人、宅建士3名在籍
気楽に「不動産のエラン」へご相談くださいね♪ |
| リフォーム履歴 |
- |
| リノベーション履歴 |
- |
| 瑕疵保証 |
- |
| 瑕疵保険 |
- |
| 評価・証明書 |
■フラット35S適合証明書 フラット35S適合証明書あり |
| 備考 |
バルコニー:4.86m²
主要採光面:南西向き
号棟番号:1
新築時・増改築時の設計図書あり、BELS/省エネ基準適合認定
■省エネZEH水準
(住宅ローン減税最大4500万円対象)
■福岡県内低層住宅着工棟数No.1よかタウン施工の家
(2022年版住宅産業研究所調べ)
■電動シャッター
■地盤保証20年
■住宅瑕疵保険加入済
■住宅かし保険加入して引き渡します(費用は売主が負担)
「住宅かし保険とは」
躯体構造部や雨水侵入部分等に関して、メーカー自社保証のみではなく、保険にて補修費用をカバーできます
メーカーが10年以内に倒産した場合も保証します
また、地盤は20年保証が付帯されます
|
| エネルギー消費性能 |
★★★(削減率20%達成) |
| 断熱性能 |
5段階/7段階中 |
| 目安光熱費 |
約20.6万円/年 |
| バス・トイレ |
浴室暖房、浴室乾燥機、オートバス、追焚機能、シャワー付洗面化粧台、温水洗浄便座、トイレ2ヶ所 |
| キッチン |
カウンターキッチン、食器洗浄乾燥機、浄水器、3口以上コンロ |
| 設備・サービス |
ウォークインクローゼット、クローゼット、床下収納、モニター付インターホン、カードキー、ディンプルキー、ダブルロックドア、電動シャッター、シャッター雨戸、省エネ給湯器、全居室フローリング、上水道、下水道、都市ガス、電気、側溝、ワイドバルコニー、ダウンライト、火災警報器(報知機)、複層ガラス、Low-E ガラス |
| その他 |
- |
| 現況 |
建築中 |
引渡可能時期 |
相談 |
| 物件番号 |
6987747345 |
仲介手数料 |
不要 |
| 情報公開日 |
2025年9月22日 |
次回更新予定日 |
2025年10月25日 |
| ケータイ用バーコード |
- スマートフォンでこの物件を見る
- スマートフォンからもこの物件をご覧になれます。
|
※「-」と表示されている項目については、情報提供会社にご確認ください。
| 周辺施設 |
ローソン 戸畑一枝四丁目店 |
| 距離 |
230m |
| 周辺施設 |
セブン-イレブン 小倉井堀5丁目店 |
| 距離 |
417m |
| 周辺施設 |
TRIAL GO 戸畑一枝店 |
| 距離 |
448m |
ここから簡単にお問い合わせをすることができます。
(SSLでの暗号化での送信を希望されるお客さまは
こちら
よりお問い合わせください)
お問い合わせを行う前に
「個人情報の取り扱いについて」を必ずお読みください。
「個人情報の取り扱いについて」に同意いただいた場合は「上記にご同意の上 確認画面へ進む」のボタンをクリックしてください。
個人情報の取り扱いについて
皆さまが送付された個人情報はアットホーム(株)のサーバを経由し、お問い合わせ先の不動産会社にメールまたはFAXにて転送されるためアットホーム(株)にも保管されます。アットホーム(株)で保管された個人情報の取り扱いについては、【こちら】をご覧ください。
また、本画面でご記入いただいた個人情報は、お問い合わせ先の不動産会社でも保管します。 お問い合わせ先の不動産会社が保管する個人情報の取り扱いについては、不動産会社に直接お問い合わせください。
福岡県知事免許(4)第16460号 |
|---|
- 交通:
- JR日豊本線/城野駅 徒歩4分
- 福岡県北九州市小倉北区若富士町1-26 TOEI城野ビル
- TEL:
- 0800-805-0657
- FAX:
- 093-932-0354
- 所属団体:
- (公社)福岡県宅地建物取引業協会会員(一社)九州不動産公正取引協議会加盟
取引態様:一般媒介  - 80901529
|
- スマートフォンで
この不動産会社を見る

|
- 提携サイト等より掲載されている物件情報につきましては、不動産会社詳細情報にリンクされていないものがあります。
- 物件に関するお問合せは、物件詳細ページの「情報提供会社」に表示されている不動産会社へ直接お願いいたします。
- 間取図は、現況を優先させていただきます。
- 映像は物件の一部を撮影したものです。物件の契約にあたっての最終判断はご自身の判断に基づいて行ってください。
- 仲介手数料について

アットホームは物件情報の適正化に努めております。
内容に誤りがある場合にはこちらへご連絡ください。