長野県松本市大字内田(村井駅)の一戸建て:物件詳細
交通 所在地 |
駅徒歩 |
価格 |
間取り 建物面積 |
土地面積 私道負担面積 |
物件種目 築年月 |
|
JR篠ノ井線/村井
長野県松本市大字内田
|
3500m
|
4,300万円
|
5SLDK
237.75m²
|
599.03m²
-
|
中古一戸建て
1994年5月(築31年11ヶ月)
|
|
駐車場3台分以上、バス1坪以上、吹抜、閑静な住宅街
|
|
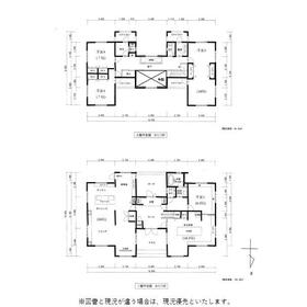
間取図
|
外観
ラップサイディングを貼った左右対称のおしゃれなアメリカンスタイルの住宅です。玄関までのアプローチが素
|
<
その他の画像
>
|
| 交通 | JR篠ノ井線 村井駅 徒歩3500m |
| 所在地 |
長野県松本市大字内田
|
| 物件種目 |
中古一戸建て |
| 価格 |
4,300万円 |
借地期間・地代(月額) |
- |
| 権利金 |
- |
敷金または保証金 |
- / - |
| 維持費等 |
- |
その他一時金 |
上水名義変更料:30,000円 |
| 間取り |
5SLDK(洋 8.5・18・7・7・18.2 LDK 36) |
建物面積 |
237.75m² |
| 土地権利 |
所有権 |
建物構造 |
木造 |
| 土地面積 |
599.03m² |
私道負担面積 |
- |
| 築年月 |
1994年5月(築31年11ヶ月)
|
都市計画 |
市街化区域 |
| 建物名 |
|
建築確認番号 |
- |
| 用途地域 |
1種中高 |
駐車場 |
有 無料 |
| 建ぺい率 |
60% |
容積率 |
200% |
| 階建 |
2階建 |
接道状況 |
北 6.5m 公道 接面22.0m
・ 南 4.0m 公道 接面13.5m
|
| 地目 |
宅地 |
地勢 |
- |
| 国土法届出 |
- |
セットバック |
- |
| アピールポイント |
3/5 価格改定いたしました
株式会社サポートは不動産業を始めて今年の3月で早5年を経過する事が出来ました。
これも皆々様のお陰と深く感謝しております。
こちらの物件は、外観はおしゃれなアーリーアメリカン風で玄関戸を開けると開放感有る吹き抜けがあなたを迎えてくれます。
間取りは5LDK+Sで、リビングダイニングキッチンは実に36帖の広さ。おしゃれなアイランドキッチンや大収納のカップボートまでついています。
又、多目的室には大収納のくくり付けの棚や洗濯物干し場などが有り、忙しい主婦にとってありがたい仕様となっています。
もちろん外壁や屋根、そして内部の内装、水廻りは全てリニューアルしてありますからとても綺麗です。
それにリビングダイニングキッチン(一部除く)洋室1、脱衣洗面所には憧れの床暖房まで入っているんですよ。
更に電気代の高額な今、屋根には太陽光発電パネルを設置して有りますから家計には大助かりです。
まだまだ書きたい事はたくさんありますが、まずは内覧してください。きっと気に入ると思います。 |
| リフォーム履歴 |
■その他:2025年9月 リフォーム工事詳細はお問合せください。資料を送らせていただきます。 ※実施年月は最も古い履歴を表示 |
| リノベーション履歴 |
- |
| 瑕疵保証 |
瑕疵保証(不動産会社独自)付 保証期間:2年 保証範囲:建物 建物検査実施日:2025年10月01日 保証料:買主負担なし |
| 瑕疵保険 |
- |
| 評価・証明書 |
- |
| 備考 |
新築時・増改築時の設計図書あり
3/5 価格改定いたしました
<支払例>
物件価格4300万円
諸費用別途
借入期間 35年(420回)
頭金無しボーナス支払無し
金利1.25%八十二長野銀行
月々支払額126,457円/住宅ローン控除額(10年間)11,666円
126,457円-11,666円=114,791円
住宅ローン控除後の月々支払額(10年間)114,791円
|
| エネルギー消費性能 |
- |
| 断熱性能 |
- |
| 目安光熱費 |
- |
| バス・トイレ |
TV付浴室、浴室乾燥機、追焚機能、シャワー付洗面化粧台、シャワールーム、温水洗浄便座、トイレ2ヶ所、浴室に窓あり |
| キッチン |
アイランドキッチン、システムキッチン、食器洗浄乾燥機、IHクッキングヒーター |
| 設備・サービス |
太陽光発電システム、エアコン2台以上、床暖房、シューズインクローゼット、クローゼット、モニター付インターホン、上水道、下水道、電気、照明器具 |
| その他 |
- |
| 現況 |
空家 |
引渡可能時期 |
即時 |
| 物件番号 |
6987852425 |
仲介手数料 |
不要 |
| 情報公開日 |
2025年10月6日 |
次回更新予定日 |
2026年3月25日 |
| ケータイ用バーコード |
- スマートフォンでこの物件を見る
- スマートフォンからもこの物件をご覧になれます。
|
※「-」と表示されている項目については、情報提供会社にご確認ください。
| 周辺施設 |
デリシア寿店 |
| 距離 |
1200m |
写真を見る |
| 周辺施設 |
セブンイレブン松本牛伏寺下店 |
| 距離 |
300m |
写真を見る |
| 周辺施設 |
松本市立明善中学校 |
| 距離 |
250m |
写真を見る |
| 周辺施設 |
松本市立明善小学校 |
| 距離 |
400m |
写真を見る |
| 周辺施設 |
松本市内田保育園 |
| 距離 |
350m |
写真を見る |
| 周辺施設 |
八十二長野銀行 村井支店 |
| 距離 |
3100m |
写真を見る |
| 周辺施設 |
六道公園 物件より市道を挟んで南側にあります。小さなお子様が遊ぶのに最適な立地、また犬の散歩にもいい |
| 距離 |
130m |
写真を見る |
| 周辺施設 |
まつもと医療センター |
| 距離 |
3000m |
写真を見る |
ここから簡単にお問い合わせをすることができます。
(SSLでの暗号化での送信を希望されるお客さまは
こちら
よりお問い合わせください)
お問い合わせを行う前に
「個人情報の取り扱いについて」を必ずお読みください。
「個人情報の取り扱いについて」に同意いただいた場合は「上記にご同意の上 確認画面へ進む」のボタンをクリックしてください。
個人情報の取り扱いについて
皆さまが送付された個人情報はアットホーム(株)のサーバを経由し、お問い合わせ先の不動産会社にメールまたはFAXにて転送されるためアットホーム(株)にも保管されます。アットホーム(株)で保管された個人情報の取り扱いについては、【こちら】をご覧ください。
また、本画面でご記入いただいた個人情報は、お問い合わせ先の不動産会社でも保管します。 お問い合わせ先の不動産会社が保管する個人情報の取り扱いについては、不動産会社に直接お問い合わせください。
長野県知事免許(2)第5708号 |
|---|
- 交通:
- JR篠ノ井線/南松本駅 徒歩14分
- 長野県松本市高宮中4-10
- TEL:
- 0263-50-8099
- 所属団体:
- (公社)全日本不動産協会会員不動産公正取引協議会加盟
取引態様:売主  - 00270173
|
- スマートフォンで
この不動産会社を見る

|
- 提携サイト等より掲載されている物件情報につきましては、不動産会社詳細情報にリンクされていないものがあります。
- 物件に関するお問合せは、物件詳細ページの「情報提供会社」に表示されている不動産会社へ直接お願いいたします。
- 間取図は、現況を優先させていただきます。
- 映像は物件の一部を撮影したものです。物件の契約にあたっての最終判断はご自身の判断に基づいて行ってください。
- 仲介手数料について

アットホームは物件情報の適正化に努めております。
内容に誤りがある場合にはこちらへご連絡ください。