栃木県那須郡那須町大字湯本(黒磯駅)の一戸建て:物件詳細
交通 所在地 |
駅徒歩 |
価格 |
間取り 建物面積 |
土地面積 私道負担面積 |
物件種目 築年月 |
|
JR東北本線/黒磯
栃木県那須郡那須町大字湯本
|
12300m
|
6,000万円
|
3LDK
201.75m²
|
1,780.00m²
-
|
中古一戸建て
2006年2月(築19年9ヶ月)
|
|
駐車場3台分以上、天井高2.5M以上、吹抜、庭10坪以上、前面棟無、隣接建物距離2m以上
|
|
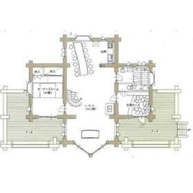
間取図
1F
|
間取図
2F
|
<
その他の画像
>
|
| 交通 | JR東北本線 黒磯駅 徒歩12300m |
| 所在地 |
栃木県那須郡那須町大字湯本
|
| 物件種目 |
中古一戸建て |
| 価格 |
6,000万円 |
借地期間・地代(月額) |
- |
| 権利金 |
- |
敷金または保証金 |
- / - |
| 維持費等 |
- |
その他一時金 |
- |
| 間取り |
3LDK(LDK 45) |
建物面積 |
201.75m² |
| 土地権利 |
所有権 |
建物構造 |
木造 |
| 土地面積 |
1,780.00m²(公簿) |
私道負担面積 |
- |
| 築年月 |
2006年2月(築19年9ヶ月)
|
都市計画 |
非線引区域 |
| 建物名 |
|
建築確認番号 |
- |
| 用途地域 |
無指定 |
駐車場 |
- |
| 建ぺい率 |
60% |
容積率 |
200% |
| 階建 |
2階建 |
接道状況 |
北 公道
|
| 地目 |
原野 |
地勢 |
平坦 |
| 国土法届出 |
- |
セットバック |
- |
| アピールポイント |
那須街道まで250m。徒歩でコンビニへ楽々行けます。
別荘管理地外ですので、管理費がかかりません。
バーべキューができる東屋付。
電動シャッターゲート付で安心別荘ライフを楽しめます。 |
| リフォーム履歴 |
- |
| リノベーション履歴 |
- |
| 瑕疵保証 |
- |
| 瑕疵保険 |
- |
| 評価・証明書 |
- |
| 備考 |
-
|
| エネルギー消費性能 |
- |
| 断熱性能 |
- |
| 目安光熱費 |
- |
| バス・トイレ |
浴室に窓あり |
| キッチン |
- |
| 設備・サービス |
上水道、プロパンガス、ウッドデッキ、照明器具 |
| その他 |
- |
| 現況 |
空家 |
引渡可能時期 |
相談 |
| 物件番号 |
6987855245 |
仲介手数料 |
売買代金の3%+6万円 |
| 情報公開日 |
2025年10月1日 |
次回更新予定日 |
2025年11月8日 |
| ケータイ用バーコード |
- スマートフォンでこの物件を見る
- スマートフォンからもこの物件をご覧になれます。
|
※「-」と表示されている項目については、情報提供会社にご確認ください。
| 周辺施設 |
ファミリーマート那須街道店 |
| 距離 |
333m |
| 周辺施設 |
アポロステーション那須高原SS |
| 距離 |
1024m |
| 周辺施設 |
那須ステンドグラス美術館 |
| 距離 |
1491m |
| 周辺施設 |
滝のある釣り堀那須高原清流の里 |
| 距離 |
2704m |
ここから簡単にお問い合わせをすることができます。
(SSLでの暗号化での送信を希望されるお客さまは
こちら
よりお問い合わせください)
お問い合わせを行う前に
「個人情報の取り扱いについて」を必ずお読みください。
「個人情報の取り扱いについて」に同意いただいた場合は「上記にご同意の上 確認画面へ進む」のボタンをクリックしてください。
個人情報の取り扱いについて
皆さまが送付された個人情報はアットホーム(株)のサーバを経由し、お問い合わせ先の不動産会社にメールまたはFAXにて転送されるためアットホーム(株)にも保管されます。アットホーム(株)で保管された個人情報の取り扱いについては、【こちら】をご覧ください。
また、本画面でご記入いただいた個人情報は、お問い合わせ先の不動産会社でも保管します。 お問い合わせ先の不動産会社が保管する個人情報の取り扱いについては、不動産会社に直接お問い合わせください。
栃木県知事免許(1)第5240号 |
|---|
- 交通:
- JR東北本線/西那須野駅 【バス】3分 三島中学校前
- 栃木県那須塩原市東三島1丁目104-168
- TEL:
- 0287-37-6645
- FAX:
- 0287-46-6123
- 所属団体:
- (公社)栃木県宅地建物取引業協会会員(公社)首都圏不動産公正取引協議会加盟
取引態様:媒介  - 00269857
|
- スマートフォンで
この不動産会社を見る

|
- 提携サイト等より掲載されている物件情報につきましては、不動産会社詳細情報にリンクされていないものがあります。
- 物件に関するお問合せは、物件詳細ページの「情報提供会社」に表示されている不動産会社へ直接お願いいたします。
- 間取図は、現況を優先させていただきます。
- 映像は物件の一部を撮影したものです。物件の契約にあたっての最終判断はご自身の判断に基づいて行ってください。
- 仲介手数料について

アットホームは物件情報の適正化に努めております。
内容に誤りがある場合にはこちらへご連絡ください。