岩手県奥州市水沢字高屋敷(水沢駅)の一戸建て:物件詳細
交通 所在地 |
駅徒歩 |
価格 |
間取り 建物面積 |
土地面積 私道負担面積 |
物件種目 築年月 |
|
JR東北本線/水沢
岩手県奥州市水沢字高屋敷
|
24分
|
3,150万円
|
4LDK
123.79m²
|
209.57m²
有 300.00m²(共有持分1/10)
|
中古一戸建て
2019年1月(築7年5ヶ月)
|
|
駐車場2台分、南向き、高気密高断熱住宅、バス1坪以上、2面採光、24時間換気システム、閑静な住宅街、オール電化、整形地、分譲地内
|
|
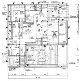
間取図
カッコイイの一言に尽きます。
|
間取図
1階です。
|
<
その他の画像
>
|
| 交通 | JR東北本線 水沢駅 徒歩24分 |
| 所在地 |
岩手県奥州市水沢字高屋敷
|
| 物件種目 |
中古一戸建て |
| 価格 |
3,150万円 |
借地期間・地代(月額) |
- |
| 権利金 |
- |
敷金または保証金 |
- / - |
| 維持費等 |
- |
その他一時金 |
- |
| 間取り |
4LDK(和 7 洋 7・5.4・5.4) |
建物面積 |
123.79m² |
| 土地権利 |
所有権 |
建物構造 |
木造 |
| 土地面積 |
209.57m²(公簿) |
私道負担面積 |
有 300.00m²(共有持分1/10) |
| 築年月 |
2019年1月(築7年5ヶ月)
|
都市計画 |
非線引区域 |
| 建物名 |
|
建築確認番号 |
H31-1-0217-0 |
| 用途地域 |
2種住居 |
駐車場 |
- |
| 建ぺい率 |
60% |
容積率 |
200% |
| 階建 |
2階建 |
接道状況 |
東 6.0m 私道 位置指定有 接面13.5m
|
| 地目 |
宅地 |
地勢 |
平坦 |
| 国土法届出 |
- |
セットバック |
- |
| アピールポイント |
岩手県奥州市水沢字高屋敷に佇む、スタイリッシュな元モデルハウスの4LDK。平成31年完成、建物123.79㎡・敷地209.57㎡のゆとりある住まいです。黒を基調とした外観は、まるでデザイナーズ住宅のような洗練された印象。整備された駐車場や植栽の配置まで美しくデザインされ、見る人を惹きつけます。
室内は中二階リビングとロフトが生み出す立体的で開放的な空間設計。吹き抜けを活かした明るいリビングは、まさにモデルハウスならではの完成度です。キッチン・バス・照明などの設備はハイスペック仕様で、使い勝手とデザイン性を両立。細部にまでこだわった上質なインテリアが、日常を特別な時間へと変えてくれます。
おしゃれな暮らしを楽しみたい4人家族にぴったりの住まい。価格は3,150万円。モデルハウスクオリティの上質な住空間を、ぜひ現地でご体感ください。 |
| リフォーム履歴 |
- |
| リノベーション履歴 |
- |
| 瑕疵保証 |
- |
| 瑕疵保険 |
- |
| 評価・証明書 |
- |
| 備考 |
主要採光面:南向き
施工会社:株式会社リベスト
|
| エネルギー消費性能 |
- |
| 断熱性能 |
- |
| 目安光熱費 |
- |
| バス・トイレ |
オートバス、追焚機能、シャワー付洗面化粧台、温水洗浄便座、タンクレストイレ、トイレ2ヶ所 |
| キッチン |
カウンターキッチン、IHクッキングヒーター、3口以上コンロ |
| 設備・サービス |
全居室収納、ウォークインクローゼット、シューズインクローゼット、クローゼット、モニター付インターホン、ディンプルキー、クッションフロア、上水道、下水道、電気、側溝、人感センサー付照明、フットライト、ダウンライト、間接照明、照明器具、インターネット対応、光ファイバー、BS端子、複層ガラス |
| その他 |
- |
| 現況 |
所有者居住中 |
引渡可能時期 |
相談 |
| 物件番号 |
6987899197 |
仲介手数料 |
売買代金の3%+6万円 |
| 情報公開日 |
2025年10月5日 |
次回更新予定日 |
2026年5月15日 |
| ケータイ用バーコード |
- スマートフォンでこの物件を見る
- スマートフォンからもこの物件をご覧になれます。
|
※「-」と表示されている項目については、情報提供会社にご確認ください。
| 周辺施設 |
セブンイレブン奥州水沢大町店 |
| 距離 |
1433m |
ここから簡単にお問い合わせをすることができます。
(SSLでの暗号化での送信を希望されるお客さまは
こちら
よりお問い合わせください)
お問い合わせを行う前に
「個人情報の取り扱いについて」を必ずお読みください。
「個人情報の取り扱いについて」に同意いただいた場合は「上記にご同意の上 確認画面へ進む」のボタンをクリックしてください。
個人情報の取り扱いについて
皆さまが送付された個人情報はアットホーム(株)のサーバを経由し、お問い合わせ先の不動産会社にメールまたはFAXにて転送されるためアットホーム(株)にも保管されます。アットホーム(株)で保管された個人情報の取り扱いについては、【こちら】をご覧ください。
また、本画面でご記入いただいた個人情報は、お問い合わせ先の不動産会社でも保管します。 お問い合わせ先の不動産会社が保管する個人情報の取り扱いについては、不動産会社に直接お問い合わせください。
岩手県知事免許(1)第2768号 |
|---|
- 交通:
- 【バス】 江刺バスセンター 停歩5分
- 岩手県奥州市江刺中町9-30 クレサンテ1階2号
- TEL:
- 0197-47-5501
- FAX:
- 0197-47-5501
- 所属団体:
- (一社)岩手県宅地建物取引業協会会員東北地区不動産公正取引協議会加盟
取引態様:一般媒介  - 20007211
|
- スマートフォンで
この不動産会社を見る

|
- 提携サイト等より掲載されている物件情報につきましては、不動産会社詳細情報にリンクされていないものがあります。
- 物件に関するお問合せは、物件詳細ページの「情報提供会社」に表示されている不動産会社へ直接お願いいたします。
- 間取図は、現況を優先させていただきます。
- 映像は物件の一部を撮影したものです。物件の契約にあたっての最終判断はご自身の判断に基づいて行ってください。
- 仲介手数料について

アットホームは物件情報の適正化に努めております。
内容に誤りがある場合にはこちらへご連絡ください。