神奈川県川崎市宮前区東有馬2丁目(宮崎台駅)の一戸建て:物件詳細
交通 所在地 |
駅徒歩 |
価格 |
間取り 建物面積 |
土地面積 私道負担面積 |
物件種目 築年月 |
|
東急田園都市線/宮崎台
神奈川県川崎市宮前区東有馬2丁目
|
23分
|
6,590万円
|
4LDK
98.54m²
|
128.11m²
-
|
新築一戸建て
2026年1月
|
|
バス1坪以上、2面採光、閑静な住宅街、整形地
|
|
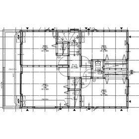
間取図
リビング間取り♪広々とした空間はソファうやテーブルを置いてもゆったりとお過ごしいただけます♪
|
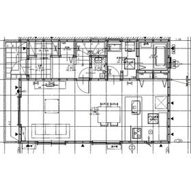
間取図
2階間取り♪4LDK!
|
<
その他の画像
>
|
| 交通 | 東急田園都市線 宮崎台駅 徒歩23分 |
| 所在地 |
神奈川県川崎市宮前区東有馬2丁目
|
| 物件種目 |
新築一戸建て |
| 価格 |
6,590万円 |
借地期間・地代(月額) |
- |
| 権利金 |
- |
敷金または保証金 |
- / - |
| 維持費等 |
- |
その他一時金 |
- |
| 間取り |
4LDK(洋 7・5.3・5・5) |
建物面積 |
98.54m² |
| 土地権利 |
所有権 |
建物構造 |
木造 |
| 土地面積 |
128.11m²(実測) |
私道負担面積 |
- |
| 築年月 |
2026年1月
|
都市計画 |
市街化区域 |
| 建物名 |
宮前区2丁目 新築2階建て |
建築確認番号 |
第2025SBC-確01364H号 |
| 用途地域 |
1種低層 |
駐車場 |
- |
| 建ぺい率 |
40% |
容積率 |
80% |
| 階建 |
2階建 |
接道状況 |
北東 5.0m 公道 接面21.1m
|
| 地目 |
- |
地勢 |
- |
| 国土法届出 |
- |
セットバック |
- |
| アピールポイント |
■まだ情報が少ない物件ですが周辺環境含めおすすめの物件です!まずはお問い合わせください!
■もちろん、現地を見ながら詳しくご説明させていただくこともできます!
■現在建築中ですが現地もご確認いただけますし、モデルルームもございます♪
■新築3棟現場!物件周辺も新築が多く、整った町並みでお住みいただけます♪
■~~現地案内会のお知らせ~~
■平日でもお仕事帰りでも、物件のご見学・ご相談承ります。ご遠慮なくお申し付け下さい!
■現地のご案内以外に周辺施設や近隣情報も合わせてご案内ご説明させて頂きます!
■「当社へのご来場」・「ご自宅への送迎」・「現地付近でのお待ち合わせ」お客様のご都合に合わせます!
■当社ではアットホームに掲載していない物件は勿論のこと、インターネット公開前の物件等もご案内できます!その他、ご不明点・ご質問・ご不安に感じること等、何でもご相談下さい! |
| リフォーム履歴 |
- |
| リノベーション履歴 |
- |
| 瑕疵保証 |
- |
| 瑕疵保険 |
- |
| 評価・証明書 |
- |
| 備考 |
主要採光面:北西向き
|
| エネルギー消費性能 |
- |
| 断熱性能 |
- |
| 目安光熱費 |
- |
| バス・トイレ |
浴室暖房、浴室乾燥機、オートバス、追焚機能、温水洗浄便座、トイレ2ヶ所、浴室に窓あり |
| キッチン |
カウンターキッチン、システムキッチン、食器洗浄乾燥機、食器乾燥機、3口以上コンロ、2口コンロ |
| 設備・サービス |
全居室収納、クローゼット、床下収納、全居室フローリング |
| その他 |
- |
| 現況 |
建築中 |
引渡可能時期 |
相談 |
| 物件番号 |
6987920969 |
|
|
| 情報公開日 |
2025年12月15日 |
次回更新予定日 |
2025年12月29日 |
| ケータイ用バーコード |
- スマートフォンでこの物件を見る
- スマートフォンからもこの物件をご覧になれます。
|
※「-」と表示されている項目については、情報提供会社にご確認ください。
| 周辺施設 |
ライフ東有馬店 |
| 距離 |
447m |
写真を見る |
| 周辺施設 |
西松屋川崎馬絹店 |
| 距離 |
818m |
写真を見る |
| 周辺施設 |
ロピア馬絹店 |
| 距離 |
1051m |
写真を見る |
| 周辺施設 |
まいばすけっと宮崎台馬絹店 |
| 距離 |
1109m |
写真を見る |
| 周辺施設 |
セブンイレブン川崎野川台西店 |
| 距離 |
659m |
写真を見る |
| 周辺施設 |
セブンイレブン川崎東有馬店 |
| 距離 |
670m |
写真を見る |
| 周辺施設 |
ファミリーマート東有馬二丁目店 |
| 距離 |
715m |
写真を見る |
ここから簡単にお問い合わせをすることができます。
(SSLでの暗号化での送信を希望されるお客さまは
こちら
よりお問い合わせください)
お問い合わせを行う前に
「個人情報の取り扱いについて」を必ずお読みください。
「個人情報の取り扱いについて」に同意いただいた場合は「上記にご同意の上 確認画面へ進む」のボタンをクリックしてください。
個人情報の取り扱いについて
皆さまが送付された個人情報はアットホーム(株)のサーバを経由し、お問い合わせ先の不動産会社にメールまたはFAXにて転送されるためアットホーム(株)にも保管されます。アットホーム(株)で保管された個人情報の取り扱いについては、【こちら】をご覧ください。
また、本画面でご記入いただいた個人情報は、お問い合わせ先の不動産会社でも保管します。 お問い合わせ先の不動産会社が保管する個人情報の取り扱いについては、不動産会社に直接お問い合わせください。
神奈川県知事免許(3)第28410号 |
|---|
- 交通:
- ブルーライン/新横浜駅 徒歩8分
- 神奈川県横浜市港北区新横浜3丁目13-6 新横浜葉山第3ビル3F
- TEL:
- 045-471-6621
- FAX:
- 045-471-6622
- 所属団体:
- (公社)全日本不動産協会会員(公社)首都圏不動産公正取引協議会加盟
取引態様:媒介  - 00108432
|
- スマートフォンで
この不動産会社を見る

|
- 提携サイト等より掲載されている物件情報につきましては、不動産会社詳細情報にリンクされていないものがあります。
- 物件に関するお問合せは、物件詳細ページの「情報提供会社」に表示されている不動産会社へ直接お願いいたします。
- 間取図は、現況を優先させていただきます。
- 映像は物件の一部を撮影したものです。物件の契約にあたっての最終判断はご自身の判断に基づいて行ってください。
- 仲介手数料について

アットホームは物件情報の適正化に努めております。
内容に誤りがある場合にはこちらへご連絡ください。