福井県坂井市坂井町上兵庫(丸岡駅)の一戸建て:物件詳細
交通 所在地 |
駅徒歩 |
価格 |
間取り 建物面積 |
土地面積 私道負担面積 |
物件種目 築年月 |
|
ハピラインふくい/丸岡
福井県坂井市坂井町上兵庫
|
19分
|
1,980万円
|
3LDK
102.68m²
|
165.02m²
なし
|
中古一戸建て
1990年3月(築35年10ヶ月)
|
|
デザイナーズ、駐車場2台分、駐車場3台分以上、バス1坪以上、2面採光、閑静な住宅街、オール電化、区画整理地内、整形地、IT重説対応物件、分譲地内
|
|
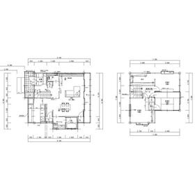
間取図
|
室内
施工イメージ
|
その他の画像
|
| 交通 | ハピラインふくい 丸岡駅 徒歩19分 |
|---|
| その他の交通 | えちぜん鉄道三国線 下兵庫こうふく駅 徒歩26分 |
| 所在地 |
福井県坂井市坂井町上兵庫
|
| 物件種目 |
中古一戸建て |
| 価格 |
1,980万円 |
借地期間・地代(月額) |
- |
| 権利金 |
- |
敷金または保証金 |
- / - |
| 維持費等 |
- |
その他一時金 |
なし |
| 間取り |
3LDK |
建物面積 |
102.68m² |
| 土地権利 |
所有権 |
建物構造 |
木造 |
| 土地面積 |
165.02m²(公簿) |
私道負担面積 |
なし |
| 築年月 |
1990年3月(築35年10ヶ月)
|
都市計画 |
非線引区域 |
| 建物名 |
|
建築確認番号 |
- |
| 用途地域 |
無指定 |
駐車場 |
- |
| 建ぺい率 |
60% |
容積率 |
200% |
| 階建 |
2階建 |
接道状況 |
西 6.0m 公道 接面11.0m
|
| 地目 |
宅地 |
地勢 |
平坦 |
| 国土法届出 |
- |
セットバック |
- |
| アピールポイント |
人気のリノベーション施工物件!お好みの色を選ぶことができるカラーセレクト可能物件!まずはお問合せください!限定1棟です! |
| リフォーム履歴 |
■水回り:2025年12月 キッチン、浴室、トイレ、洗面所、給湯器 水回り設備交換予定※カラーセレクト可能 ■内装:2025年12月 全室クロス張替え、床(フローリング等)、壁・天井(クロス・塗装等)、建具(室内ドア等) 1階間取り変更予定(リノベーション施工※イメージ参照) ■外装:2025年12月 外壁 外壁塗装施工予定 ■その他:2025年12月 室内リノベーション施工(間取り変更) ※実施年月は最も古い履歴を表示 |
| リノベーション履歴 |
2025年12月 ・キッチン交換・UB交換・トイレ交換・洗面台交換・間取り変更・クロス前面張替・新設収納・TVボード施工予定・1階床フローリング施工・外壁塗装施工・防蟻工事施工(5年保証付き)・給湯設備交換 ※実施年月は最も古い履歴を表示 |
| 瑕疵保証 |
- |
| 瑕疵保険 |
- |
| 評価・証明書 |
- |
| 備考 |
主要採光面:東向き
工事完了予定日:2025年12月
IT重説対応物件
|
| エネルギー消費性能 |
- |
| 断熱性能 |
- |
| 目安光熱費 |
- |
| バス・トイレ |
浴室暖房、浴室乾燥機、追焚機能、シャワー付洗面化粧台、温水洗浄便座、タンクレストイレ |
| キッチン |
カウンターキッチン、オープンキッチン、システムキッチン、食器洗浄乾燥機、IHクッキングヒーター、3口以上コンロ、グリル |
| 設備・サービス |
ウォークインクローゼット、クローゼット、床下収納、モニター付インターホン、ダブルロックドア、室内物干し、クッションフロア、下水道、電気、側溝、庭、サンルーム、人感センサー付照明、ダウンライト、間接照明、照明器具 |
| その他 |
- |
| 現況 |
空家 |
引渡可能時期 |
相談 |
| 物件番号 |
6987921042 |
仲介手数料 |
不要 |
| 情報公開日 |
2025年10月12日 |
次回更新予定日 |
2025年12月15日 |
| ケータイ用バーコード |
- スマートフォンでこの物件を見る
- スマートフォンからもこの物件をご覧になれます。
|
※「-」と表示されている項目については、情報提供会社にご確認ください。
| 周辺施設 |
SUPER CENTER PLANT-2坂井店 |
| 距離 |
676m |
| 周辺施設 |
ガスト福井坂井店(から好し取扱店) |
| 距離 |
554m |
| 周辺施設 |
坂井地域交流センターいねす |
| 距離 |
795m |
ここから簡単にお問い合わせをすることができます。
(SSLでの暗号化での送信を希望されるお客さまは
こちら
よりお問い合わせください)
お問い合わせを行う前に
「個人情報の取り扱いについて」を必ずお読みください。
「個人情報の取り扱いについて」に同意いただいた場合は「上記にご同意の上 確認画面へ進む」のボタンをクリックしてください。
個人情報の取り扱いについて
皆さまが送付された個人情報はアットホーム(株)のサーバを経由し、お問い合わせ先の不動産会社にメールまたはFAXにて転送されるためアットホーム(株)にも保管されます。アットホーム(株)で保管された個人情報の取り扱いについては、【こちら】をご覧ください。
また、本画面でご記入いただいた個人情報は、お問い合わせ先の不動産会社でも保管します。 お問い合わせ先の不動産会社が保管する個人情報の取り扱いについては、不動産会社に直接お問い合わせください。
福井県知事免許(1)第1723号 |
|---|
- 交通:
- ハピラインふくい/春江駅
- 福井県坂井市春江町江留上大和6-6
- TEL:
- 0776-51-0324
- FAX:
- 0776-51-2003
- 所属団体:
- (公社)福井県宅地建物取引業協会会員北陸不動産公正取引協議会加盟
取引態様:売主  - 40410180
|
- スマートフォンで
この不動産会社を見る

|
- 提携サイト等より掲載されている物件情報につきましては、不動産会社詳細情報にリンクされていないものがあります。
- 物件に関するお問合せは、物件詳細ページの「情報提供会社」に表示されている不動産会社へ直接お願いいたします。
- 間取図は、現況を優先させていただきます。
- 映像は物件の一部を撮影したものです。物件の契約にあたっての最終判断はご自身の判断に基づいて行ってください。
- 仲介手数料について

アットホームは物件情報の適正化に努めております。
内容に誤りがある場合にはこちらへご連絡ください。